Description
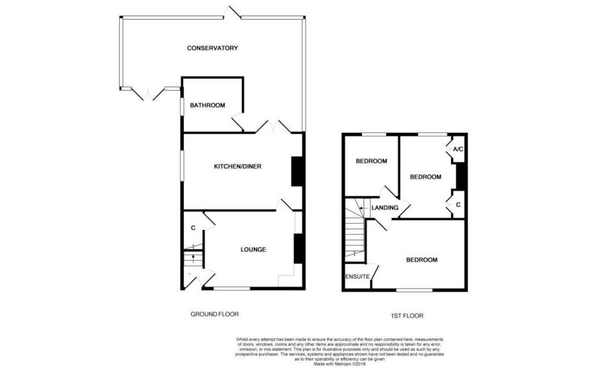
Bycroft Estate Agents are delighted to offer this three bedroom end of terraced property in need of some renovation and refurbishment; situated in this sought after village of Hopton with a variety of local shops and amenities are available including Hopton Primary School. The property offers a great corner plot and driveway and accommodation comprises entrance hall, lounge, kitchen/diner; large conservatory, ground floor bathroom, landing, three bedrooms, front, rear and side gardens, brick weave driveway, gas central heating and mostly double glazed.
ENTRANCE HALL stairs to first floor; radiator.
LOUNGE 14' x 11' (4.27m x 3.35m) window to front aspect; radiator; door to:
KITCHEN/DINER 17' x 10' 10" (5.18m x 3.3m) worktop with range of base cupboards and drawers; eye level oven; one and a half bowl sink with mixer tap; space and plumbing for washing machine; wall units including double glass display unit; side window; radiator; tiled flooring; space for fridge/freezer; gas Gloworm boiler; upvc French doors to:
CONSERVATORY 25' 10" max x 16' 3" narrowing to 7'6" (7.87m x 4.95m) l-shaped with brick base with upvc units and French doors to the front; further rear door.
BATHROOM bath; wash hand basin; wc; frosted double glazed window; tiled floor; heated towel rail.
FIRST FLOOR LANDING access to roof space; single glazed side window.
BEDROOM 1 12' 10" x 9' 11" (3.91m x 3.02m) window to front aspect; radiator.
EN SUITE WET ROOM corner wc; corner wash hand basin; shower with soakaway drainage.
BEDROOM 2 12' x 8' 10" (3.66m x 2.69m) including built-in storage cupboards; window to rear aspect; radiator.
BEDROOM 3 8' 11" x 6' 10" (2.72m x 2.08m) rear window.
OUTSIDE To the front of the property is a garden area with low fencing; opening to brick weave driveway; variety of shrubs and trees; opening to side and rear gardens with lawned areas. Workshop.
COUNCIL TAX The property is currently listed as a Band B.
VIEWING Strictly by appointment with the selling agents BYCROFT ESTATE AGENTS. Tel. 01493 664000
DISCLAIMER While we endeavour to make our sales particulars fair, accurate and reliable, they are only a general guide to the property and, accordingly, if there is any point which is of particular importance to you, please contact the office and we will be pleased to check the position for you, especially if you are contemplating travelling some distance to view the property.
The approximate room sizes are only intended as general guidance. You must verify the dimensions carefully before ordering carpets or any built-in furniture.
Any references to garden sizes are approximate and subject to confirmation by a measured survey. A prospective purchaser is advised to arrange for their own land survey to be carried out.
Please note we have not tested the services or any of the equipment or appliances in this property, accordingly we strongly advise prospective buyers to commission their own survey or service reports before finalizing their offer to purchase.
THESE PARTICULARS ARE ISSUED IN GOOD FAITH BUT DO NOT CONSTITUTE REPRESENTATIONS OF FACT OR FORM PART OF ANY OFFER OR CONTRACT. THE MATTERS REFERRED TO IN THESE PARTICULARS SHOULD BE INDEPENDENTLY VERIFIED BY PROSPECTIVE BUYERS.
Brochures
Energy Performance Certificate
