Description
*GUIDE PRICE £340,000 - £350,000* A highly individual extended detached bungalow on a generous corner plot just a short walk from the beach. Entrance porch, dining hall, lounge, kitchen, side porch/conservatory, inner hall, cloakroom, master bedroom with en suite shower room, 3 further bedrooms, family bathroom, double garage with electric doors, secluded gardens, upvc double glazed windows, gas fired central heating, solar panels for cheaper running costs and income generator. Ideal for retirement or family purposes. An early viewing is recommended.
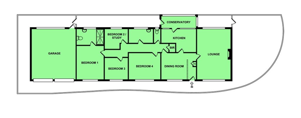
ENTRANCE PORCH outside light; upvc double glazed door to front; upvc double glazed window to front; polycarbonate roof; tiled floor; part double glazed upvc internal door; matching side screen to:
DINING ROOM 16' x 11' 5" (4.88m x 3.48m) part divided by a split wall; two radiators; two double glazed windows to front aspect; built-in meter cupboard housing the electric meter and RCD fuse box and solar panel generation meter; wall light point; door to:
LOUNGE 19' 9" x 13' 5" (6.02m x 4.09m) plus door recess; ith attractive red brick fireplace with timber mantle over; quarry tiled hearth and inset coal effect living flame gas fire; skirting radiators; double aspect double glazed windows to front and rear; feature niche with lighting; stained wood dado rail; coved ceiling; television point; telephone point.
KITCHEN 16' x 7' 11" (4.88m x 2.41m) extensively fitted with a range of medium oak fronted kitchen units comprising base units with cupboards and drawers and granite composite worksurface over; matching range of wall units with incorporated extractor hood; recess with electric cooker point; space and plumbing for washing machine and dishwasher; single drainer one and a half bowl stainless steel sink with mixer tap; integrated fridge/freezer; part tiled walls; recessed spotlighting; tiled flooring; double radiator; double glazed door leading to:
CONSERVATORY 16' 2" x 4' 7" (4.93m x 1.40m) upvc double glazed construction with tinted polycarbonate roof over; tiled flooring; part double glazed upvc rear entrance door; light; electric radiator.
INNER HALL twin accesses into two separate loft spaces with pull down ladders, one leading to a boarded loft space which houses the gas combination boiler for hot water and central heating the other leading to the roof space over the extension.
CLOAKROOM low level wc; frosted double glazed window to side aspect.
MASTER BEDROOM 14' 9" x 9' 4" (4.52m x 2.87m) plus recess; ncluding fitted quality bedroom furniture comprising two doubles and two single wardrobes; bedside cabinets; high level storage cabinets and chest of drawers; radiator; double glazed window to front aspect; wall mounted television point; concealed wardrobe door entrance into:
EN SUITE SHOWER ROOM aqua boarded shower cubicle with mains fed thermostatic controlled shower fitting; low level wc; double width vanity unit with inset wash basin and storage cupboards below; electric shaver point; tiled flooring; frosted double glazed window to side aspect; wall mounted towel rail/radiator; aqua boarded walls.
BEDROOM 2 12' 11" x 10' 5" (3.94m x 3.18m) double glazed window to front aspect; radiator.
BEDROOM 3 9' 4" x 8' 0" (2.87m x 2.46m) double glazed window to front aspect; radiator.
BEDROOM 4 9' 6" x 8' 2" (2.90m x 2.49m) narrowing to 5'8" radiator; double glazed window to side aspect; wall light point.
FAMILY BATHROOM white suite comprising panelled bath with thermostatic controlled shower mixer tap and additional electric shower over; vanity unit with inset wash basin with mixer tap and cupboard below and adjacent additional storage and matching wall units; low level wc with concealed cistern; tiled walls; frosted double glazed window to side aspect; radiator.
OUTSIDE The property sits on a generous corner plot to the front of which there are low maintenance landscaped gardens laid to stone with inset shrubs, bushes and plants and hedge boundary screening. A block pavier pathway leads around the inside hedge of the property and via a gated access onto the rear which is paved with established climbing plants and rose bushes. Outside tap. Outside lighting. On the north side of the bungalow can be found the main formal garden which lawned with side borders and enclosed by timber panelled fencing on all boundaries providing a good degree of privacy. There is an additional gated entrance leading to the driveway which provides off street car parking and access to attached DOUBLE GARAGE 20'11" x 19'9" with twin electric roller blind doors, 5 double power points and lighting, fitted work bench. Shed. Summerhouse. Greenhouse/Shed
VIEWING Strictly by appointment with the selling agents BYCROFT RESIDENTIAL. Tel. 01493 844484.
COUNCIL TAX The property is currently listed as a Band D.
DISCLAIMER While we endeavour to make our sales particulars fair, accurate and reliable, they are only a general guide to the property and, accordingly, if there is any point which is of particular importance to you, please contact the office and we will be pleased to check the position for you, especially if you are contemplating travelling some distance to view the property.
The approximate room sizes are only intended as general guidance. You must verify the dimensions carefully before ordering carpets or any built-in furniture.
Any references to garden sizes are approximate and subject to confirmation by a measured survey. A prospective purchaser is advised to arrange for their own land survey to be carried out.
Please note we have not tested the services or any of the equipment or appliances in this property, accordingly we strongly advise prospective buyers to commission their own survey or service reports before finalizing their offer to purchase.
THESE PARTICULARS ARE ISSUED IN GOOD FAITH BUT DO NOT CONSTITUTE REPRESENTATIONS OF FACT OR FORM PART OF ANY OFFER OR CONTRACT. THE MATTERS REFERRED TO IN THESE PARTICULARS SHOULD BE INDEPENDENTLY VERIFIED BY PROSPECTIVE BUYERS.
Brochures
Energy Performance Certificate
