Description
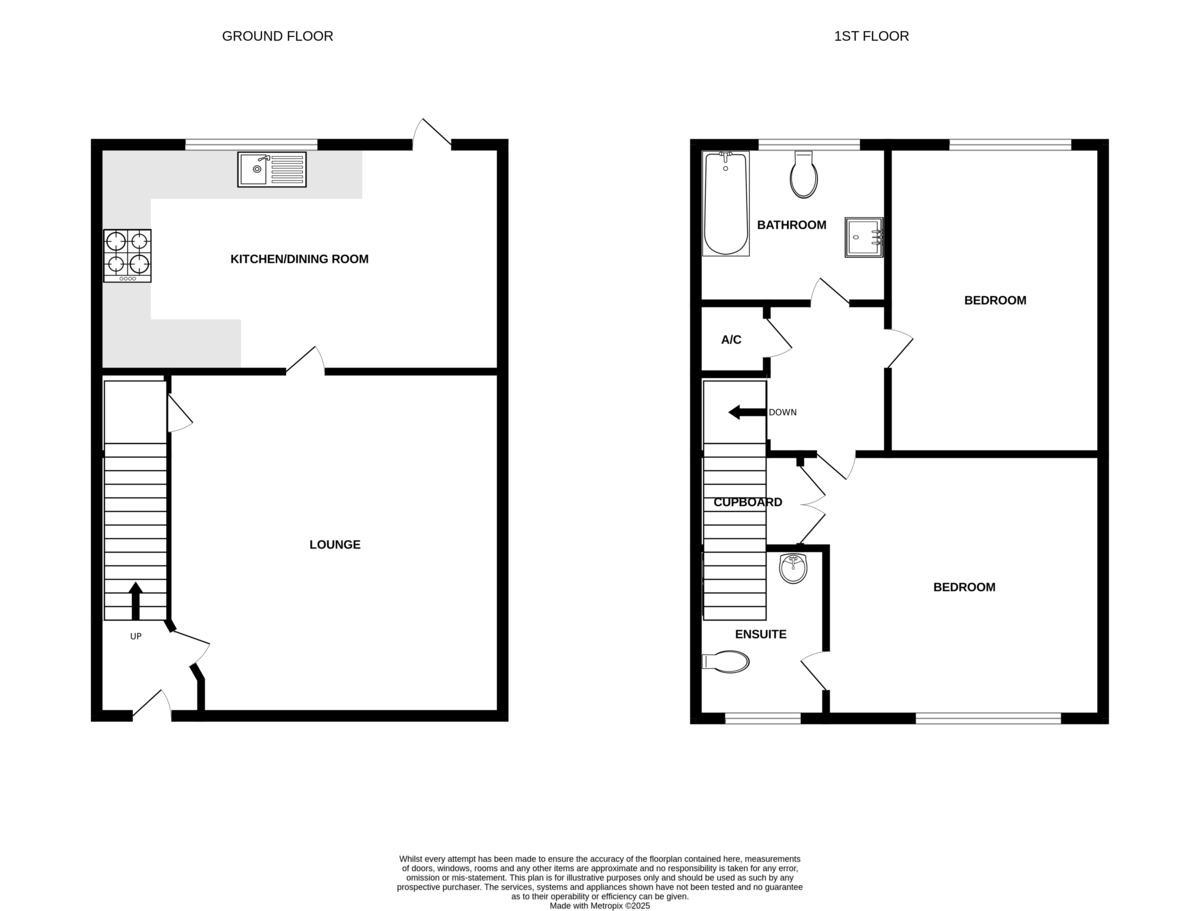
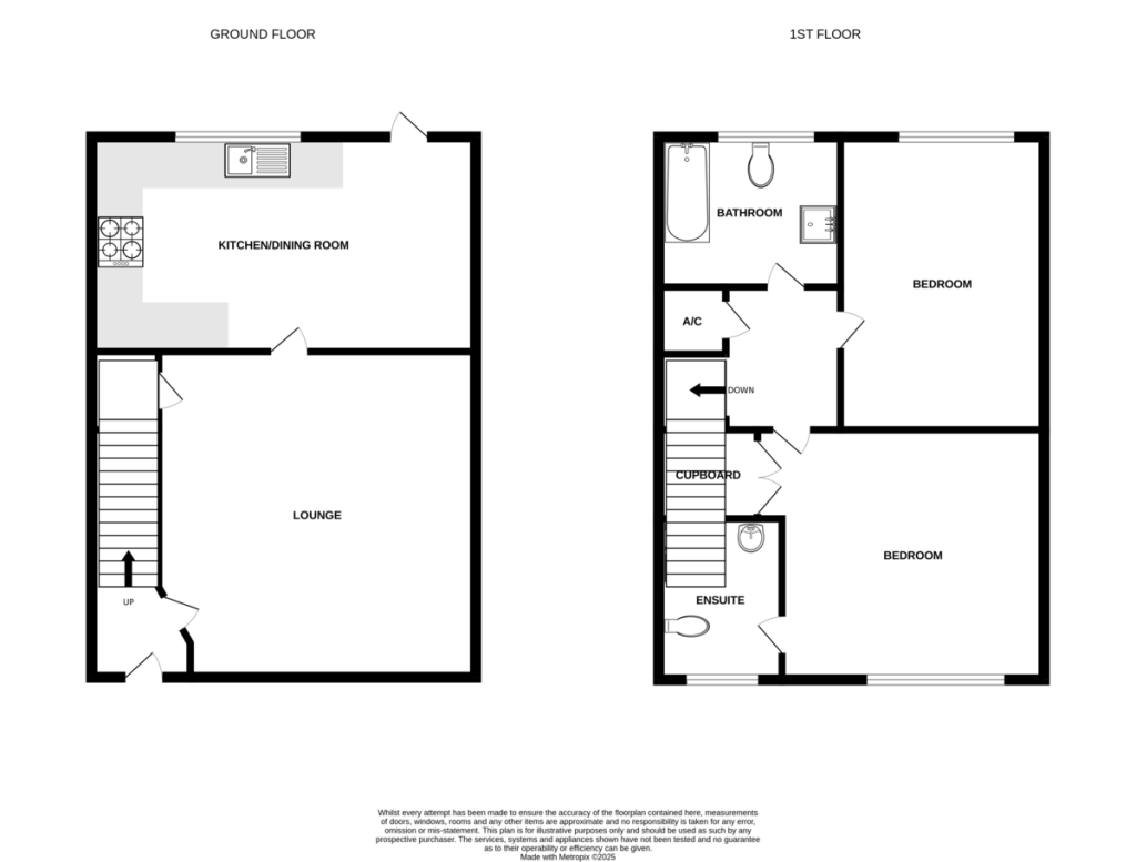
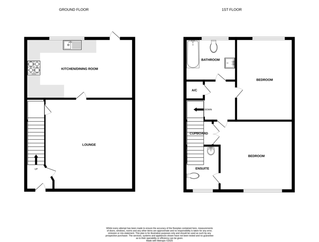
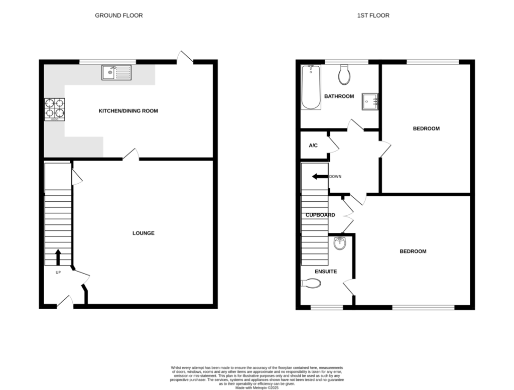
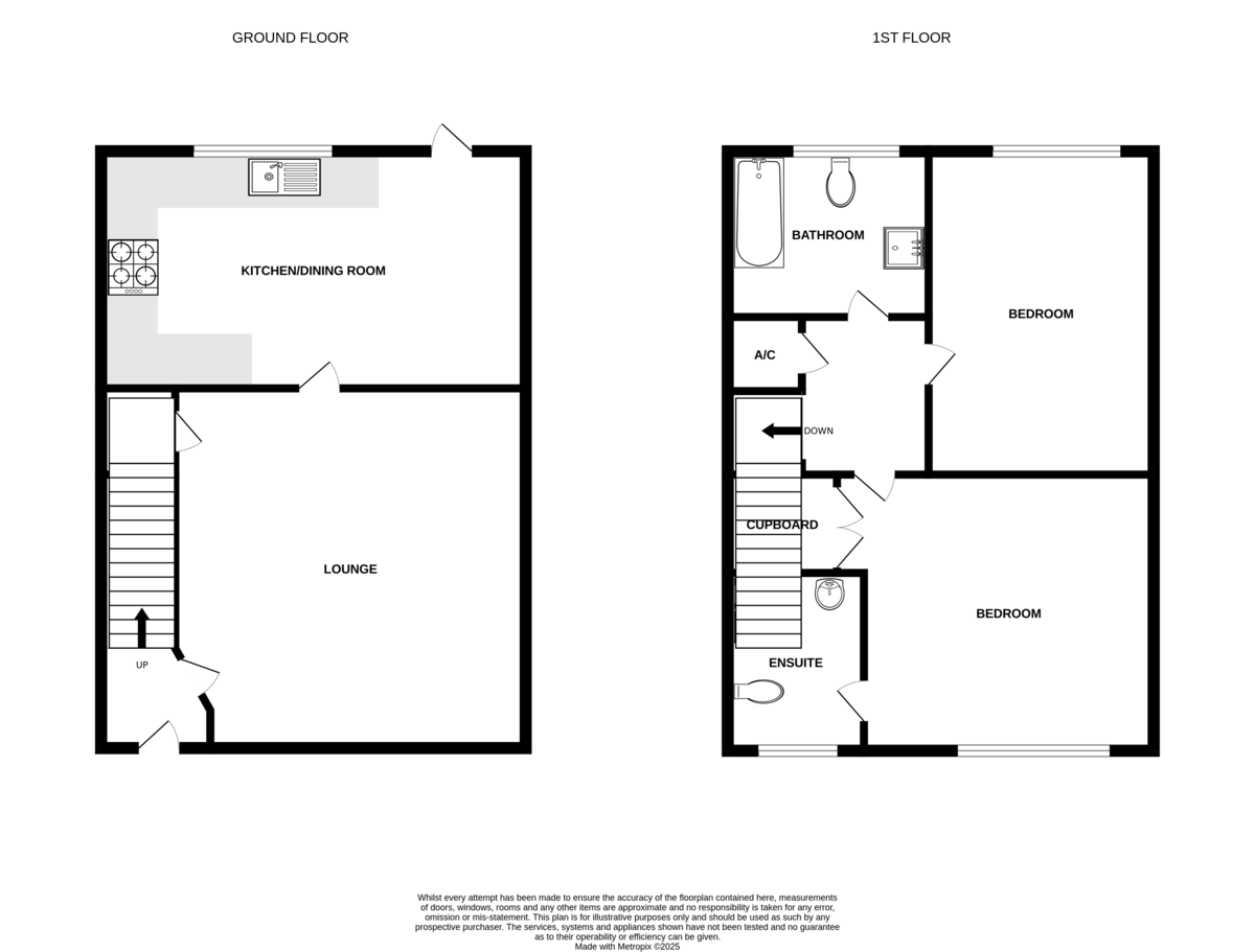
Bycroft Estate Agents are delighted to offer this two bedroom mid terraced house located at the end of a cul de sac in the ever popular Caister on Sea village. The property offers hallway entrance, spacious living room, modern kitchen/diner, two double bedrooms with the principle bedroom with en suite shower room, good size rear garden with access to the rear to the playing field.
ENTRANCE HALLWAY UPVC double-glazed entrance door;
LIVING ROOM 14' 10" x 5' 08" (4.52m x 1.73m) upvc window to front aspect; radiator; laminate flooring; understairs cupboard.
KITCHEN/DINER 8' 09" x 13' 06" (2.67m x 4.11m) modern white kitchen units comprising floor and wall units; grey modern worktop; space for a washing machine; space for tumble dryer; integrated dishwasher; double sink; upvc window to the rear; upvc door to rear.
LANDING airing cupboard housing the gas combination boiler.
BEDROOM 1 11' 6" x 8' 1" (3.51m x 2.46m) window to rear aspect; radiator.
EN SUITE wc; hand wash basin; tiled splashbacks and tiled shower; upvc window to front aspect; radiator.
BEDROOM 2 12' 1" x 7' 1" (3.68m x 2.16m)
FAMILY BATHROOM bath with mains shower over; wc; wash basin; upvc window to the rear; radiator.
OUTSIDE To the rear of the property is a patio area; laid to lawn; rear gate leading onto the playing field. Shed.
COUNCIL TAX The property is currently listed as a Band B.
VIEWING Strictly by appointment with the selling agents BYCROFT RESIDENTIAL. Tel. 01493 844484
DISCLAIMER While we endeavour to make our sales particulars fair, accurate and reliable, they are only a general guide to the property and, accordingly, if there is any point which is of particular importance to you, please contact the office and we will be pleased to check the position for you, especially if you are contemplating travelling some distance to view the property.
The approximate room sizes are only intended as general guidance. You must verify the dimensions carefully before ordering carpets or any built-in furniture.
Any references to garden sizes are approximate and subject to confirmation by a measured survey. A prospective purchaser is advised to arrange for their own land survey to be carried out.
Please note we have not tested the services or any of the equipment or appliances in this property, accordingly we strongly advise prospective buyers to commission their own survey or service reports before finalizing their offer to purchase.
THESE PARTICULARS ARE ISSUED IN GOOD FAITH BUT DO NOT CONSTITUTE REPRESENTATIONS OF FACT OR FORM PART OF ANY OFFER OR CONTRACT. THE MATTERS REFERRED TO IN THESE PARTICULARS SHOULD BE INDEPENDENTLY VERIFIED BY PROSPECTIVE BUYERS.
