Description
*GUIDE PRICE £325,000 - £350,000* Bycroft Estate Agents are delighted to present this amazing bungalow with unrivalled sea views within the popular coastal village of Hemsby. The property offers four bedrooms, three of them double and benefitting from an en-suite, a large kitchen diner with doors leading to the outside patio space and a spacious lounge with panoramic sea views. The garden wraps round and has private access down to the Dune Valley, a brick weave driveway for 2/3 cars and garage to the front. An internal inspection is highly recommended to fully appreciate the style and quality of accommodation on offer.
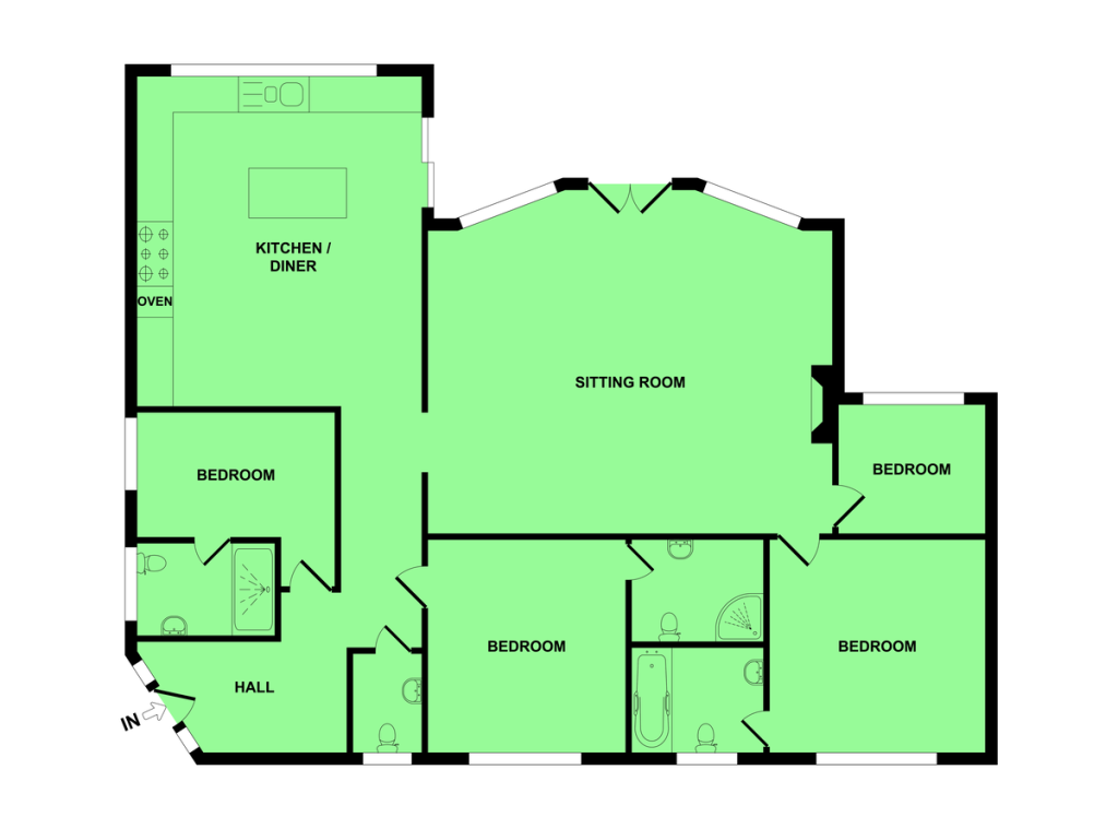
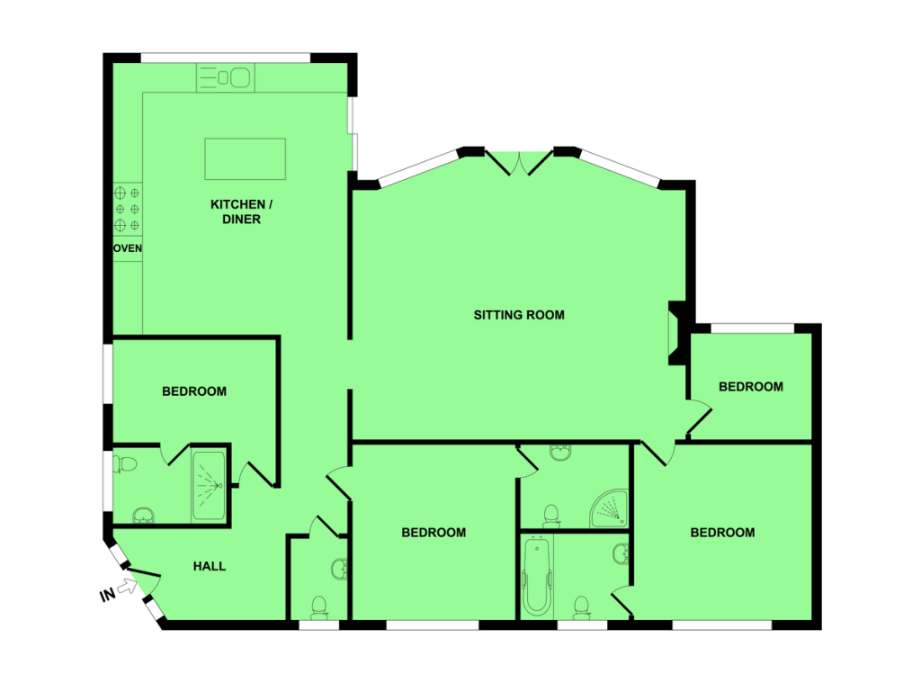
ENTRANCE HALL upvc double glazed door to front; upvc porthole stained glass window.
KITCHEN/DINER 18' x 14' 10" upvc double glazed windows to rear aspect with stunning sea view; upvc sliding doors to side aspect; extensive range of wall and base units; sink drainer; Range cooker which is run off Propane gas; additional cupboard housing the oil central heating boiler; island unit. Vaulted ceiling with beams.
LOUNGE 21' max x 19' upvc double glazed window to rear aspect; upvc double doors leading to the decking area; feature fireplace; laminate wood flooring; two radiators. This room provides superb views of the dunes and sea beyond.
BEDROOM 1 11' 1" x 11' 1" upvc double glazed window to front aspect; radiator.
EN SUITE wc; hand wash basin; bath with mixer tap and shower attachment over; radiator; upvc double glazed window to front aspect; tiled walls.
BEDROOM 2 11' 1" x 9' 10" upvc double glazed window to front aspect; radiator.
EN SUITE wc; hand wash basin; radiator; bath with mixer tap and shower attachment over; tiled walls.
BEDROOM 3 11' x 9' 1" double glazed window to side aspect; radiator.
EN SUITE wc; hand wash basin; radiator; walk-in shower cubicle with electric wall mounted shower; upvc double glazed window to side aspect.
BEDROOM 4/STUDY 7' 10" x 6' 11" upvc double glazed window to rear aspect; radiator.
CLOAKROOM wc; hand wash basin; upvc double glazed window to front aspect; radiator.
OUTSIDE To the front of the property is a brick weaved drive providing parking for 2/3 cars with access to GARAGE with up and over door. To the rear is a decked area directly off the kitchen and lounge. Lawned area. Side access on both sides. Concrete steps giving access directly to the Dune valley. Beautiful views of the Dunes and sea.
COUNCIL TAX The property is currently listed as a Band A.
VIEWING Strictly by appointment with the selling agents BYCROFT ESTATE AGENTS. Tel. 01493 844484.
DISCLAIMER
While we endeavour to make our sales particulars fair, accurate and reliable, they are only a general guide to the property and, accordingly, if there is any point which is of particular importance to you, please contact the office and we will be pleased to check the position for you, especially if you are contemplating travelling some distance to view the property.
The approximate room sizes are only intended as general guidance. You must verify the dimensions carefully before ordering carpets or any built-in furniture.
Any references to garden sizes are approximate and subject to confirmation by a measured survey. A prospective purchaser is advised to arrange for their own land survey to be carried out.
Please note we have not tested the services or any of the equipment or appliances in this property, accordingly we strongly advise prospective buyers to commission their own survey or service reports before finalising their offer to purchase.
THESE PARTICULARS ARE ISSUED IN GOOD FAITH BUT DO NOT CONSTITUTE REPRESENTATIONS OF FACT OR FORM PART OF ANY OFFER OR CONTRACT. THE MATTERS REFERRED TO IN THESE PARTICULARS SHOULD BE INDEPENDENTLY VERIFIED BY PROSPECTIVE BUYERS
Brochures
Energy Performance Certificate
