Description
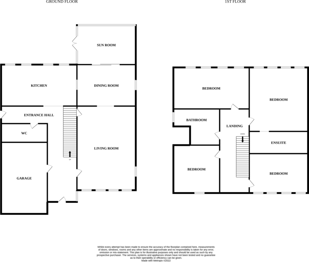
Bycroft Estate Agents are delighted to present this extended, beautifully presented, detached family residence situated in this sought after cul-de-sac location in the popular village of Belton close to shops and amenities. Accommodation comprises spacious entrance hall, cloakroom, lounge, sitting room, garden room, kitchen/breakfast room, first floor landing, four good size bedrooms with en suite to principal, family bathroom, front garden with driveway and integral garage, enclosed rear garden, double glazing and oil fired central heating. The property is offered for sale CHAIN FREE.
SPACIOUS ENTRANCE HALL UPVC entrance door with fixed side panels; stairs to first floor; understairs storage space; side window; downlights; radiator; UPVC side door; open archway to Kitchen / Breakfast Room.
CLOAKROOM wc; wall mounted wash hand basin with mixer tap; frosted window; chrome heated towel rail.
LOUNGE 19' 4" x 12' 8" (5.89m x 3.86m) York stone fireplace with multi fuel burning stove; bow bay window to front aspect; further side window; wall lights; open archway to Sitting Room.
SITTING ROOM 12' 8" x 9' 1" (3.86m x 2.77m) side window; radiator; serving hatch to Kitchen; bifolding doors out to Garden Room.
GARDEN ROOM 14' 7" x 12' 9" (4.44m x 3.89m) UPVC units and French doors out to garden; radiator; wall lights.
KITCHEN / BREAKFAST ROOM 15' 3" x 9' 6" (4.65m x 2.9m) large u-shaped worktop with a good range of base cupboards and drawers; integrated dishwasher; built in NEFF oven with four ring hob; one and a half bowl sink with mixer tap; space and recess for upright fridge freezer; range of wall units including light and extractor; rear window; downlights; tiled flooring; radiator; door into Garage.
FIRST FLOOR LANDING window to front aspect; downlights; access to roof space.
BEDROOM 1 13' 10" x 12' 8" (4.22m x 3.86m) including a range of built in units comprising three double wardrobes and a single, double bed recess with high level cupboards over, vanity unit and storage cupboards; window to rear aspect; radiator.
EN SUITE large shower cubicle with Triton shower fittings; large vanity unit comprising wash hand basin with storage cupboard under; chrome heated towel rail; fully tiled walls.
BEDROOM 2 13' 2" x 9' 5" (4.01m x 2.87m) plus built in units comprising three double wardrobes; window to rear aspect; radiator.
BEDROOM 3 12' 8" x 10' 5" (3.86m x 3.18m) window to front aspect; radiator.
BEDROOM 4 12' 11" x 8' 10" (3.94m x 2.69m) plus two double built in wardrobes and single and double bed recess with high level storage cupboards; window to front aspect; radiator.
BATHROOM wc; freestanding bath with centralised mixer tap and shower attachment; vanity unit comprising wash hand basin with mixer tap and storage cupboards; fully tiled walls; frosted window; chrome heated towel rail.
OUTSIDE To the front of the property there is a brickweave driveway with space for several cars standing and wide borders well stocked with shrubs, plants and flowers. To the rear there is an enclosed garden with shaped artificial lawned area, split level brickweave patios and pathways, borders with shrubs and trees, timber shed and gate to secluded plastic oil storage tank. Integral garage measures 19' 7" x 9' 0" with up and over door, light, power, oil fired floor mounted boiler, space and plumbing for washing machine, space for tumble dryer and upright fridge freezer and UPVC side window.
VIEWINGS Strictly by appointment with the selling agents, BYCROFT ESTATE AGENTS, tel: 01493 664000.
COUNCIL TAX This property is currently listed as Band D.
DISCLAIMER While we endeavour to make our sales particulars fair, accurate and reliable, they are only a general guide to the property and, accordingly, if there is any point which is of particular importance to you, please contact the office and we will be pleased to check the position for you, especially if you are contemplating travelling some distance to view the property.
The approximate room sizes are only intended as general guidance. You must verify the dimensions carefully before ordering carpets or any built-in furniture.
Any references to garden sizes are approximate and subject to confirmation by a measured survey. A prospective purchaser is advised to arrange for their own land survey to be carried out.
Please note we have not tested the services or any of the equipment or appliances in this property, accordingly we strongly advise prospective buyers to commission their own survey or service reports before finalizing their offer to purchase.
THESE PARTICULARS ARE ISSUED IN GOOD FAITH BUT DO NOT CONSTITUTE REPRESENTATIONS OF FACT OR FORM PART OF ANY OFFER OR CONTRACT. THE MATTERS REFERRED TO IN THESE PARTICULARS SHOULD BE INDEPENDENTLY VERIFIED BY PROSPECTIVE BUYERS.
Brochures
Energy Performance Certificate
