Description
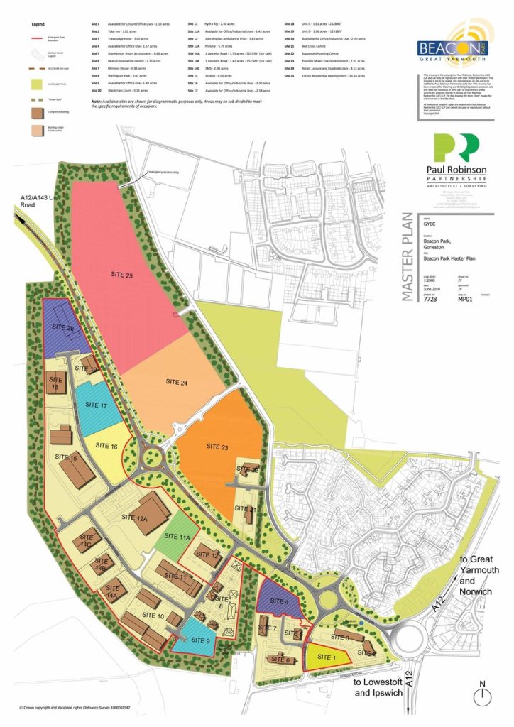
LOCATION
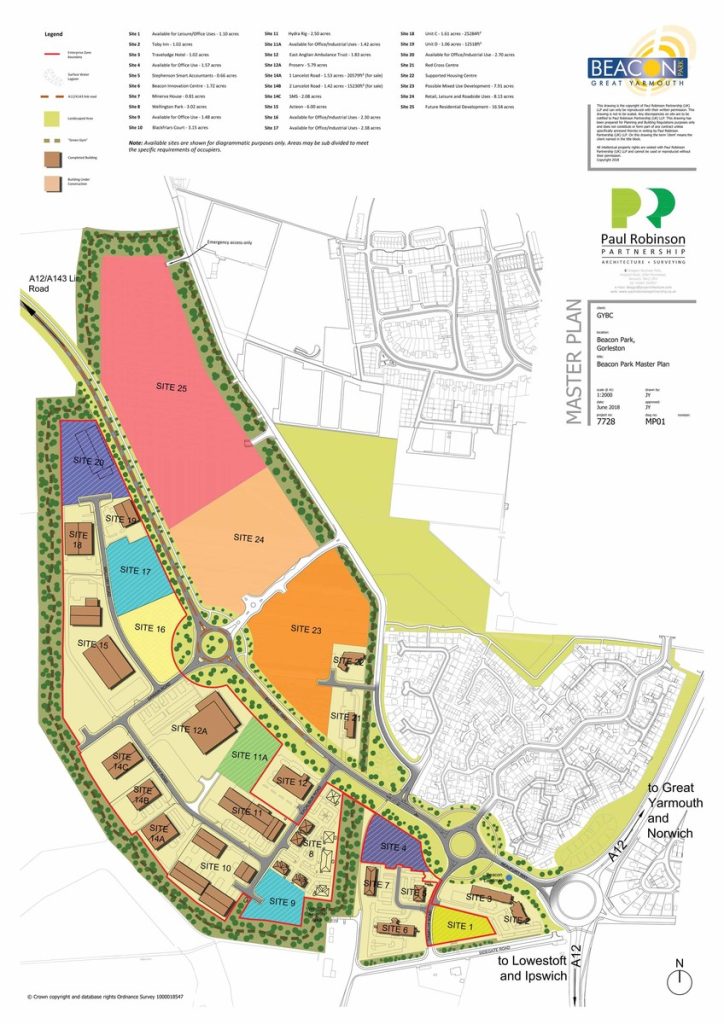
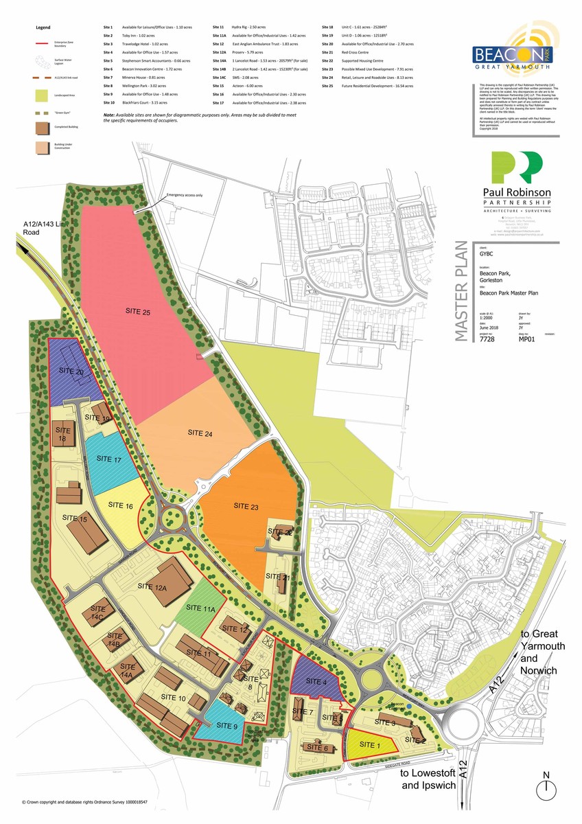
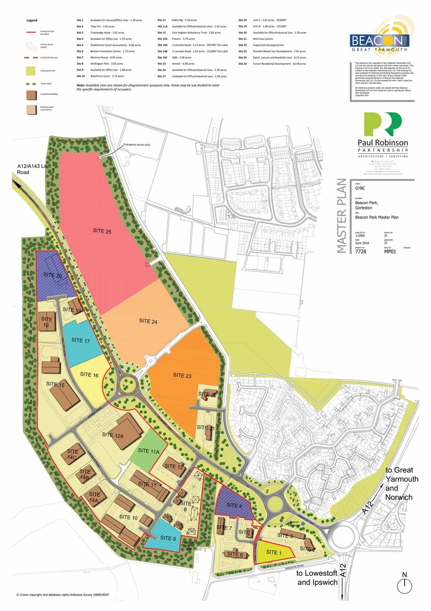
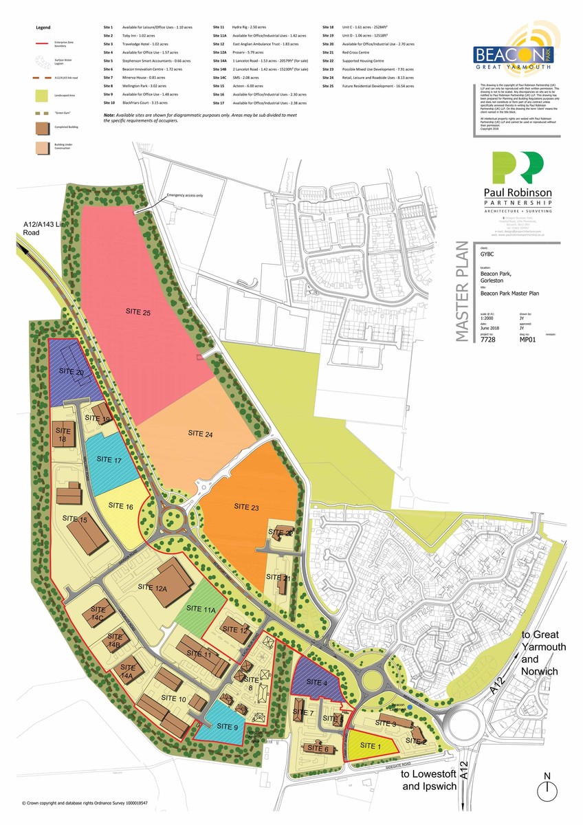
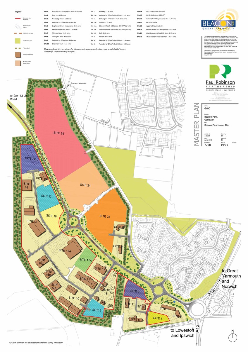
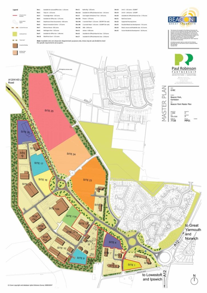
Great Yarmouth is a dynamic commercial centre encompassing a broad range of key business sectors. Beacon Park is located to the south of Great Yarmouth, adjacent to the A47 and provides excellent access to Great Yarmouth, Lowestoft, Norwich and the wider road network. Beacon Park has been allocated as one of the sites within the Great Yarmouth and Lowestoft Enterprise Zone. EZ status is designed to encourage business development and generate jobs through a combination of financial incentives and reduced planning restrictions.
OTHER
KEY FEATURES
• Popular location
• Grant funding available, subject to use
• Enterprise Zone status
• All sizes considered
VIEWING
Strictly by appointment with the selling / letting agents, BYCROFT COMMERCIAL: tel 01493 844489; db@charlesbycroft.co.uk.
