Description
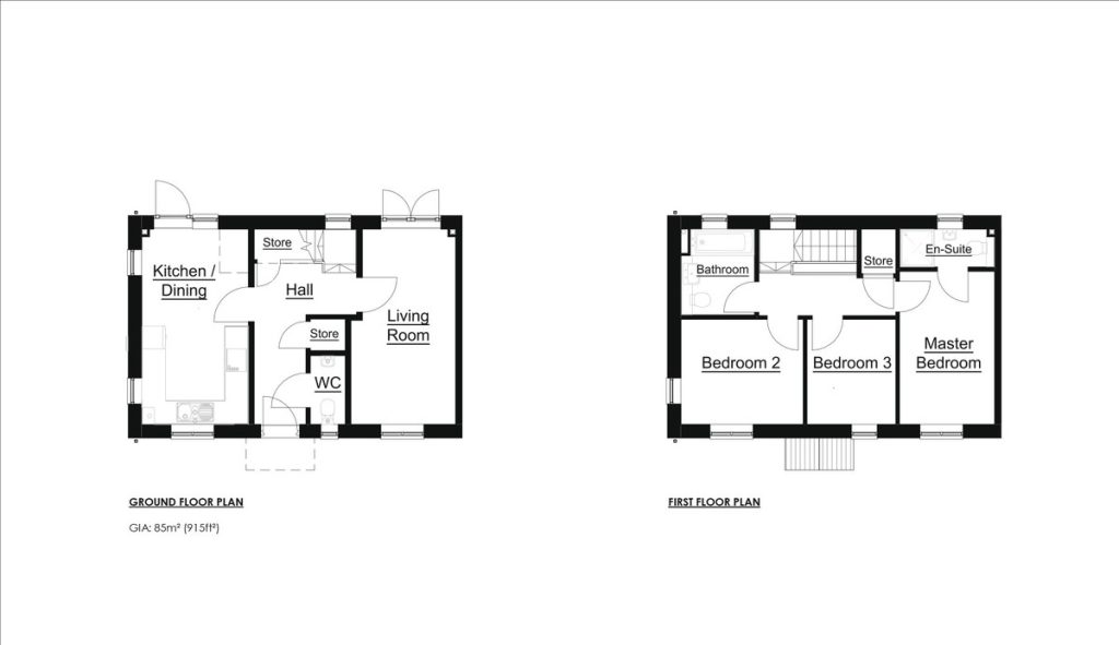
This beautiful three-bedroom end terraced home has comfortable sized rooms designed with the growing family in mind. On the ground floor the kitchen/dining area is perfect for family time, alongside a living room. There is a separate storage area and a cloakroom. On the first floor you will find 3 bedrooms, en-suite and family bathroom. The property benefits from gas central heating, double glazed windows and two allocated parking spaces.
ENTRANCE HALL luxury vinyl flooring; window to rear; storage cupboard.
CLOAKROOM tiled flooring; wc; wash hand basin; window to front.
LIVING ROOM 16' 9" x 8' 10" (5.11m x 2.69m) luxury vinyl flooring; window to front; patio door to rear garden; two radiators; multimedia power and aerial socket.
KITCHEN / DINING ROOM 16' 9" x 9' 2" (5.11m x 2.79m) tiled flooring; radiator; window to front and window and door to rear; range of fitted high gloss units with wood effect laminate worktop over; double electric oven; gas hob with extractor over; stainless steel inset sink; integral washer/dryer.
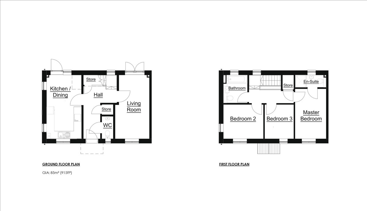
FIRST FLOOR LANDING carpet; window to rear; airing cupboard.
BEDROOM 1 13' 2" x 8' 3" (4.01m x 2.51m) fitted carpet; fitted wardrobe; window to front.
EN SUITE SHOWER ROOM tiled flooring; shower enclosure; wc; hand wash basin; window to rear.
BEDROOM 2 9' 2" x 10' 6" (2.79m x 3.2m) fitted carpet; radiator; window to front.
BEDROOM 3 9' 2" x 7' 6" (2.79m x 2.29m) fitted carpet; radiator; window to front.
BATHROOM bath with mixer tap and shower attachment; wash hand basin; wc; half tiled walls; tiled flooring; chrome heated towel rail; downlights; shaver point; extractor fan; frosted window.
OUTSIDE Two allocated parking spaces to front. Rear garden laid to lawn with patio slabs and gate for access.
SERVICES Mains water, electricity, drainage and gas are connected to the property.
VIEWINGS Strictly by appointment with the letting agents, BYCROFT LETTINGS, tel: 01493 844489.
AGENT'S NOTE If you wish to download a copy of the brochure "How to Rent" please click on the brochure link below or go to https://www.gov.uk/government/publications/how-to-rent.
FEES Tenant Fees Schedule
Holding Deposit (per tenancy)
One week's rent. This is to reserve a property. Please Note: This will be withheld if any relevant person (including any guarantor(s)) withdraw from the tenancy, fail a Right-to-Rent check, provide materially significant false or misleading information, or fail to sign their tenancy agreement (and / or Deed of Guarantee) within 15 calendar days (or other Deadline for Agreement as mutually agreed in writing).
Security Deposit (per tenancy. Rent under £50,000 per year)
Five weeks' rent. This covers damages or defaults on the part of the tenant during the tenancy.
Security Deposit (per tenancy. Rent of £50,000 or over per year)
Six weeks' rent. This covers damages or defaults on the part of the tenant during the tenancy.
Unpaid Rent
Interest at 3% above the Bank of England Base Rate from Rent Due Date until paid in order to pursue non-payment of rent. Please Note: This will not be levied until the rent is more than 14 days in arrears.
Lost Key(s) or other Security Device(s)
Tenants are liable to the actual cost of replacing any lost key(s) or other security device(s). If the loss results in locks needing to be changed, the actual costs of a locksmith, new lock and replacement keys for the tenant, landlord any other persons requiring keys will be charged to the tenant. If extra costs are incurred there will be a charge of £15 per hour (inc. VAT) for the time taken replacing lost key(s) or other security device(s).
Variation of Contract (Tenant's Request)
£50 (inc. VAT) per agreed variation. To cover the costs associated with taking landlord's instructions as well as the preparation and execution of new legal documents.
Change of Sharer (Tenant's Request)
£50 (inc. VAT) per replacement tenant or any reasonable costs incurred if higher. To cover the costs associated with taking landlord's instructions, new tenant referencing and Right-to-Rent checks, deposit registration as well as the preparation and execution of new legal documents.
Early Termination (Tenant's Request)
Should the tenant wish to leave their contract early, they shall be liable to the landlord's costs in re-letting the property as well as all rent due under the tenancy until the start date of the replacement tenancy. These costs will be no more than the maximum amount of rent outstanding on the tenancy.
Please ask a member of staff if you have any questions about our fees.
Bycroft Lettings is a member of RICS, which is a client money protection scheme, and also a member of The Property Redress Scheme.
Tenants deposits are safeguarded by the Tenancy Deposit Scheme which is administered by: The Dispute Service Ltd, 1 The Progression Centre, 42 Mark Road, Hemel Hempstead, Herts, HP2 7DW phone: 0300 037 1000; email: deposits@tenancydepositscheme.com; fax:01442 253193.
Energy Performance Certificate
