Description
Renovated two bedroom apartment over two floors with sea views from the lounge. Located in central Great Yarmouth just a short walk from the seafront and town centre which has access to the main bus and train stations and benefits from recently fitted main bathroom and separate shower room, recently fitted kitchen and heating system.
Please note the property is accessed via Russell Road. From Trafalgar Road turn into Russell Road and take the first road on the right hand side. The apartment's entrance can be found on the right hand side, door marked 20A.
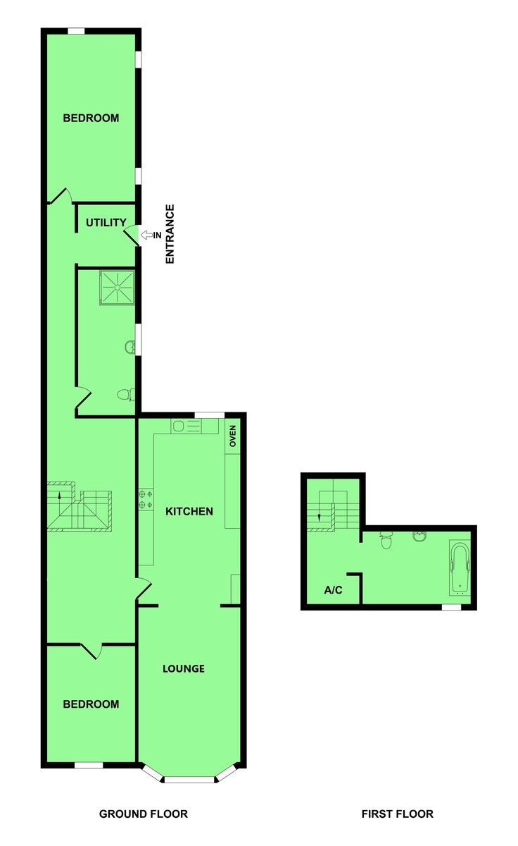
The property is accessed from a ground level access door with internal stairs leading up to the apartment entrance. At the front of this area is an enclosed roof terrace.
UTILITY AREA double glazed entrance door; tiled flooring; drainage and plumbing for washing machine and condenser dryer (which are included within the let); worksurface over; downlights.
INNER HALLWAY carpet; downlights; radiator; access to Bedroom 1; stairs to Lounge, Bedroom 2 and Top Floor.
BEDROOM 1 18' 0" x 9' 2" (5.5m x 2.8m) fitted carpet; wall mounted radiator; double glazed windows to rear and side aspects; downlights.
SHOWER ROOM 15' 8" x 6' 2" (4.8m x 1.9m) tiled flooring; white suite comprising of low level wc; hand wash basin; walk in shower with mains connected electric shower; two wall mounted chrome towel warmers/radiators; wall mounted mirror fronted cabinet; frosted double glazed window.
OPEN PLAN KITCHEN / LOUNGE
KITCHEN AREA 11' 5" x 10' 5" (3.5m x 3.2m) tiled flooring; modern grey gloss wall and base units with three drawer unit and woodblock worksurface over; fitted appliances including fridge freezer, electric oven, microwave, ceramic four ring hob and extractor hood; breakfast bar area; downlights; archway to Lounge Area.
LOUNGE AREA 16' 4" x 10' 5" (5.0m x 3.2m) fitted carpet; radiator; double glazed bay window to front offering sea views to the left side; downlights.
BEDROOM 2 12' 5" x 7' 10" (3.8m x 2.4m) fitted carpet; wall mounted radiator; double glazed window to front; grey gloss unit housing the boiler; downlights.
TOP FLOOR fitted carpet; open area with shelving for use as a cupboard/walk-in wardrobe; opening through to Bathroom.
BATHROOM tiled flooring and walls; white suite comprising of a low level wc; hand wash basin; bath; wall mounted radiator; Velux window; downlights.
VIEWINGS Strictly by appointment with the letting agents, BYCROFT LETTINGS, tel: 01493 844489.
AGENT'S NOTE If you wish to download a copy of the brochure "How to Rent" please click on the brochure link below or go to https://www.gov.uk/government/publications/how-to-rent.
FEES Tenant Fees Schedule
Holding Deposit (per tenancy)
One week's rent. This is to reserve a property. Please Note: This will be withheld if any relevant person (including any guarantor(s)) withdraw from the tenancy, fail a Right-to-Rent check, provide materially significant false or misleading information, or fail to sign their tenancy agreement (and / or Deed of Guarantee) within 15 calendar days (or other Deadline for Agreement as mutually agreed in writing).
Security Deposit (per tenancy. Rent under £50,000 per year)
Five weeks' rent. This covers damages or defaults on the part of the tenant during the tenancy.
Security Deposit (per tenancy. Rent of £50,000 or over per year)
Six weeks' rent. This covers damages or defaults on the part of the tenant during the tenancy.
Unpaid Rent
Interest at 3% above the Bank of England Base Rate from Rent Due Date until paid in order to pursue non-payment of rent. Please Note: This will not be levied until the rent is more than 14 days in arrears.
Lost Key(s) or other Security Device(s)
Tenants are liable to the actual cost of replacing any lost key(s) or other security device(s). If the loss results in locks needing to be changed, the actual costs of a locksmith, new lock and replacement keys for the tenant, landlord any other persons requiring keys will be charged to the tenant. If extra costs are incurred there will be a charge of £15 per hour (inc. VAT) for the time taken replacing lost key(s) or other security device(s).
Variation of Contract (Tenant's Request)
£50 (inc. VAT) per agreed variation. To cover the costs associated with taking landlord's instructions as well as the preparation and execution of new legal documents.
Change of Sharer (Tenant's Request)
£50 (inc. VAT) per replacement tenant or any reasonable costs incurred if higher. To cover the costs associated with taking landlord's instructions, new tenant referencing and Right-to-Rent checks, deposit registration as well as the preparation and execution of new legal documents.
Early Termination (Tenant's Request)
Should the tenant wish to leave their contract early, they shall be liable to the landlord's costs in re-letting the property as well as all rent due under the tenancy until the start date of the replacement tenancy. These costs will be no more than the maximum amount of rent outstanding on the tenancy.
Please ask a member of staff if you have any questions about our fees.
Bycroft Lettings is a member of RICS, which is a client money protection scheme, and also a member of The Property Redress Scheme.
Tenants deposits are safeguarded by the Tenancy Deposit Scheme which is administered by: The Dispute Service Ltd, 1 The Progression Centre, 42 Mark Road, Hemel Hempstead, Herts, HP2 7DW phone: 0300 037 1000; email: deposits@tenancydepositscheme.com; fax:01442 253193.
Energy Performance Certificate
