Description
A recently redecorated three bedroom mid terrace house situated in this convenient location close to shops and amenities and within walking distance of the main town shopping centre. Downstairs wc and pleasant enclosed rear yard. Available immediately.
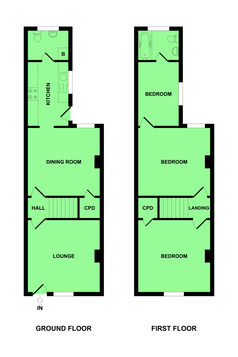
LOUNGE 11' 7" max x 11' 0" (3.53m x 3.35m) UPVC entrance door; newly fitted laminate flooring; window to front aspect; radiator.
INNER HALL newly fitted carpeted stairs to first floor.
DINING ROOM 11' 8" max x 11' 1" (3.56m x 3.38m) plus understairs storage cupboard; window to rear aspect; newly fitted laminate flooring radiator; open archway to Kitchen.
KITCHEN 10' 3" x 6' 5" (3.12m x 1.96m) worktops with a range of base and wall units; built in oven with four ring hob, light and extractor; stainless steel one bowl sink; space for upright fridge freezer; side window and door, newly fitted vinyl flooring.
CLOAKROOM / UTILITY wc; pedestal wash hand basin; worktop with space and plumbing for washing machine and space for tumble dryer; gas boiler; frosted window, newly fitted vinyl flooring.
FIRST FLOOR LANDING
BEDROOM 1 11' 7" max x 11' 2" (3.53m x 3.4m) plus storage cupboard; newly fitted carpet; window to front aspect; radiator.
BEDROOM 2 11' 8" max x 11' 3" (3.56m x 3.43m) newly fitted carpet; window to rear aspect; radiator; access to roof space; door into Bedroom 3.
BEDROOM 3 9' 0" x 6' 6" (2.74m x 1.98m) newly fitted carpet; side window; radiator; door into Bathroom.
BATHROOM pedestal wash hand basin; wc; bath with mains connected shower; chrome heated towel rail; fully tiled walls; frosted window; extractor fan, newly fitted vinyl flooring.
OUTSIDE To the front of the property there is a forecourt area with low brick walling. To the rear there is a pleasant, low maintenance, enclosed yard with patio area and gate providing pedestrian access.
AGENTS NOTE Please note the flooring has been changed since the internal photos were taken.
AGENT'S NOTE If you wish to download a copy of the brochure "How to Rent" please click on the brochure link below.
COUNCIL TAX The property is currently listed as Band A.
VIEWINGS Strictly by appointment with the letting agents, BYCROFT LETTINGS, tel: 01493 844489.
FEES Tenant Fees Schedule
Holding Deposit (per tenancy)
One week's rent. This is to reserve a property. Please Note: This will be withheld if any relevant person (including any guarantor(s)) withdraw from the tenancy, fail a Right-to-Rent check, provide materially significant false or misleading information, or fail to sign their tenancy agreement (and / or Deed of Guarantee) within 15 calendar days (or other Deadline for Agreement as mutually agreed in writing).
Security Deposit (per tenancy. Rent under £50,000 per year)
Five weeks' rent. This covers damages or defaults on the part of the tenant during the tenancy.
Security Deposit (per tenancy. Rent of £50,000 or over per year)
Six weeks' rent. This covers damages or defaults on the part of the tenant during the tenancy.
Unpaid Rent
Interest at 3% above the Bank of England Base Rate from Rent Due Date until paid in order to pursue non-payment of rent. Please Note: This will not be levied until the rent is more than 14 days in arrears.
Lost Key(s) or other Security Device(s)
Tenants are liable to the actual cost of replacing any lost key(s) or other security device(s). If the loss results in locks needing to be changed, the actual costs of a locksmith, new lock and replacement keys for the tenant, landlord any other persons requiring keys will be charged to the tenant. If extra costs are incurred there will be a charge of £15 per hour (inc. VAT) for the time taken replacing lost key(s) or other security device(s).
Variation of Contract (Tenant's Request)
£50 (inc. VAT) per agreed variation. To cover the costs associated with taking landlord's instructions as well as the preparation and execution of new legal documents.
Change of Sharer (Tenant's Request)
£50 (inc. VAT) per replacement tenant or any reasonable costs incurred if higher. To cover the costs associated with taking landlord's instructions, new tenant referencing and Right-to-Rent checks, deposit registration as well as the preparation and execution of new legal documents.
Early Termination (Tenant's Request)
Should the tenant wish to leave their contract early, they shall be liable to the landlord's costs in re-letting the property as well as all rent due under the tenancy until the start date of the replacement tenancy. These costs will be no more than the maximum amount of rent outstanding on the tenancy.
Please ask a member of staff if you have any questions about our fees.
Bycroft Lettings is a member of RICS, which is a client money protection scheme, and also a member of The Property Redress Scheme.
Tenants deposits are safeguarded by the Tenancy Deposit Scheme which is administered by: The Dispute Service Ltd, 1 The Progression Centre, 42 Mark Road, Hemel Hempstead, Herts, HP2 7DW phone: 0300 037 1000; email: deposits@tenancydepositscheme.com; fax:01442 253193.
Brochures
Click to download BrochureEnergy Performance Certificate
