Description
Development Opportunity
A rare opportunity to acquire a substantial complex of traditional Norfolk red brick barns with full planning consent for the creation of four residential dwellings. The site extends to approximately 1.79 acres. The sale is by way of an informal tender process.
LOCATION Hemsby is a popular residential village and an established holiday resort on the Norfolk Coast. It is situated approximately 7.5 miles north of Great Yarmouth and 8.7 miles north east of Acle.
The barns are positioned in a delightful central village location offering walking distance to amenities including the Post Office, Village Hall and playing field, shops and takeaways.
The famous Hemsby beach is close by and this location is on the edge of the Broads National Park.
PROPERTY DESCRIPTION The opportunity is a substantial complex of traditional Norfolk Barns with red brick elevations and a mix of thatched and pantile roofs.
The scheme is anchored by a significant Grade II Star listed barn which provides an opportunity for a stunning conversion with a new built contemporary annexe attached to provide a completely bespoke living opportunity. Three further plots are provided offering many original features and exposed beams. The barns date from the late seventeenth century.
PLOT 1
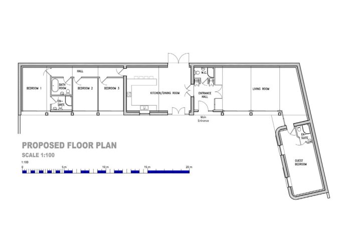
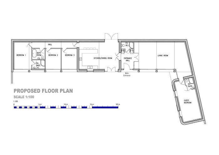
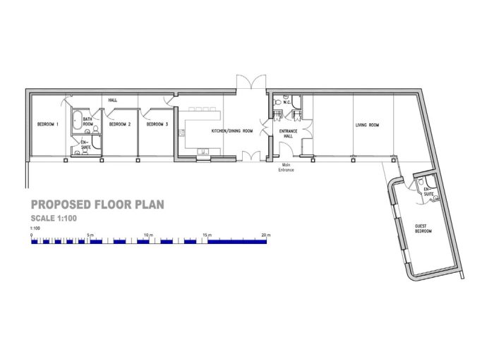
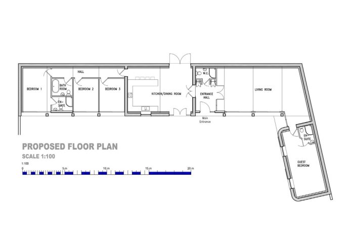
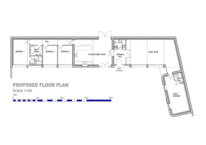
An L-shaped single storey barn extending to a gross external area of approximately 235 sq m (2,530 sq ft) on a plot of approximately 0.128 hectares (0.32 acres). The barn will provide a four bedroom dwelling with significant grounds, central living area with family rooms to one end and guest accommodation to the other end.
PLOT 2
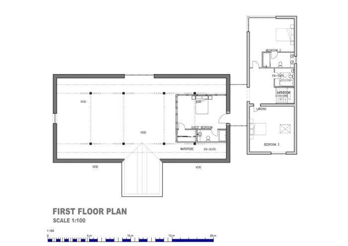
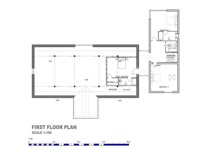
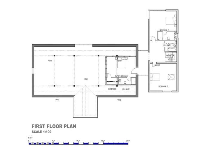
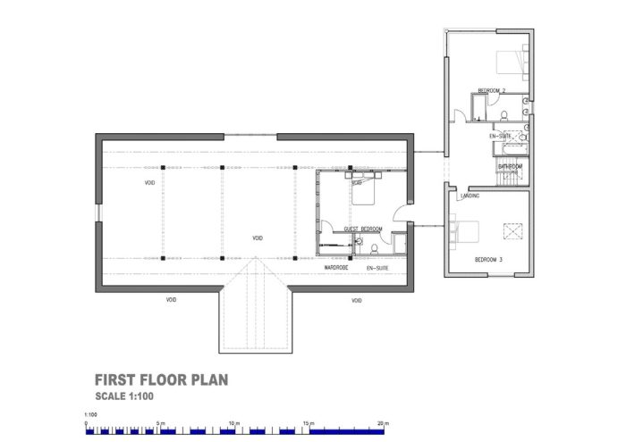
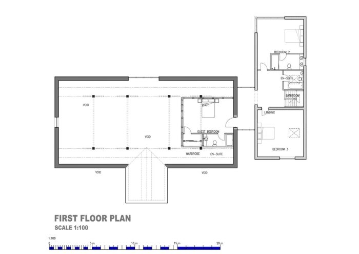
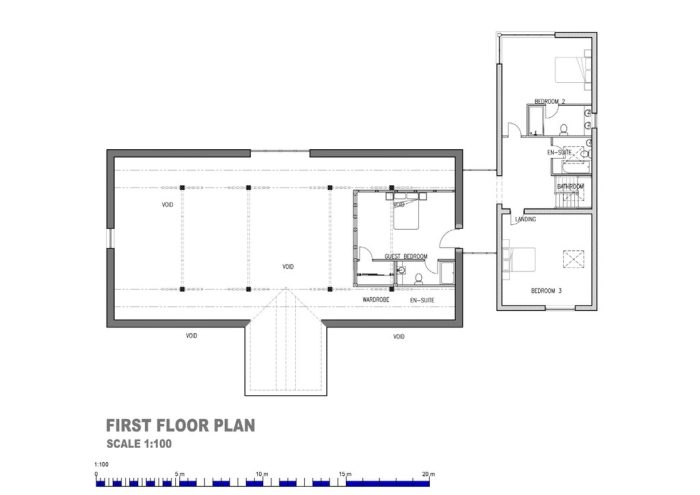
This contains the Grade II Star listed barn and the new contemporary addition. The plot extends to approximately 0.185 hectares (0.45 acres) and it is proposed that the barn is converted to provide a significant open plan lounge/function area with large entrance hall and an installed dining area with mezzanine above providing a guest bedroom with en suite. A new link building, contemporary in design, provides three further bedrooms, two with en suites, family bathroom and a double garage. The accommodation extends to a generous 432.91 sq m (4,660 sq ft).
PLOT 3
This barn sits on a plot at the north end of the site extending to approximately 0.1133 hectares (0.28 acres). This barn is a three bedroom detached barn providing a net internal area of approximately 121.98 sq m (1,313 sq ft).
PLOT 4
Positioned to the north of the site, this is a new build cleared plot extending to approximately 0.0772 hectares (0.19 acres) and a three bed detached barn is proposed extending to approximately 122.63 sq m (1,320 sq ft).
PLOT 6
A largely cleared plot extending to 420 sq m upon which a courtyard style barn in three wings is proposed extending to approximately 125 sq m (1,350 sq ft).
PLANNING PLANNING
The site has been given full planning consent for the conversion of the existing agricultural buildings to provide five residential units (including Plot 6) through the conversion of existing buildings, demolition of modern agricultural buildings, new/replacement buildings and extensions to existing buildings and associated infrastructure. The reference is number is 06/20/0023/F.
AGENT'S NOTE
Substantial commencement has begun on site with the demolition of former grain stores and potato sheds to clear the external areas.
SERVICES We believe that mains water, drainage and electricity are available on site or close too via the adjacent main road Waters Lane.
TERMS The development opportunity is offered for sale freehold by informal tender.
PRICE £550,000. VAT will not be payable.
VIEWINGS Strictly by appointment with the sole selling agents, BYCROFT COMMERCIAL.
Please contact Daniel Bycroft for further information - tel: 01493 844489 - email: db@charlesbycroft.co.uk
AGENTS NOTE Council Tax Band to be confirmed
DISCLAIMER While we endeavour to make our sales particulars fair, accurate and reliable, they are only a general guide to the property and, accordingly, if there is any point which is of particular importance to you, please contact the office and we will be pleased to check the position for you, especially if you are contemplating travelling some distance to view the property.
The approximate room sizes are only intended as general guidance. You must verify the dimensions carefully before ordering carpets or any built-in furniture.
Any references to garden sizes are approximate and subject to confirmation by a measured survey. A prospective purchaser is advised to arrange for their own land survey to be carried out.
Please note we have not tested the services or any of the equipment or appliances in this property, accordingly we strongly advise prospective buyers to commission their own survey or service reports before finalizing their offer to purchase.
THESE PARTICULARS ARE ISSUED IN GOOD FAITH BUT DO NOT CONSTITUTE REPRESENTATIONS OF FACT OR FORM PART OF ANY OFFER OR CONTRACT. THE MATTERS REFERRED TO IN THESE PARTICULARS SHOULD BE INDEPENDENTLY VERIFIED BY PROSPECTIVE BUYERS.
