Description
Bycroft Estate Agents are delighted to present this beautifully presented, spacious four bedroom, detached family residence situated in this quiet, sought after cul-de-sac location of Bradwell. Close to shops, amenities as well as schools for all ages. The accommodation comprises of a spacious entrance hall, lounge, kitchen diner, dining room, downstairs cloakroom, landing, four bedrooms with ensuite to principal, family bathroom. The property benefits from driveway for four cars, double garage, good sized mature, enclosed rear garden, gas central heating and double glazed windows.
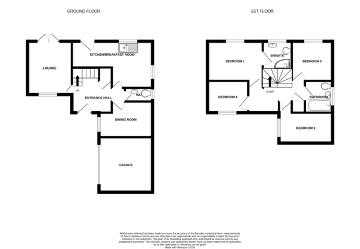
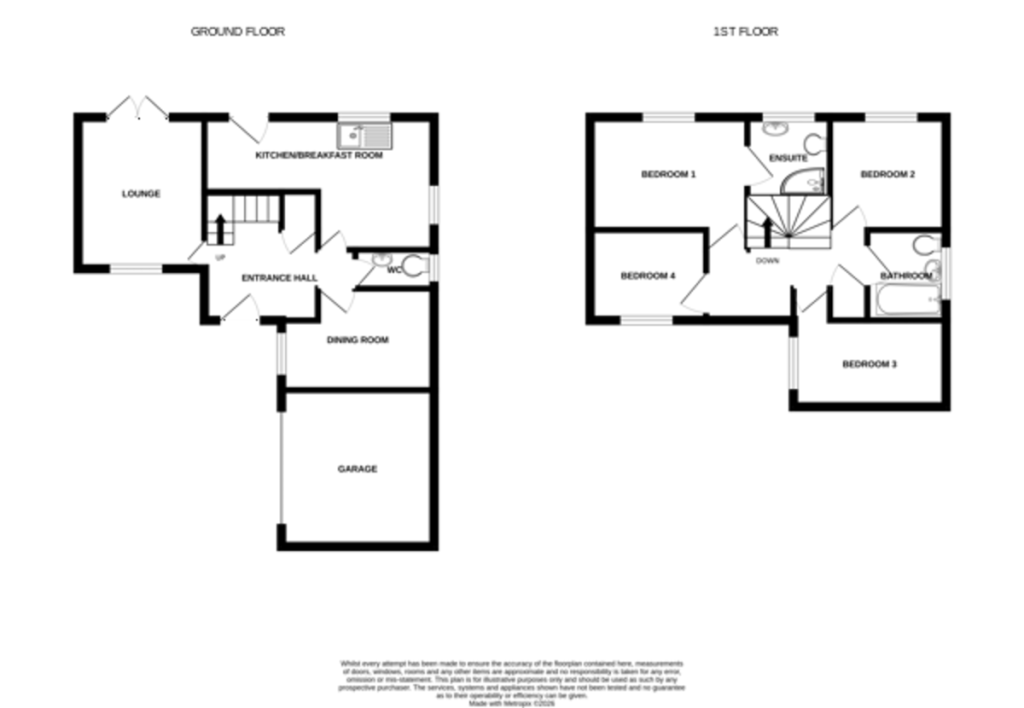
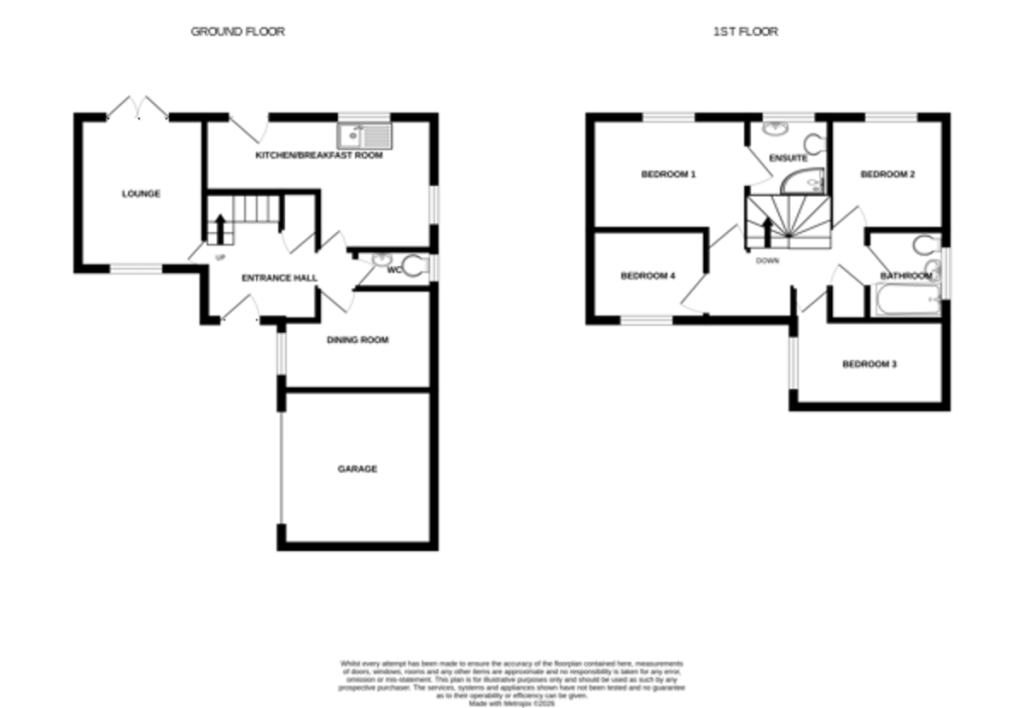
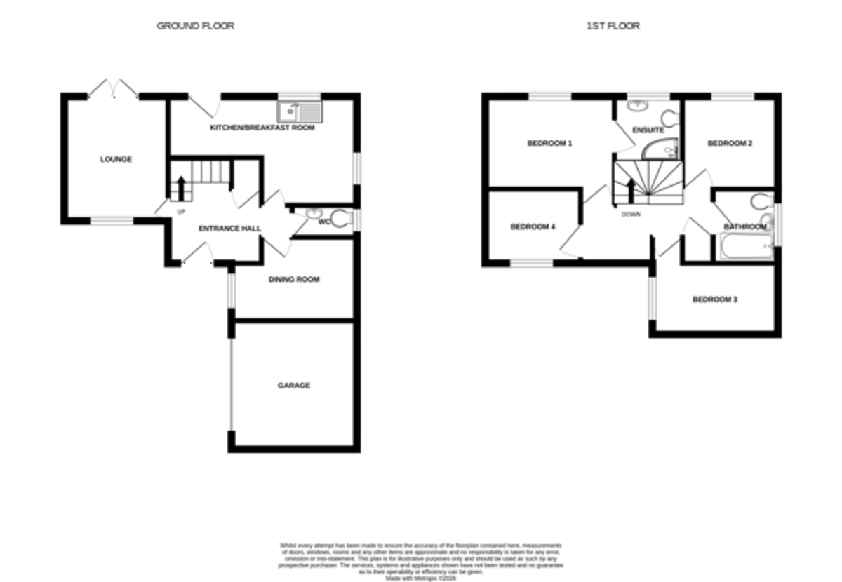
ENTRANCE front door with fixed side panels, spacious entrance hall, stairs to first floor, understairs storage cupboard, radiator.
CLOAKROOM hand wash basin, wc, frosted double glazed side window.
LOUNGE 15' 6" x 14' 1 max " (4.72m x 4.29m) window to front aspect, two radiators, French doors to rear garden.
KITCHEN BREAKFAST ROOM 17' 11" x 12' 2 narrowing to 7'" (5.46m x 3.71m) modern fitted kitchen comprising large U-shaped worktop, good range of base, cupboards and drawers, integrated washing machine, eye-level Bosch oven and microwave with matching four ring hob, 1½ bowl sink with mixer tap, larger cupboard housing the Valient gas boiler, light and extractor, further bank of units, recess and plumbing for American style fridge freezer, windows to rear and side aspects, stable door to rear garden, radiator, downlights.
DINING ROOM 11' 6" x 9' 3" (3.51m x 2.82m) deep sill window to front aspect, radiator.
FIRST FLOOR LANDING access to roof space, airing cupboard, window to front aspect, radiator.
PRINCIPAL BEDROOM 14' 2" x 8' 10 plus door recess" (4.32m x 2.69m) window to rear aspect, radiator.
EN SUITE SHOWER ROOM hand wash basin with mixer tap, wc, recently fitted walk-in shower with mains fittings, frosted double glazed window, radiator.
BEDROOM 2 12' x 9' 11 max" (3.66m x 3.02m) window to rear aspect, radiator.
BEDROOM 3 11' 7" x 6' 6 plus door recess" (3.53m x 1.98m) window to front aspect, radiator.
BEDROOM 4 11' 2" x 6' 4" (3.4m x 1.93m) window to front aspect, radiator.
BATHROOM wc, pedestal hand wash basin, bath, fully tiled walls, chrome heated towel rail, frosted double glazed window.
OUTSIDE The property is accessed by a private driveway shred between four properties, driveway space for four cars standing, attached double garage, pathway to front door. To the rear of the property is a very good sized, beautifully maintained a mature rear garden with shingle patio and pathways, lawn, feature low flint wall, summer house, storage shed and circular patios.
DOUBLE GARAGE electric up and over door, storage space to eaves
COUNCIL TAX This property is currently listed as Band D.
VIEWINGS Strictly by appointment with the selling agents, BYCROFT ESTATE AGENTS, tel: 01493 664000.
DISCLAIMER While we endeavour to make our sales particulars fair, accurate and reliable, they are only a general guide to the property and, accordingly, if there is any point which is of particular importance to you, please contact the office and we will be pleased to check the position for you, especially if you are contemplating travelling some distance to view the property.
The approximate room sizes are only intended as general guidance. You must verify the dimensions carefully before ordering carpets or any built-in furniture.
Any references to garden sizes are approximate and subject to confirmation by a measured survey. A prospective purchaser is advised to arrange for their own land survey to be carried out.
Please note we have not tested the services or any of the equipment or appliances in this property, accordingly we strongly advise prospective buyers to commission their own survey or service reports before finalising their offer to purchase.
THESE PARTICULARS ARE ISSUED IN GOOD FAITH BUT DO NOT CONSTITUTE REPRESENTATIONS OF FACT OR FORM PART OF ANY OFFER OR CONTRACT. THE MATTERS REFERRED TO IN THESE PARTICULARS SHOULD BE INDEPENDENTLY VERIFIED BY PROSPECTIVE BUYERS.
Brochures
Energy Performance Certificate
