Description
*MOVE STRIAGHT IN* Bycroft Estate Agents are delighted to present this charming, end terrace property situated in a popular residential position within the village of Caister-on-Sea. Offering three bedroom accommodation (formerly four) with family bathroom, welcoming entrance hallway, spacious sitting room, kitchen diner. The property benefits from UPVC double glazing, gas fired central heating with gardens to the front and rear. The front laid mainly to lawn with a driveway area providing off road parking for the property, an enclosed rear garden laid mainly to lawn with paved patio seating area providing the ideal space for relaxing or entertaining. Internal inspection is highly recommended to fully appreciate the style and quality of the accommodation on offer.
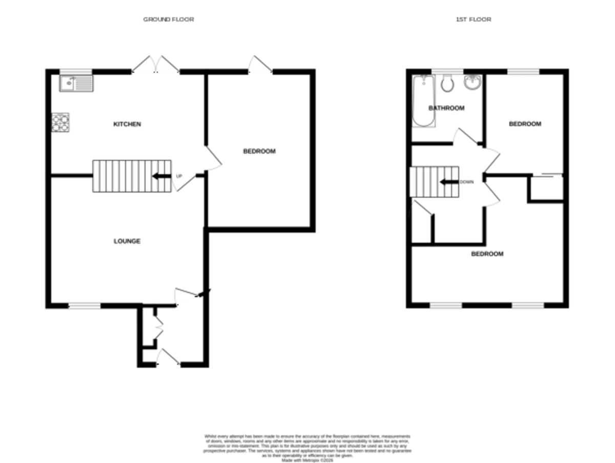
ENTRANCE HALL 5' 7 max" x 3' 6 max" (1.7m x 1.07m) UPVC double glazed door to front, built-in storage cupboard, built-in boiler cupboard with wall mounted gas fired central heating boiler.
SITTING ROOM 14' 11 max" x 11' 5 max " (4.55m x 3.48m) UPVC double glazed window to front.
KITCHEN DINER 14' 11 max" x 13' 3 max" (4.55m x 4.04m) fitted with a range of wall and base units with square edge work surfaces over, inset single drainer sink with mixer tap over, plumbing for automatic washing machine, space and plumbing for a 45cm dishwasher, built-in electric oven, four ring gas hob with cooker hood over, space under unit fridge and freezer, Peninsula breakfast bar with built-in wine rack, a further breakfast bar worksurface area with under counter storage, tiled flooring, tiled splashbacks, two UPVC double glazed window to rear, UPVC double glazed door to rear, stairs to first floor landing.
BEDROOM 3 / RECEPTION ROOM 15' 9" x 7' 11" (4.8m x 2.41m) UPVC double glazed window to rear, UPVC double glazed door to rear.
FIRST FLOOR LANDING 8' 6 max minus stairwell" x 9' (2.59m x 2.74m) loft access, built-in storage cupboard.
BEDROOM 1 14' 10 max into robe" x 9' 11 max" (4.52m x 3.02m) formerly two bedrooms - built-in wardrobe, built-in over stairs storage cupboard, UPVC double glazed window to front, UPVC double glazed box window to front.
BEDROOM 2 11' 7 max" x 8' 5 max" (3.53m x 2.57m) fitted bedroom furniture - over bed cupboards and bedside tables, UPVC double glazed window to rear.
BATHROOM 6' 10" x 6' 2" (2.08m x 1.88m) fitted with a white suite comprising of a pedestal hand wash basin with mixer tap over, low level wc, double ended panel bath with mixer tap and wall mounted shower unit, tiled walls, built-in storage cupboard, UPVC double glazed window to rear.
OUTSIDE To the front of the property is a garden areas laid mainly to lawn with paved pathway approach to the front door with covered storm porch, driveway area providing off road parking. To the rear of the property is an enclosed garden laid mainly to lawn, two paved patio seating areas providing a choice of areas for relaxing or entertaining, the paved pathway area giving access to a side gate with timber shed, well stocked borders, raised planter, mature shrubs and outside tap.
COUNCIL TAX This property is currently listed as Band B.
VIEWINGS Strictly by appointment with the selling agents, BYCROFT ESTATE AGENTS, tel: 01493 844484.
DISCLAIMER While we endeavour to make our sales particulars fair, accurate and reliable, they are only a general guide to the property and, accordingly, if there is any point which is of particular importance to you, please contact the office and we will be pleased to check the position for you, especially if you are contemplating travelling some distance to view the property.
The approximate room sizes are only intended as general guidance. You must verify the dimensions carefully before ordering carpets or any built-in furniture.
Any references to garden sizes are approximate and subject to confirmation by a measured survey. A prospective purchaser is advised to arrange for their own land survey to be carried out.
Please note we have not tested the services or any of the equipment or appliances in this property, accordingly we strongly advise prospective buyers to commission their own survey or service reports before finalising their offer to purchase.
THESE PARTICULARS ARE ISSUED IN GOOD FAITH BUT DO NOT CONSTITUTE REPRESENTATIONS OF FACT OR FORM PART OF ANY OFFER OR CONTRACT. THE MATTERS REFERRED TO IN THESE PARTICULARS SHOULD BE INDEPENDENTLY VERIFIED BY PROSPECTIVE BUYERS.
Brochures
Energy Performance Certificate
