Description
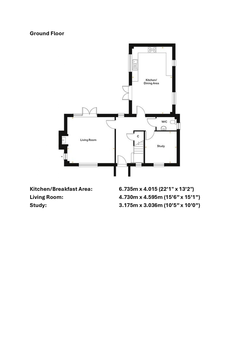
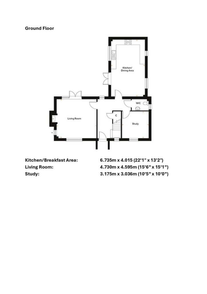
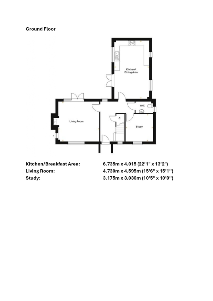
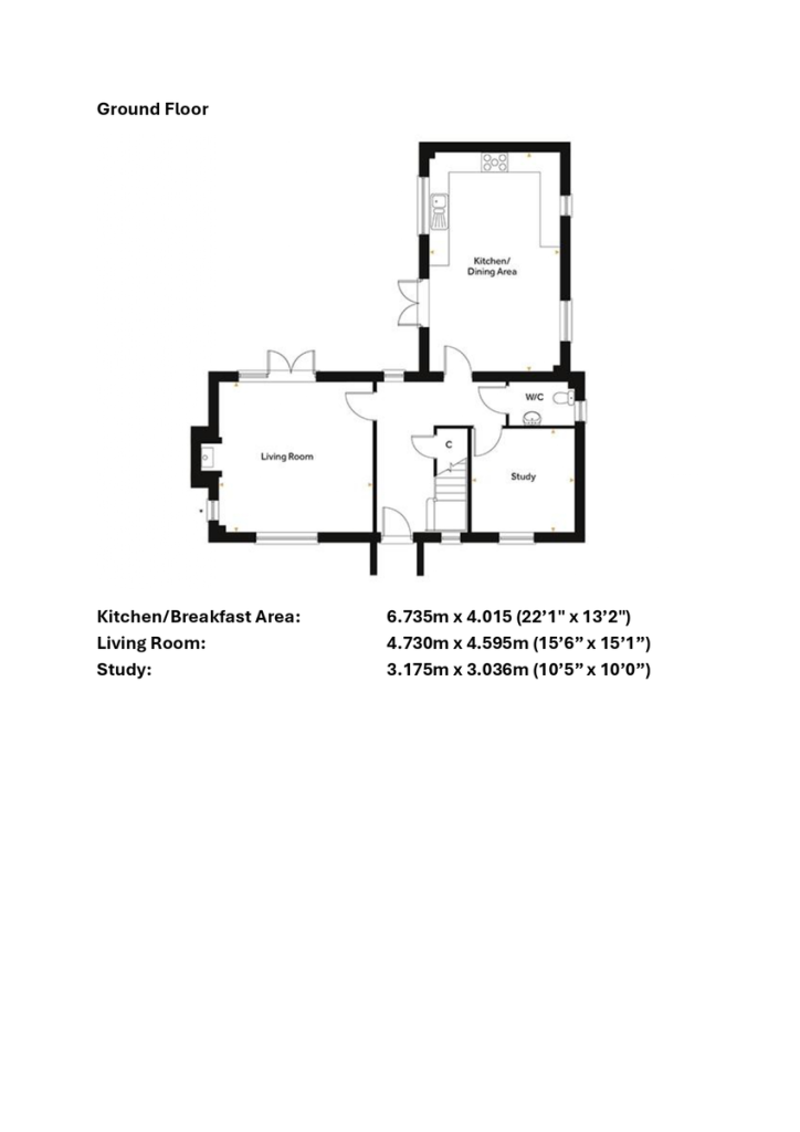
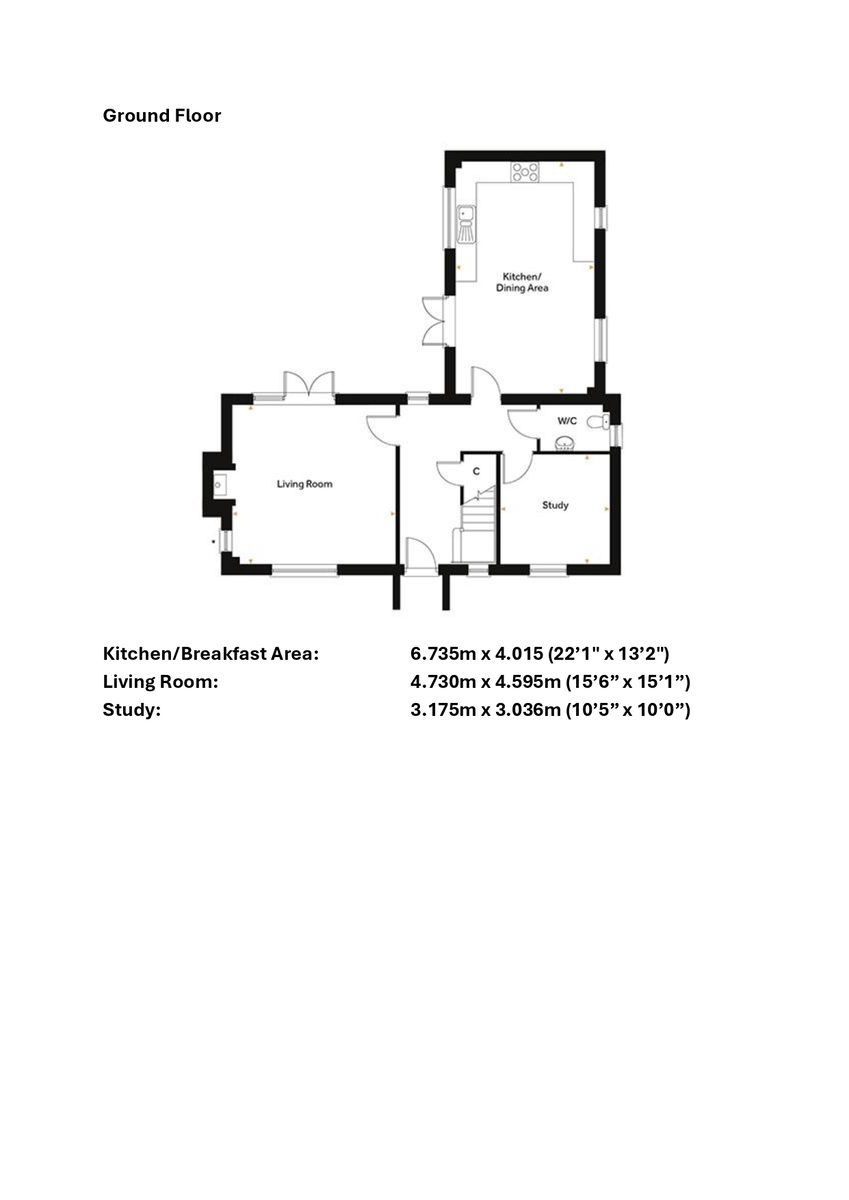
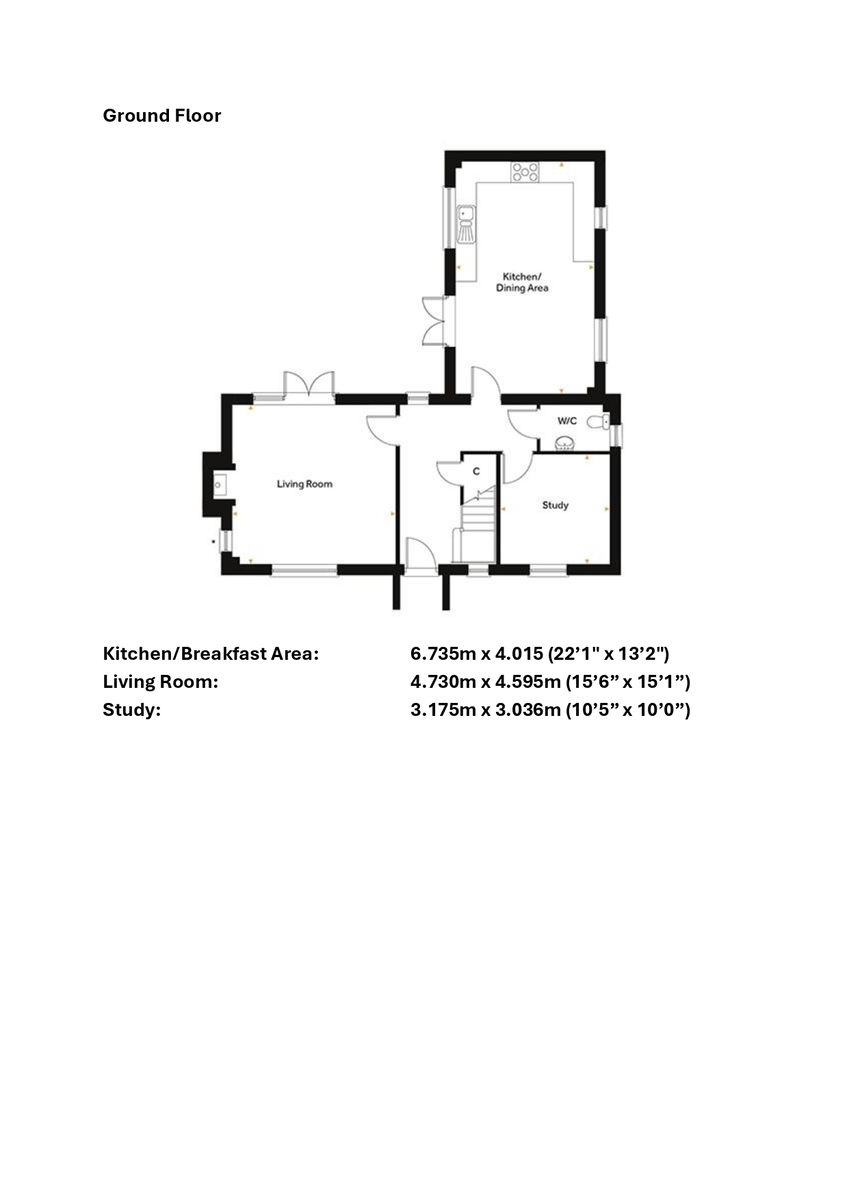
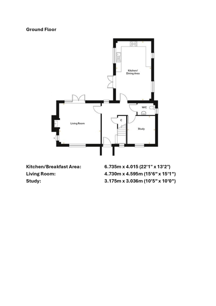
**FIRST RELEASE AT TRINITY RISE - DENBURY HOMES - Plot 13, THE SANDPIPER, is a large L-shaped house with garage and parking located on a corner towards the front of the development. Downstairs is perfectly proportioned offering a large kitchen/dining area with French doors leading onto the south-facing patio and garden. There is also a beautifully designed living room, with inglenook fireplace and wood burner with a further set of French doors into the garden. There is also a wc and large study on this level. Upstairs three of the four bedrooms are doubles, with two en-suite shower rooms to beds 1 and 2. All bedrooms have fitted storage, and there is a further family bathroom.
*KEY WORKER DISCOUNT AVAILABLE - SPEAK TO US FOR MORE INFORMATION - UPGRADED SILESTONE WORKTOPS*
Ormesby St Margaret offers the charm of village life with everyday essentials close by, including local
shops and schools, and the beautiful Norfolk Broads right on your doorstep.
Just a mile from the coast and only 6 miles from Great Yarmouth, it's perfectly placed for sandy
beaches, family days out, and offers the best of both countryside and coastal living.
Discover the Denbury Difference
Our hallmark passion for quality and excellence blends
traditional craftsmanship with timeless luxury, ensuring
that you will be proud of your new home for years to come.
These energy-efficient homes are designed for modern
living, featuring elegant exteriors that blend in with their
surroundings, and contemporary interior design to suit
every lifestyle.
Every home is designed with a clear focus - thoughtful
layouts, stylish finishes, and traditional methods, come
together to create homes that are both beautiful and
practical. From our robust block and brick construction
to our smooth plaster interior walls and traditional
Georgian-style columns found on some of our porches,
meticulous care goes into the design of every home.
Our approach to design and construction is complemented
by our commitment to the care of our customers, which
extends far beyond completion.
The Denbury Difference is found in the details that really
matter, creating more than just houses, but homes to be
enjoyed, cherished, and lived in for years to come. Denbury
Homes was born amidst the stunning East Anglian landscape,
which has inspired artists for generations. We ensure that
everything we build reflects the beauty of this special place
that you'll love to call home.
DISCLAIMER While we endeavour to make our sales particulars fair, accurate and reliable, they are only a general guide to the property and, accordingly, if there is any point which is of particular importance to you, please contact the office and we will be pleased to check the position for you, especially if you are contemplating travelling some distance to view the property.
The approximate room sizes are only intended as general guidance. You must verify the dimensions carefully before ordering carpets or any built-in furniture.
Any references to garden sizes are approximate and subject to confirmation by a measured survey. A prospective purchaser is advised to arrange for their own land survey to be carried out.
Please note we have not tested the services or any of the equipment or appliances in this property, accordingly we strongly advise prospective buyers to commission their own survey or service reports before finalizing their offer to purchase.
THESE PARTICULARS ARE ISSUED IN GOOD FAITH BUT DO NOT CONSTITUTE REPRESENTATIONS OF FACT OR FORM PART OF ANY OFFER OR CONTRACT. THE MATTERS REFERRED TO IN THESE PARTICULARS SHOULD BE INDEPENDENTLY VERIFIED BY PROSPECTIVE BUYERS.
Brochures
Click to download BrochureEnergy Performance Certificate
