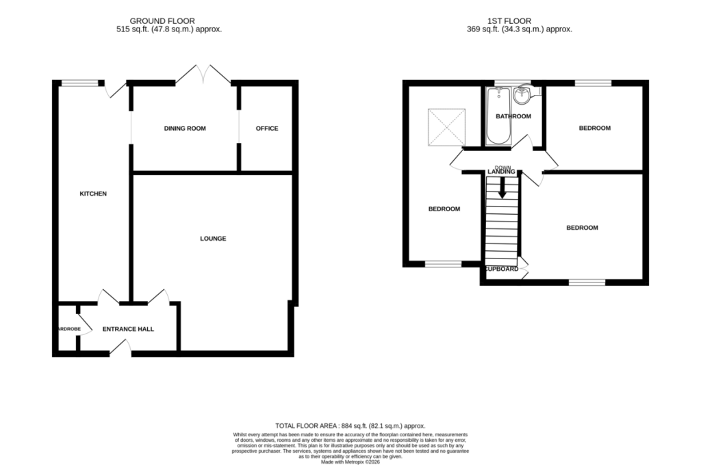
Description
Bycroft Estate Agents are delighted to offer this beautifully presented, extended, three bedroom semi detached house situated in this quiet cul de sac location within the popular village of Belton close to shops and amenities. The accommodation comprises entrance hall, kitchen/breakfast room, office, lounge, landing, three bedrooms, bathroom, front and rear gardens, garage, driveway and solar panels.
SPACIOUS ENTRANCE HALL upvc door; fixed side panel; radiator; cloaks cupboard; door into:
LOUNGE 16' 4" x 14' 9" (4.98m x 4.5m) max including stairs to first floor; cast iron wood burner; window to front aspect; radiator; under stairs storage cupboard; door into:
KITCHEN/BREAKFAST ROOM 19' 8" x 6' 4" (5.99m x 1.93m) large worktop; range of base cupboards and drawers; including integrated dish washer; space and plumbing for washing machine; space for double range oven; space for American style fridge freezer; one bowl sink with mixer tap; range of wall units; light and extractor; window and door to the rear garden; opening to:
DINING ROOM 7' 6" x 8' 0" (2.29m x 2.44m) including cupboard housing the gas Baxi boiler; window to rear aspect; opening to:
HOME OFFICE/PLAYROOM 6' 10" x 7' 8" (2.08m x 2.34m) upvc french doors to the rear garden.
LANDING
BEDROOM 1 11' 2" x 9' 11" (3.4m x 3.02m) plus built in wardrobe; window to front aspect; radiator.
BEDROOM 2 9' 1" x 8' 1" (2.77m x 2.46m) window to rear aspect; radiator.
BEDROOM 3 16' 2" x 7' 1" max (4.93m x 2.16m) window to front aspect; Velux window; radiator.
BATHROOM bath with mixer tap; Mira electric shower fittings; curved shower screen; vanity unit comprising wash hand basin with mixer tap; wc with concealed push button cistern; fully tiled walls; frosted double glazed window; heated towel rail.
OUTSIDE To the front of the property is a low maintenance garden and pathway to front entrance. To the rear of the property is a good sized, enclosed, paved rear garden with a raised side border with shrubs, upvc door providing access into:
GARAGE 18' 0" x 8' 4" (5.49m x 2.54m) up and over door; light and power; driveway and parking to the front of the garage.
COUNCIL TAX This property is currently listed as Band B.
VIEWINGS Strictly by appointment with the selling agents BYCROFT ESTATE AGENTS. Tel. 01493 664000.
DISCLAIMER While we endeavour to make our sales particulars fair, accurate and reliable, they are only a general guide to the property and, accordingly, if there is any point which is of particular importance to you, please contact the office and we will be pleased to check the position for you, especially if you are contemplating travelling some distance to view the property.
The approximate room sizes are only intended as general guidance. You must verify the dimensions carefully before ordering carpets or any built-in furniture.
Any references to garden sizes are approximate and subject to confirmation by a measured survey. A prospective purchaser is advised to arrange for their own land survey to be carried out.
Please note we have not tested the services or any of the equipment or appliances in this property, accordingly we strongly advise prospective buyers to commission their own survey or service reports before finalizing their offer to purchase.
THESE PARTICULARS ARE ISSUED IN GOOD FAITH BUT DO NOT CONSTITUTE REPRESENTATIONS OF FACT OR FORM PART OF ANY OFFER OR CONTRACT. THE MATTERS REFERRED TO IN THESE PARTICULARS SHOULD BE INDEPENDENTLY VERIFIED BY PROSPECTIVE BUYERS.
Brochures
Energy Performance Certificate
