Description
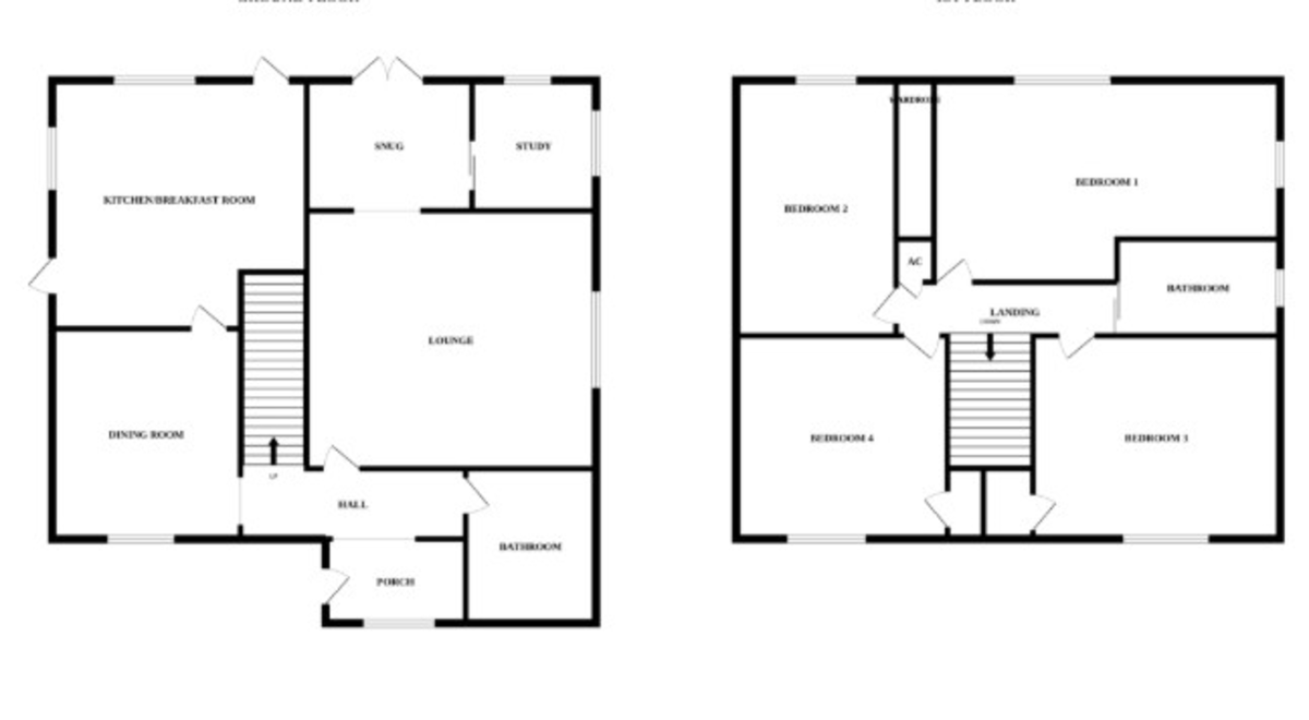
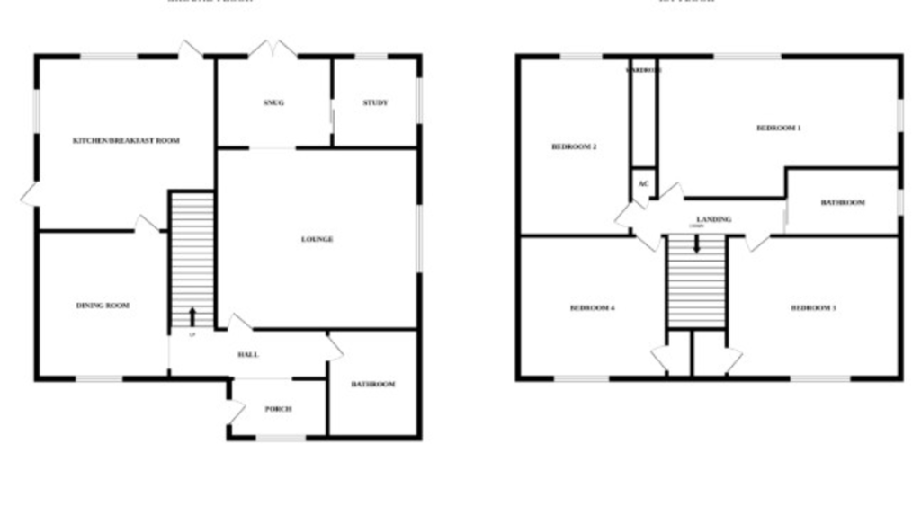
Bycroft Estate Agents are delighted to present this Chain Free, deceptively spacious, four bedroom, detached family residence situated in this popular and sought after cul-de-sac location in the village of Rollesby where there are a selection of shops and amenities including schools for all ages. The accommodation comprises of a spacious entrance hall, lounge, garden room, home office/ playroom, dining room, kitchen breakfast room, ground floor shower room, landing, four double bedrooms and family bathroom. The property benefits from large front and side driveway, garage, utility room, good sized enclosed rear garden, oil fired central heating and double glazed windows.
ENTRANCE UPVC door into spacious entrance hall, window to front aspect, cloaks cupboard, radiator, stairs to first floor, shelved recess.
LOUNGE 18' 7" x 16' 10" (5.66m x 5.13m) side window, two radiators, raised hearth with wood burner, wall lights. Large open archway to;
GARDEN ROOM 12' 1" x 8' 11" (3.68m x 2.72m) French doors with fixed side panels to rear garden. Sliding door to;
HOME OFFICE/ PLAYROOM 8' 10" x 7' 9" (2.69m x 2.36m) windows to rear and side aspect, radiator.
DINING ROOM 11' 8" x 9' 8" (3.56m x 2.95m) bow bay window to front aspect, radiator, under stair storage cupboard. Door into;
KITCHEN/BREAKFAST ROOM 19' 6" x 11' 3" (5.94m x 3.43m) worktops with good range of base, cupboards and drawers under, built-in oven, four ring hob, dishwasher, microwave,1½ bowl sink with mixer tap, central island/breakfast bar with cupboards and drawers under, range of wall units, space and plumbing for washing machine, double width light and extractor, windows to rear and side aspect, side and rear door, tiled floor, downlights, modern upright radiator, storage cupboard.
GROUND FLOOR SHOWER ROOM walk-in shower with electric fittings, wc with concealed push button cistern, vanity unit comprising of hand wash basin with mixer tap and double cupboard under, fully tiled walls and floor, chrome heated towel rail, frosted double glazed window, downlights, extractor fan.
LANDING access to roof space, storage cupboard.
BEDROOM 1 15' 11 max" x 15' 6 incl fitted wardrobeds" (4.85m x 4.72m) wall to wall fitted wardrobes with sliding doors, windows to rear and side aspect, radiator.
BEDROOM 2 10' 8" x 11' 9 plus built in storage" (3.25m x 3.58m) windows to front and side aspect, radiator.
BEDROOM 3 9' 10" x 11' 8 plus shelved recess" (3m x 3.56m) window to front aspect, radiator.
BEDROOM 4 19' 8" x 8' 2 max" (5.99m x 2.49m) window to rear aspect, radiator.
BATHROOM vanity unit comprising of hand wash basin with mixer tap, storage drawers, spa bath with mixer tap, recessed tv, wc with concealed push button cistern, shower cubicle with mains shower fittings and rainfall shower head, fully tiled walls, chrome heated towel rail, frosted double glazed window.
OUTSIDE To the front of the property is a large shingled driveway and parking area with space for several cars standing, plants and ornamental fish pond, pathway to canopied front entrance. To the rear of the property is a good sized, enclosed garden mainly laid to lawn with plants, raised patio area and access into garage.
GARAGE up and over door, light and power.
UTILITY AREA space and plumbing for washing machine, tumble dryer, light and power, UPVC door into garden.
COUNCIL TAX This property is currently listed as Band D.
VIEWINGS Strictly by appointment with the selling agents, BYCROFT ESTATE AGENTS, tel: 01493 664000.
DISCLAIMER While we endeavour to make our sales particulars fair, accurate and reliable, they are only a general guide to the property and, accordingly, if there is any point which is of particular importance to you, please contact the office and we will be pleased to check the position for you, especially if you are contemplating travelling some distance to view the property.
The approximate room sizes are only intended as general guidance. You must verify the dimensions carefully before ordering carpets or any built-in furniture.
Any references to garden sizes are approximate and subject to confirmation by a measured survey. A prospective purchaser is advised to arrange for their own land survey to be carried out.
Please note we have not tested the services or any of the equipment or appliances in this property, accordingly we strongly advise prospective buyers to commission their own survey or service reports before finalising their offer to purchase.
THESE PARTICULARS ARE ISSUED IN GOOD FAITH BUT DO NOT CONSTITUTE REPRESENTATIONS OF FACT OR FORM PART OF ANY OFFER OR CONTRACT. THE MATTERS REFERRED TO IN THESE PARTICULARS SHOULD BE INDEPENDENTLY VERIFIED BY PROSPECTIVE BUYERS.
Brochures
Energy Performance Certificate
