Description
Bycroft Estate Agents are delighted to present this charming and well presented modern end terrace home, situated in a popular residential area of Caister-on-Sea. Offering 3 bedroom accommodation with first floor bathroom and landing, welcoming entrance hallway, spacious sitting room, dining room and modern fitted kitchen. The property benefits from UPVC double glazing, gas fired central heating, with gardens to the front and rear. The front laid mainly to lawn with a paved pathway and a storm porch on approach to the front door. Driveway and single garage. To the rear enclosed garden laid mainly with artificial turf, paved and shingle providing the perfect space for relaxing or entertaining. Internal inspection is highly recommended to fully appreciate the style and quality of accommodation on offer.
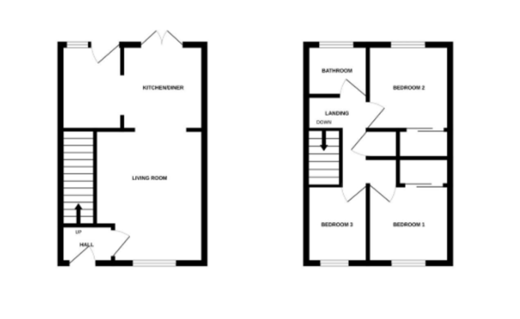
ENTRANCE HALL 7' 0" x 4' 6" (2.13m x 1.37m) UPVC double glazed window to side, UPVC door to front and stairs to first floor landing.
SITTING ROOM 13' 3" x 12' 3" (4.04m x 3.73m) UPVC double glazed window to front and understairs storage cupboard.
DINING ROOM 11' 0" x 7' 9" (3.35m x 2.36m) UPVC double glazed French Doors to rear. Opens to:
KITCHEN 11' 1" x 7' 9" (3.38m x 2.36m) Fitted with a range of wall and base units with square edge work surfaces over, inset four ring electric hob, stainless steel splash back and cooker hood over, built in electric oven, inset single drain sink with mixer tap over, integrated washing machine, integrated dishwasher, built in microwave, UPVC double glazed window to rear, UPVC double glazed door to rear, peninsular breakfast bar with USB power points and an integrated fridge, integrated freezer.
FIRST FLOOR LANDING 8' 2" x 6' 5" (2.49m x 1.96m) UPVC double glazed window to side, loft access and built in storage cupboard.
BEDROOM 1 12' 11" x 9' 0" (3.94m x 2.74m) UPVC double glazed window to front and built in wardrobe.
BEDROOM 2 9' 3" x 9' 2" (2.82m x 2.79m) UPVC double glazed window to rear and built in wardrobe.
BEDROOM 3 10' 0" x 6' 7" (3.05m x 2.01m) UPVC double glazed window to front.
BATHROOM 6' 3" x 6' 2" (1.91m x 1.88m) Fitted white suite, comprising of low wc, antique hand basin with a water full mixer tap over, storage cupboards below, pea shaped panel bath with shower screen, water full mixer tap, electric shower unit over, with aqua board wall coverings and UPVC window to rear.
OUTSIDE Front garden area, mainly laid lawn, paved pathway and storm porch covered approach to front door. Driveway parking area provides off road parking for the property and gives access to the single garage. The rear of the property is an enclosed garden laid mainly to artificial turf, paved and shingle for low maintenance with a large patio area to providing the ideal area for relaxing and entertaining. Rear access gate, brick built Barbeque and bin store area and storage area to personal door:
GARAGE Sub-divided into 2 rooms. First measuring 10'10 x 8'.8 to maximum measurement, utilised as a gym/studio and store room with up and over metal door fitted work surfaces with space for fridge and tumble dryer. All with power and light.
COUNCIL TAX This property is currently listed as Band B
VIEWINGS Strictly by appointment with the selling agents, BYCROFT ESTATE AGENTS, tel: 01493 844484.
DISCLAIMER While we endeavour to make our sales particulars fair, accurate and reliable, they are only a general guide to the property and, accordingly, if there is any point which is of particular importance to you, please contact the office and we will be pleased to check the position for you, especially if you are contemplating travelling some distance to view the property.
The approximate room sizes are only intended as general guidance. You must verify the dimensions carefully before ordering carpets or any built-in furniture.
Any references to garden sizes are approximate and subject to confirmation by a measured survey. A prospective purchaser is advised to arrange for their own land survey to be carried out.
Please note we have not tested the services or any of the equipment or appliances in this property, accordingly we strongly advise prospective buyers to commission their own survey or service reports before finalising their offer to purchase.
THESE PARTICULARS ARE ISSUED IN GOOD FAITH BUT DO NOT CONSTITUTE REPRESENTATIONS OF FACT OR FORM PART OF ANY OFFER OR CONTRACT. THE MATTERS REFERRED TO IN THESE PARTICULARS SHOULD BE INDEPENDENTLY VERIFIED BY PROSPECTIVE BUYERS.
Brochures
Energy Performance Certificate
