Description
Bycroft Signature Homes presents - A truly exceptional family home in grounds of approximately 6 acres with an impressive range of outbuildings and leisure facilities including swimming pool, tennis court and ornamental lake with stabling, paddocks and menage. Importantly the property is set up for the best possible equestrian use. This property really does have it all! Located close to the Norfolk Coast, and the Broads National Park with excellent access to Norwich, Ipswich and also London via the A47.
VALLEY FARM HOUSE Traditional values with modern updates, bright interiors with flexible and functional space.
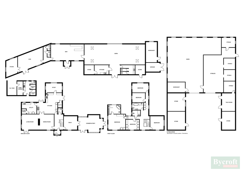
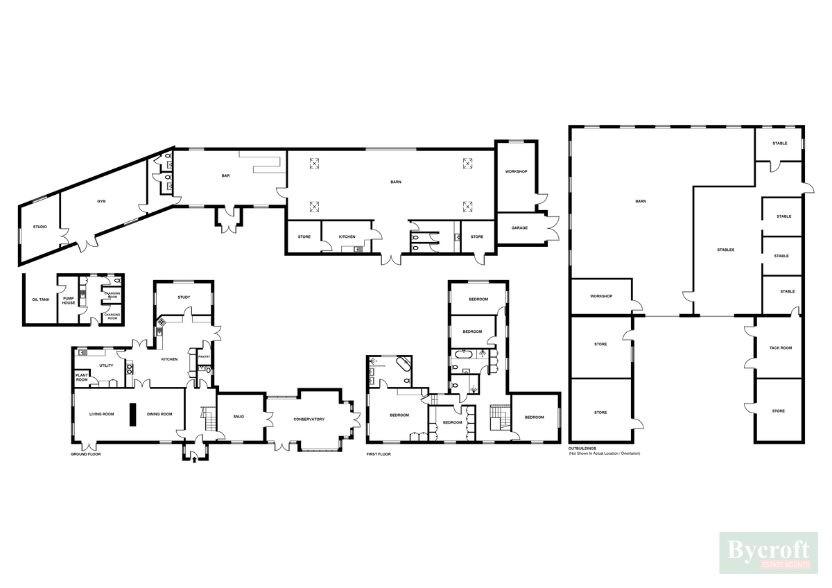
ENTRANCE HALL 3' 10" x 4' 2" (1.19m x 1.29m) leading to:
INNER HALLWAY 14' 7" x 9' 9" (4.45m x 2.98m) light airy and welcoming with neutral design and stairs leading to the first floor.
CLOAKROOM wc.
SITTING ROOM 14' 8" x 14' 4" (4.49m x 4.38m) with oak flooring and patio doors to stunning conservatory.
CONSERVATORY A fabulous connection to the south east gardens with entertaining area including the heated swimming pool, sunbathing terrace and tennis court.
DINING ROOM 17' 8" x 14' 7" (5.41m x 4.46m) a great space for formal dining with glazed doors to kitchen/breakfast room and linked through to:
LOUNGE 18' 8" x 16' 8" (5.69m x 5.09m) double aspect with south and west views. Patio doors to front garden.
KITCHEN/BREAKFAST ROOM 21' 11" x 11' 1" (6.69m x 3.39m) plus 5.19 x 3.47m fully fitted quality kitchen with Ivory panelled fronts and granite worktops over, inset built-in appliances, including oven, hob, wine cooler, Aga. Walk-in pantry. Patio doors to rear decking area; further doors to:
STUDY 17' 0" x 10' 0" (5.19m x 3.07m) views to the rear aspects.
UTILITY ROOM 18' 3" x 9' 3" (5.57m x 2.83m) functional good sized room with laminated floor with range of built-in cupboards and drawers; Butler sink unit; washing machine point and boiler room with Grant oil fired central heating boiler. Patio doors to rear patio area which catches the late afternoon sun.
FIRST FLOOR
LANDING range of useful fitted store cupboards.
BEDROOM 1 - PRINCIPAL 18' 4" x 16' 3" (5.61m x 4.96m) double aspect views over gardens; extensive range of quality fitted built-in wardrobes and furniture.
EN SUITE 12' 11" x 9' 8" (3.94m x 2.96m) high specification with freestanding corner bath; walk-in shower unit; his and hers twin sink units, feature lighting and tiles.
BEDROOM 2 14' 11" x 14' 6" (4.57m x 4.43m) front aspect, panelling.
BEDROOM 3 13' 8" x 11' 0" (4.19m x 3.37m) front aspect; built-in wardrobes.
BEDROOM 4 13' 10" x 10' 4" (4.22m x 3.17m) side aspect.
BEDROOM 5 16' 11" x 9' 11" (5.18m x 3.03m) good size room with triple rear aspect.
BATHROOM 11' 10" x 7' 10" (3.63m x 2.41m) quality finishes including walk-in shower unit; bath; wc; spotlighting.
SHOWER ROOM 8' 8" x 3' 10" (2.65m x 1.18m) recently fitted providing shower and low level wc.
EXTERNAL GROUNDS AND FACILITIES
Valley Farm stands well back from the road and is approached via a long private driveway with three sets of security gates. The driveway then sweeps round past the ornamental lake, a beautiful habitat for wildlife on the left hand side, and lawned gardens to the right which are currently used as a pitch and putt golf practice area. Parking is provided to the front of the property which then leads on to the fabulous south/west garden area where there is a heated outside swimming pool with surrounding patio area and sun bathing terrace, outside bar and kitchen. Changing rooms and storage compliment the swimming pool area. A walkway leads to the recently resurfaced tennis court which has been marked for pickleball and is fully fenced on all sides with conifer hedging to provide a windbreak.
The driveway also leads to the rear of the property providing extensive car parking and a car port leading to a new raised decking area to the rear of the house. There are an impressive range of outbuildings at this point. Barn 1 extends to approximately 3500 sq ft and provides a large function room predominately used for fabulous entertaining events with separate toilets and kitchenette. Separate bar area with pool table and darts. Further toilets, garage and workshop.
Barn 2 is linked and provides further toilets, a gym and recording studio.
AGENTS NOTE - BARN PLANNING Planning consent has been applied to convert this barn complex to two significant residential dwellings.
STABLES AND WORKSHOP BLOCK This extends to approximately 5000 sq ft and provides four quality stables together with tack room, hay store and further stores. A large workshop and garage.
AGENTS NOTE - EQUESTRIAN The equestrian facilities are at a premium and well thought out. With extensive inside and outside stabling, a functional outside menage which leads to paddocks to the east.
AGENTS NOTE - LOT 2 - LAND Lot 2 is approximately 30 acres of agricultural land which is used in conjunction with the equestrian use of the property for additional paddocks and the growing of hay. This area incorporates a track system around the paddocks for automatic horse exercising. This is available on a separate title at a Guide Price of £300,000.
VIEWING Strictly by appointment with the sole selling agents BYCROFT ESTATE AGENTS. Tel. 01493 664000.
COUNCIL TAX The property is currently listed as a Band G.
DISCLAIMER While we endeavour to make our sales particulars fair, accurate and reliable, they are only a general guide to the property and, accordingly, if there is any point which is of particular importance to you, please contact the office and we will be pleased to check the position for you, especially if you are contemplating travelling some distance to view the property.
The approximate room sizes are only intended as general guidance. You must verify the dimensions carefully before ordering carpets or any built-in furniture.
Any references to garden sizes are approximate and subject to confirmation by a measured survey. A prospective purchaser is advised to arrange for their own land survey to be carried out.
Please note we have not tested the services or any of the equipment or appliances in this property, accordingly we strongly advise prospective buyers to commission their own survey or service reports before finalizing their offer to purchase.
THESE PARTICULARS ARE ISSUED IN GOOD FAITH BUT DO NOT CONSTITUTE REPRESENTATIONS OF FACT OR FORM PART OF ANY OFFER OR CONTRACT. THE MATTERS REFERRED TO IN THESE PARTICULARS SHOULD BE INDEPENDENTLY VERIFIED BY PROSPECTIVE BUYERS.
Brochures
Energy Performance Certificate
