Description
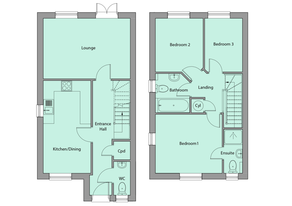
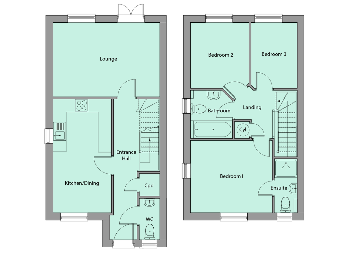
**PLOT 11 'Douglas' 925 SQ FT** Bycroft Residential are delighted to offer this spacious BRAND NEW SEMI-DETACHED THREE BEDROOM house built by the reputable OLDMAN HOMES. The property boasts a modern OPEN PLAN KITCHEN/DINING ROOM and a good size lounge, ground floor wc, Three first floor bedrooms with EN-SUITE to main bedroom and family bathroom. The property also benefits from driveway providing parking for two cars. Choice of kitchen available from HOWDENS. Anthracite UPVC windows. Gas central heating, A Rated "Ideal" Boiler. Solar Panels and car charging point.
