Description
A stylish development of modern high quality properties finished to an exceptional high standard built by local builders.This 4 bedroom detached property is situated within the popular village location of Burgh Castle. Offered with a choice of kitchens (via Mulberry Kitchens), including integrated fan assisted electric oven, integrated fridge/freezer. Benefitting from Air Source Heat Pump (under floor heating to ground floor), Gardens are turfed to front and seeded to rear.
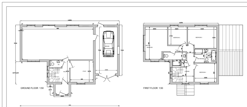
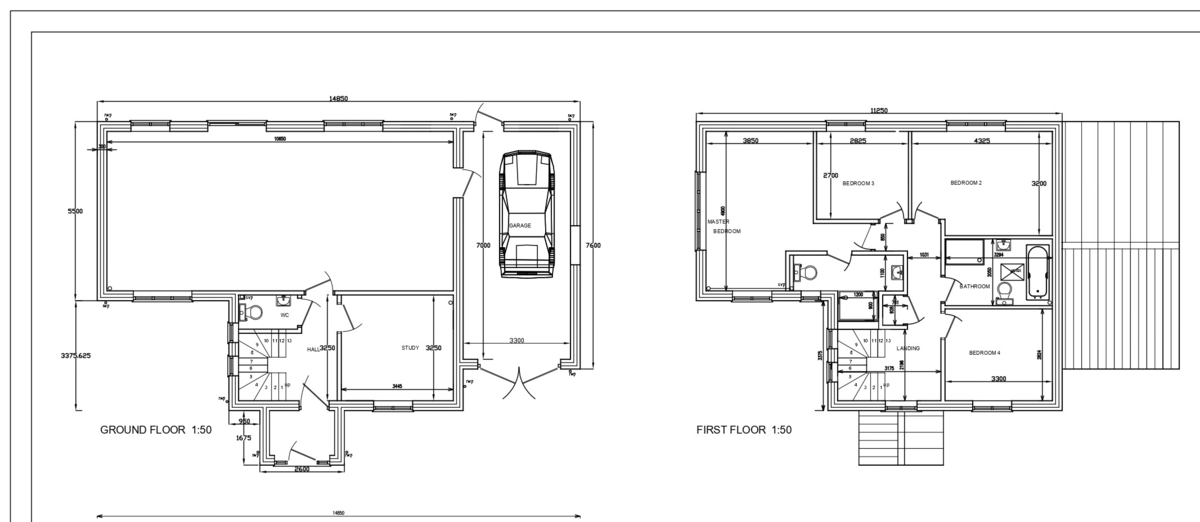
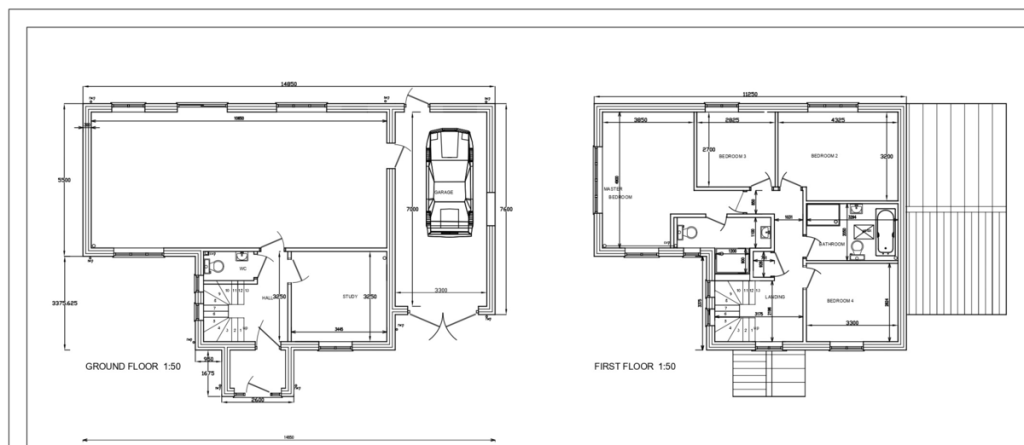
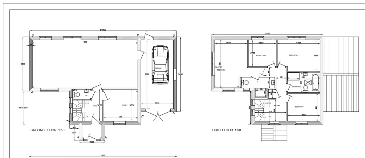
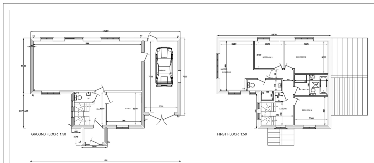
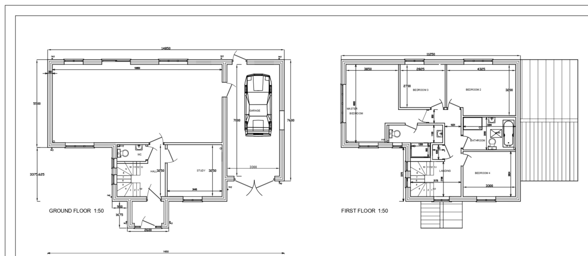
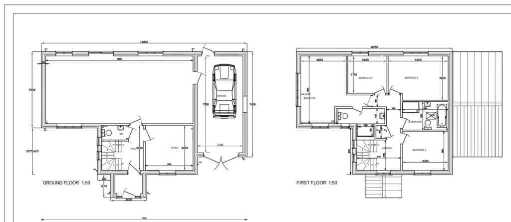
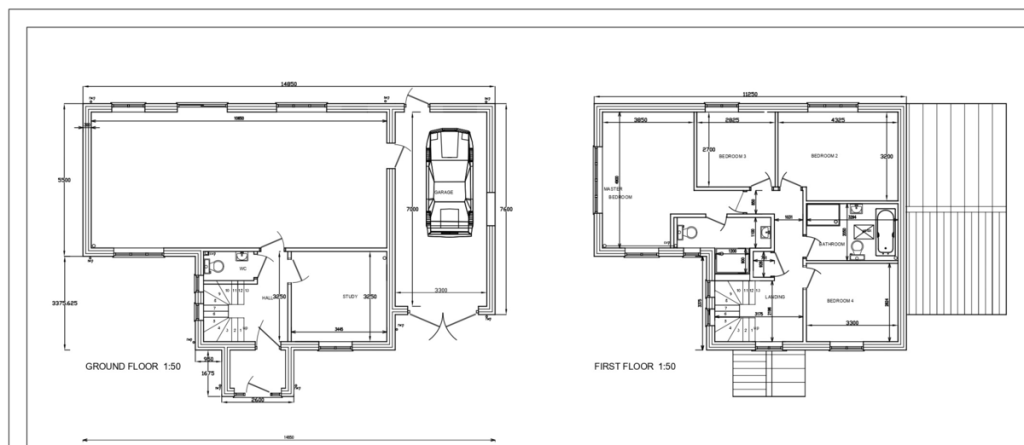
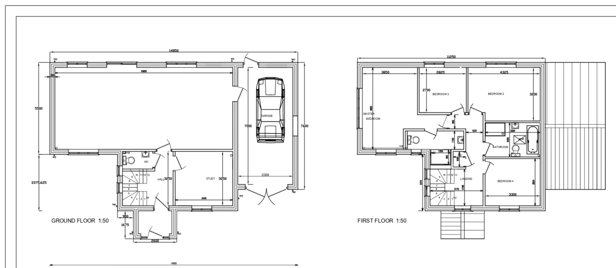
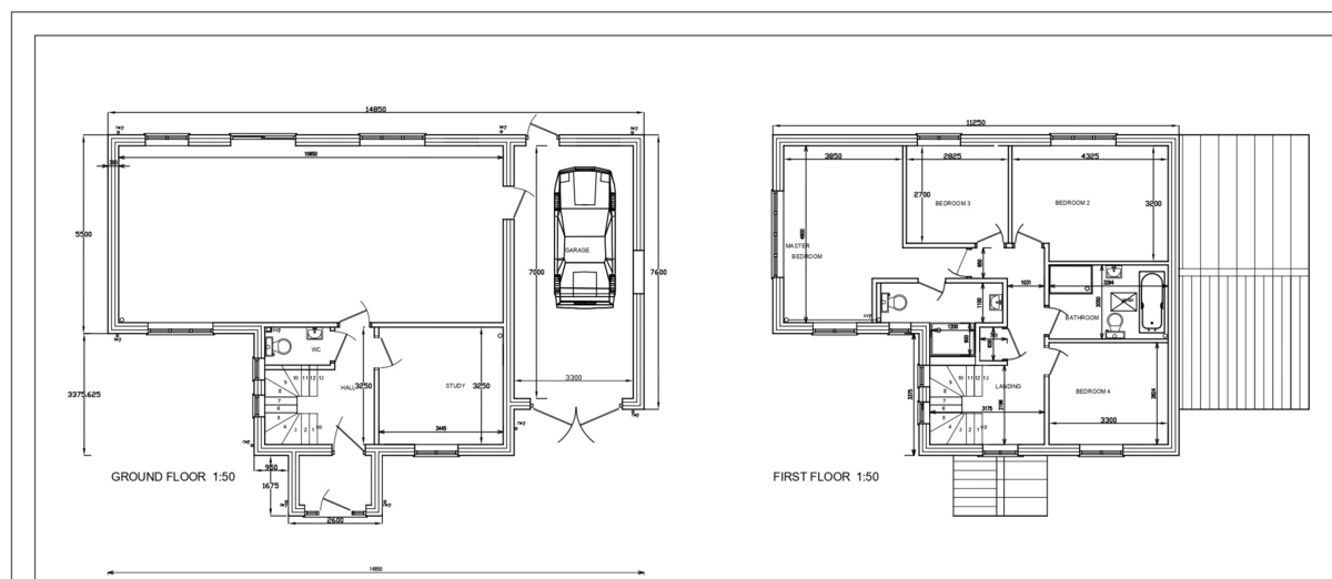
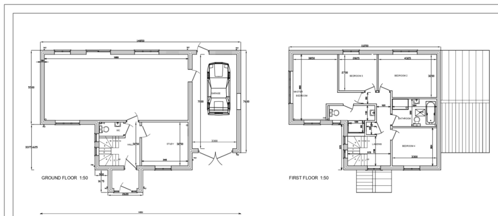
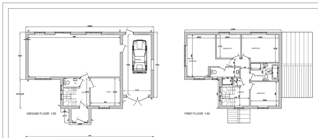
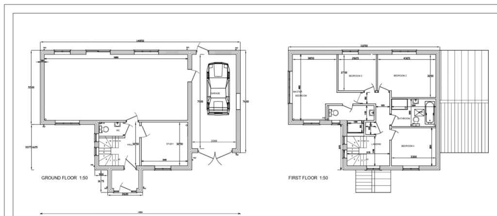
OPEN LIVING SPACE 29' 8" x 18' (9.04m x 5.49m)
CLOAKROOM 6' 6" x 3' 6" (1.98m x 1.07m)
STUDY 9' x 6' 4" (2.74m x 1.93m)
FIRST FLOOR LANDING 9' 2" x 6' 6" (2.79m x 1.98m)
PRINCIPAL BEDROOM 18' x 11' 1" (5.49m x 3.38m)
EN SUITE 8' 2" x 3' 7" (2.49m x 1.09m)
BEDROOM 2 12' 4" x 10' 5" (3.76m x 3.18m)
BEDROOM 3 9' 3" x 8' 10" (2.82m x 2.69m)
BEDROOM 4 8' 6" x 9' (2.59m x 2.74m)
BATHROOM 9' x 6' 2" (2.74m x 1.88m)
GARAGE 24' 11" x 11' 9" (7.59m x 3.58m)
AGENTS NOTE *Stamp Duty incentive does not include the additional 3% stamp duty on second homes
AGENTS NOTE Photographs are for indicative purposes only.
COUNCIL TAX To be confirmed
VIEWING Strictly by appointment with the selling agents BYCROFT ESTATE AGENTS. Tel. 01493 664000.
DISCLAIMER While we endeavour to make our sales particulars fair, accurate and reliable, they are only a general guide to the property and, accordingly, if there is any point which is of particular importance to you, please contact the office and we will be pleased to check the position for you, especially if you are contemplating travelling some distance to view the property.
The approximate room sizes are only intended as general guidance. You must verify the dimensions carefully before ordering carpets or any built-in furniture.
Any references to garden sizes are approximate and subject to confirmation by a measured survey. A prospective purchaser is advised to arrange for their own land survey to be carried out.
Please note we have not tested the services or any of the equipment or appliances in this property, accordingly we strongly advise prospective buyers to commission their own survey or service reports before finalizing their offer to purchase.
THESE PARTICULARS ARE ISSUED IN GOOD FAITH BUT DO NOT CONSTITUTE REPRESENTATIONS OF FACT OR FORM PART OF ANY OFFER OR CONTRACT. THE MATTERS REFERRED TO IN THESE PARTICULARS SHOULD BE INDEPENDENTLY VERIFIED BY PROSPECTIVE BUYERS.
