Description
GUIDE PRICE £625,000-£650,000 Bycroft Estate Agents are delighted to present this charming detached residence situated in a non-estate location within the popular coastal village of Hemsby. Having undergone a substantial programme of improvement by the current owners, the property offers free flowing accommodation consisting of entrance hall, study, dining room, sitting room, open plan kitchen / living space, utility room and cloakroom, first floor landing, four double bedrooms with en suite to principal and family bathroom. The property occupies a generous plot with a well proportioned driveway area providing ample off road parking to the front and the rear offering a generously sized garden in excess of half an acre (STMS) laid mainly to lawn with paved patio area, further secure driveway and large timber outbuilding. The property benefits from oil fired central heating and UPVC double glazing with many stylish features including feature fireplaces and ceiling mouldings. An internal inspection is highly recommended to fully appreciate the style and quality of accommodation on offer.
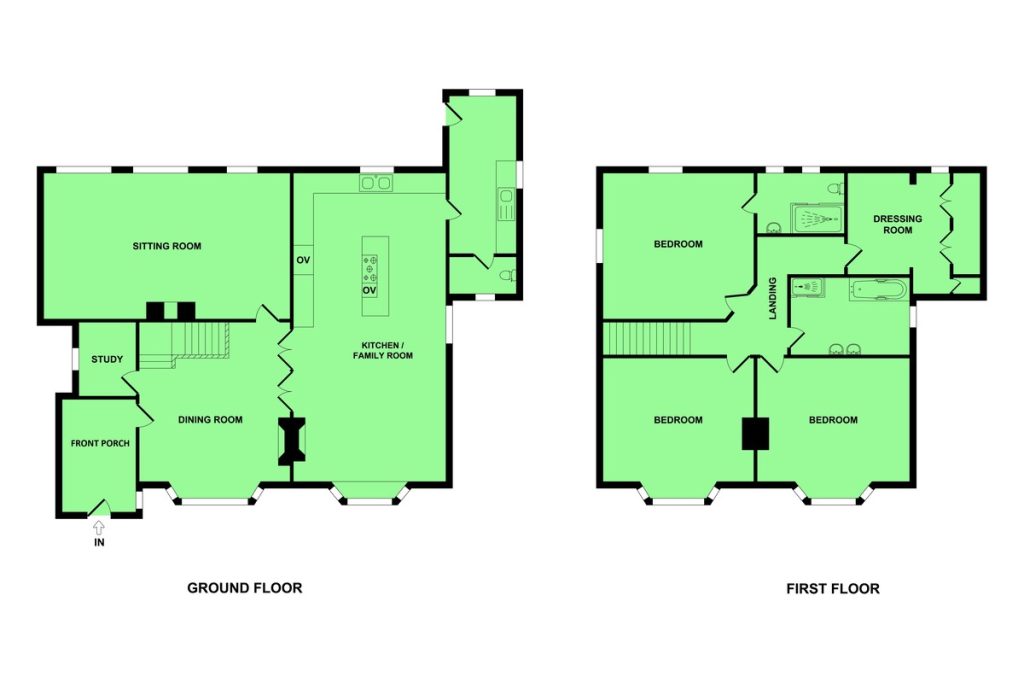
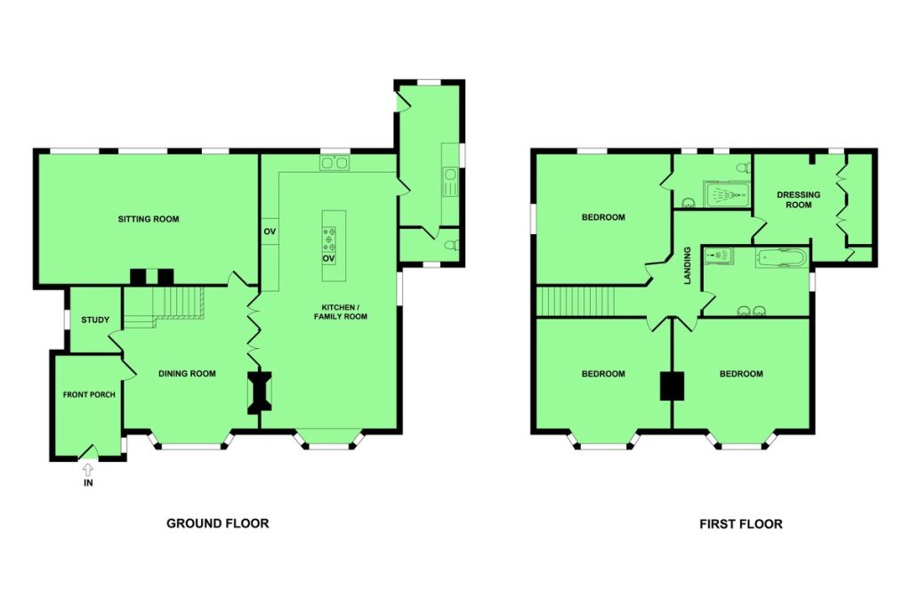
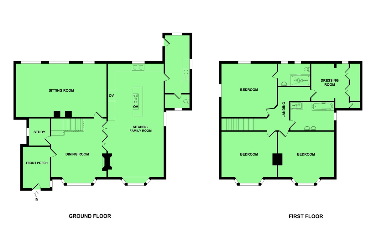
ENTRANCE HALL 10' 6" x 4' 8" max (3.2m x 1.42m) double glazed composite door to front; UPVC double glazed windows to both side aspects; tiled flooring.
DINING ROOM 17' 3" max into bay x 14' 9" max minus stairwell (5.26m x 4.5m) UPVC double glazed bay window to front; feature fireplace with decorative brick surround and pamment tiled hearth; stairs to first floor landing; understairs storage cupboard; bifolding glazed door to Kitchen / Living Space.
STUDY 7' 11" x 4' 11" (2.41m x 1.5m) UPVC double glazed window to side.
SITTING ROOM 24' 1" x 14' 3" max (7.34m x 4.34m) feature fireplace with decorative timber beam and tiled hearth; three sets of UPVC double glazed windows to rear.
OPEN PLAN KITCHEN / LIVING SPACE 31' 11" x 14' 9" max (9.73m x 4.5m) spacious seating area with UPVC double glazed bay window to front; modern style kitchen area fitted with a range of wall and base units with square edge quartz worksurfaces over, quartz upstand and glass splashback; inset double bowl single drainer sink with mixer tap; integrated dishwasher and fridge; two built in NEFF slide and hide electric ovens; central island unit with inset five ring induction hob with extractor unit over; built in microwave and warming drawer; breakfast bar area; floor level lighting; UPVC double glazed windows to rear and side aspects.
UTILITY ROOM 15' 7" x 5' 5" max (4.75m x 1.65m) fitted with a range of wall and base units with square edge worksurfaces over; plumbing for automatic washing machine; space for tumble dryer; integrated freezer; stainless steel single bowl sink with mixer tap; tiled splashbacks; UPVC double glazed windows to rear and side aspects; double glazed composite door to side.
CLOAKROOM 6' 5" x 3' 0" (1.96m x 0.91m) low level wc; UPVC double glazed window to front.
FIRST FLOOR LANDING 11' 4" max x 18' 3" max minus stairwell (3.45m x 5.56m) UPVC double glazed window to side; loft access.
BEDROOM 1 14' 5" max x 14' 11" max (4.39m x 4.55m) UPVC double glazed windows to side and rear aspects.
EN SUITE 8' 2" x 5' 11" (2.49m x 1.8m) fitted with a white suite comprising of a vanity wash hand basin with mixer tap and storage drawers; low level wc; walk in shower cubicle with wall mounted shower unit with soaker and hand attachments, sliding door and aquaboard wall coverings; fully tiled walls; wall mounted cabinet; heated towel rail radiator; two UPVC double glazed windows to rear.
BEDROOM 2 14' 3" x 14' 9" max into bay (4.34m x 4.5m) UPVC double glazed bay window to front.
BEDROOM 3 14' 3" max into bay x 14' 9" (4.34m x 4.5m) UPVC double glazed bay window to front; UPVC double glazed window to side.
BEDROOM 4 11' 11" max x 12' 9" max (3.63m x 3.89m) two UPVC double glazed windows to rear.
FAMILY BATHROOM 11' 4" x 7' 10" (3.45m x 2.39m) fitted with a white suite comprising of a low level wc; twin vanity wash hand basins with mixer taps and storage drawers; double ended panelled bath with mixer tap and shower attachment over; walk in shower cubicle with wall mounted shower unit with hand and soaker attachments, sliding door and tiled wall coverings; wall mounted floating unit; vertical style radiator; built in shaving; UPVC double glazed window to side.
OUTSIDE To the outside front of the property is a generously proportioned garden area laid mainly to shingle to provide ample off road parking with low maintenance barked borders with established hedging and central island with mature trees. A five bar gates leads to the rear garden. To the outside rear is a further shingled driveway area providing additional parking with timber shed, outside oil fired central heating boiler and outside tap. The rear garden is laid mainly to lawn with established trees, hedging and low maintenance slated shrub borders with a generous paved patio area providing the ideal space for relaxing or entertaining, outside power points and lighting, log store and compositing area. A further five bar gate gives access to the rear garden with driveway leading to a garage of brick and timber construction measuring 27' 1" (max) x 25' 1" (max) with double glazed timber doors to front, power and light.
AGENT'S NOTE - We wish to make any potential purchasers aware that the garage roof material may contain asbestos and potential purchasers should investigate the cost of removing and disposal of this material.
VIEWINGS Strictly by appointment with the selling agents, BYCROFT ESTATE AGENTS, tel: 01493 844484.
COUNCIL TAX This property is currently listed as Band D.
DISCLAIMER While we endeavour to make our sales particulars fair, accurate and reliable, they are only a general guide to the property and, accordingly, if there is any point which is of particular importance to you, please contact the office and we will be pleased to check the position for you, especially if you are contemplating travelling some distance to view the property.
The approximate room sizes are only intended as general guidance. You must verify the dimensions carefully before ordering carpets or any built-in furniture.
Any references to garden sizes are approximate and subject to confirmation by a measured survey. A prospective purchaser is advised to arrange for their own land survey to be carried out.
Please note we have not tested the services or any of the equipment or appliances in this property, accordingly we strongly advise prospective buyers to commission their own survey or service reports before finalizing their offer to purchase.
THESE PARTICULARS ARE ISSUED IN GOOD FAITH BUT DO NOT CONSTITUTE REPRESENTATIONS OF FACT OR FORM PART OF ANY OFFER OR CONTRACT. THE MATTERS REFERRED TO IN THESE PARTICULARS SHOULD BE INDEPENDENTLY VERIFIED BY PROSPECTIVE BUYERS.
Brochures
Energy Performance Certificate
