Description
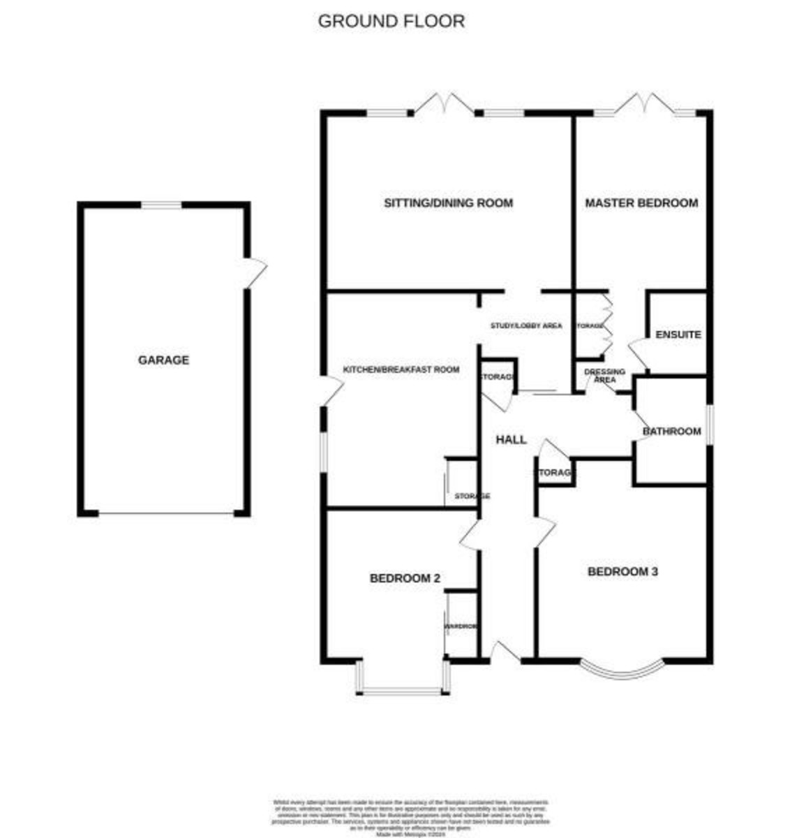
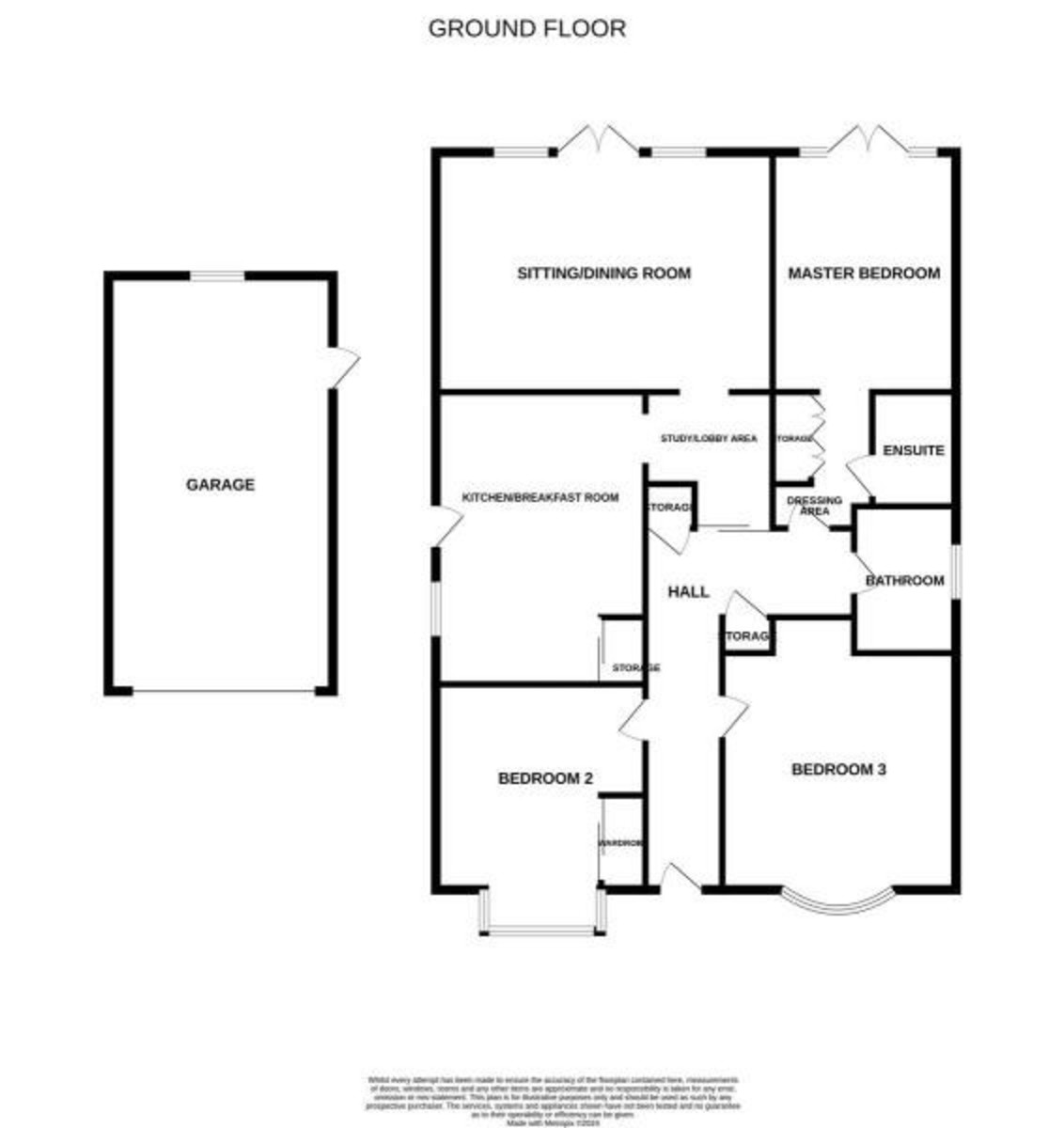
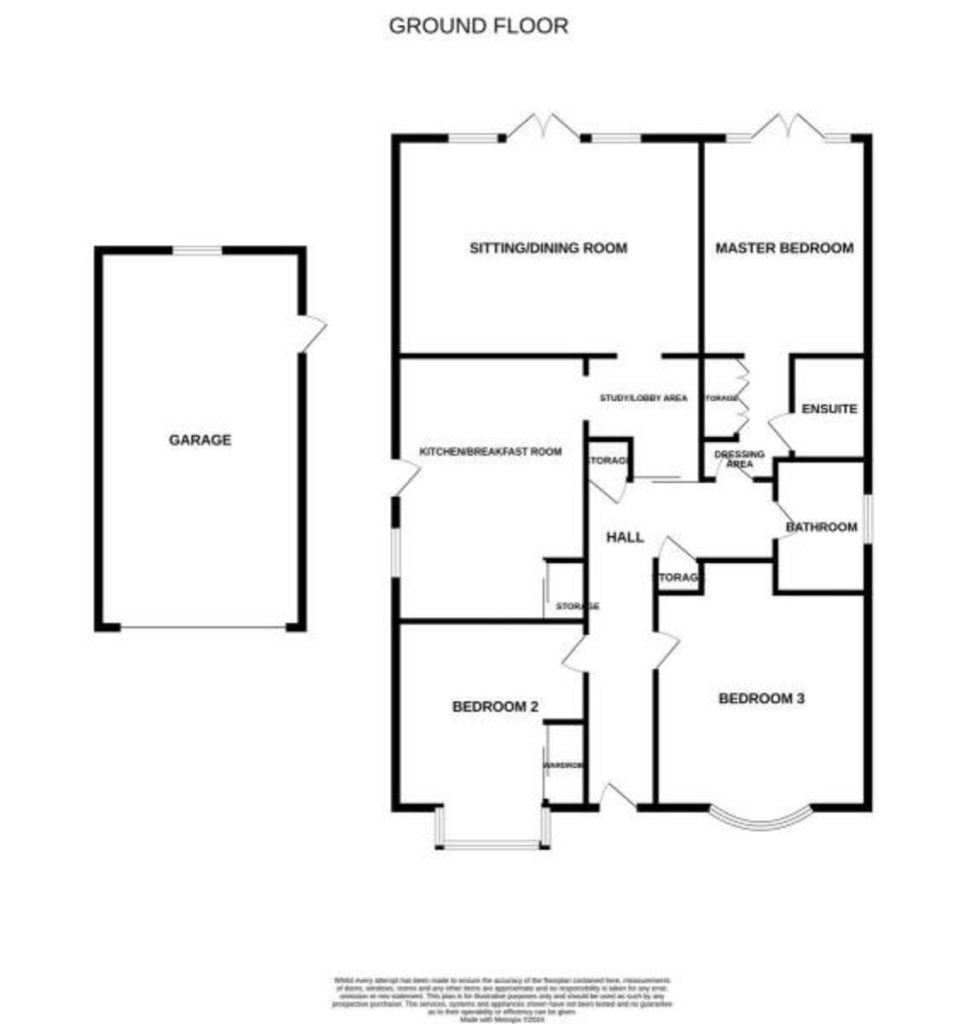
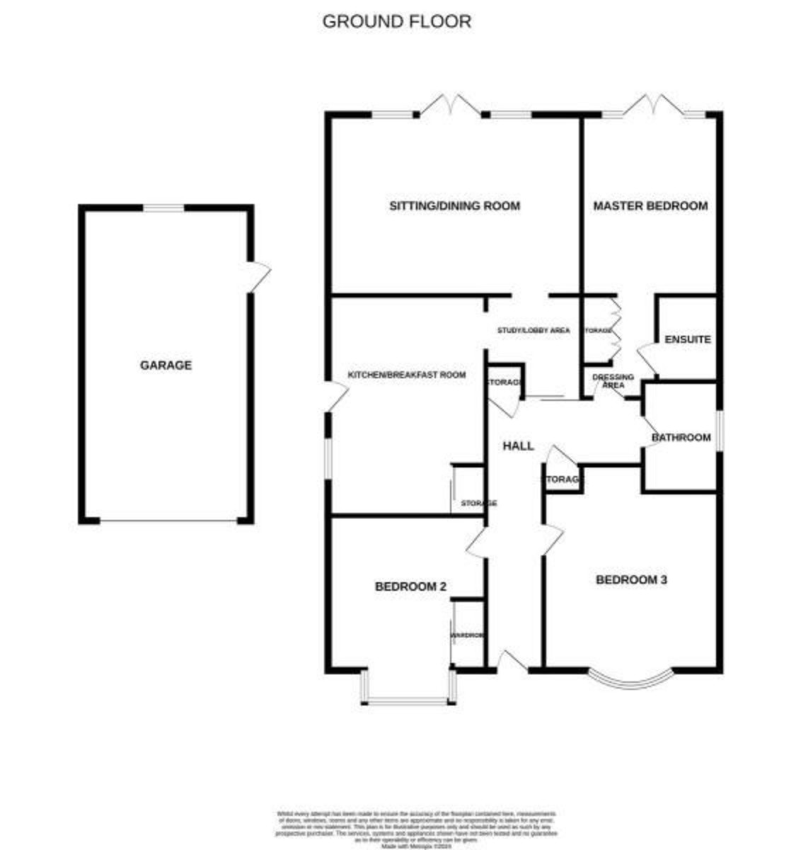
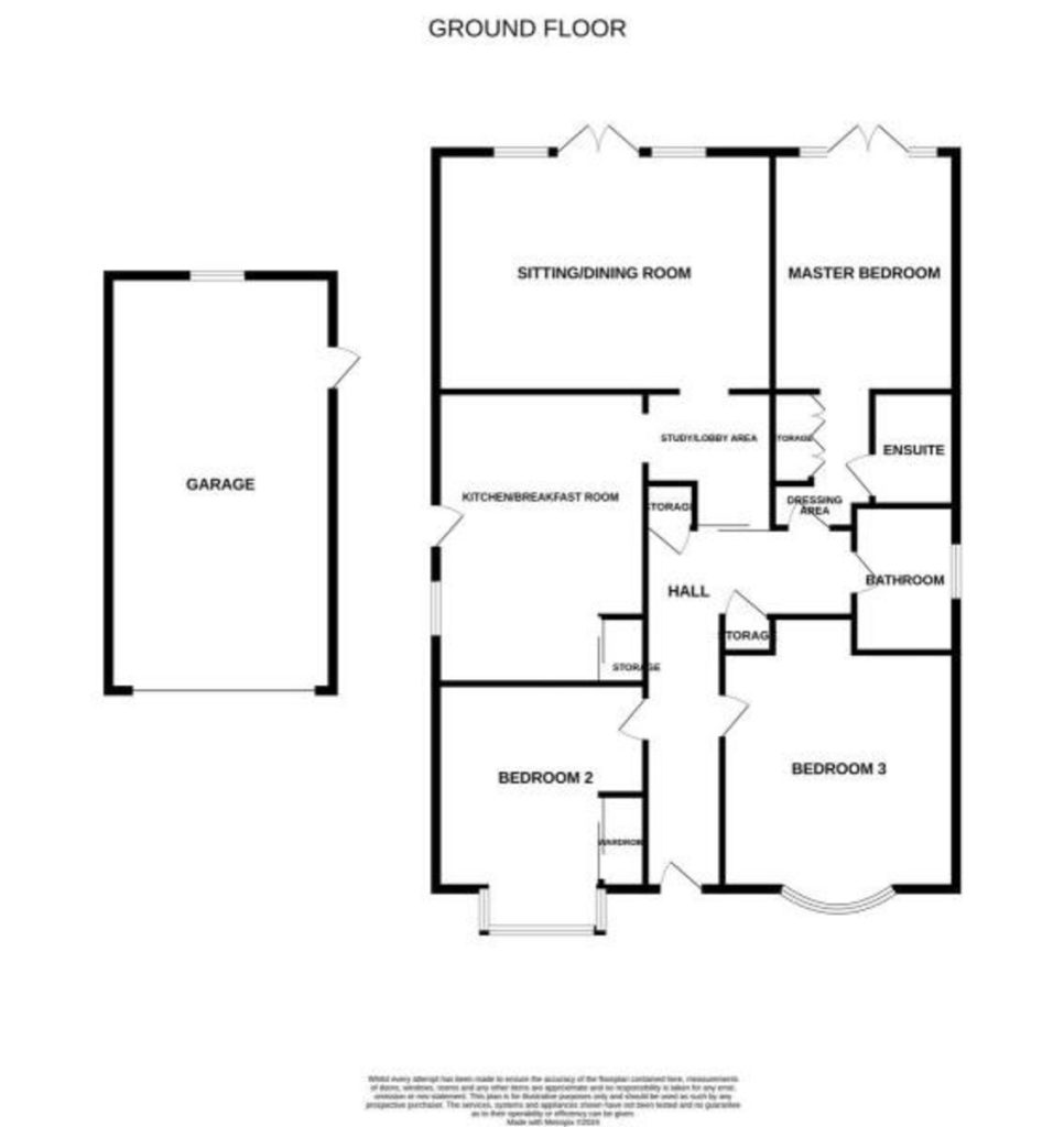
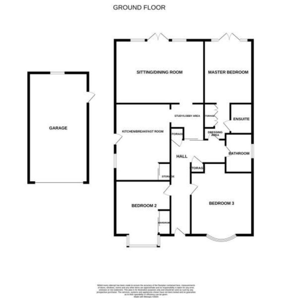
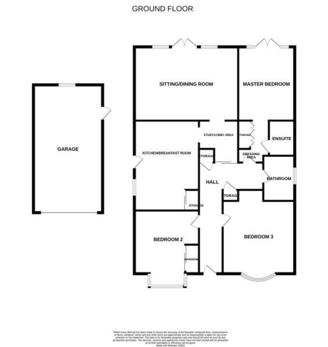
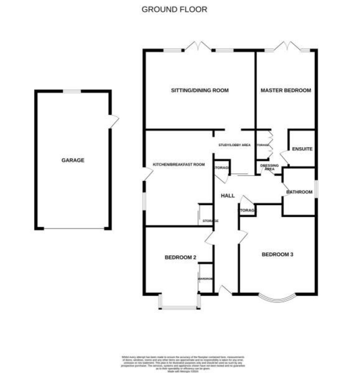
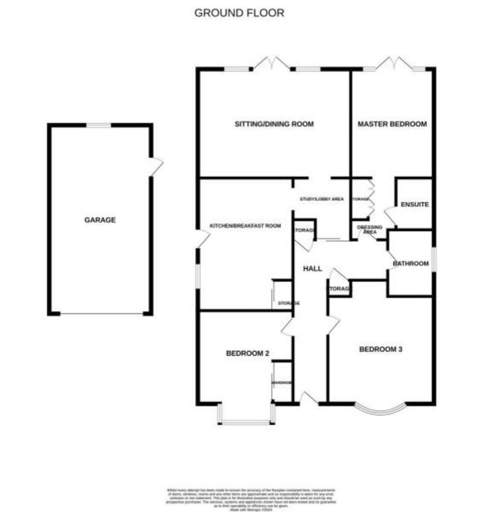
Bycroft Estate Agents are delighted to present this substantially extended, very well maintained detached bungalow, situated in this sought after cul-de-sac location in the popular village of Bradwell close to shops and amenities including doctors surgery, Morrisons supermarket and bus services. Accommodation comprises spacious entrance hall, study area, lounge/diner, kitchen/breakfast room, principal bedroom with dressing area and en suite, two further bedrooms, bathroom, spacious driveway with garage, low maintenance rear garden, gas central heating with underfloor heating as described and double glazing.
SPACIOUS ENTRANCE HALL UPVC entrance door; radiator; shelved storage cupboard; cloaks cupboard; access to roof space.
STUDY AREA 11' 9" x 7' 8" (3.58m x 2.34m) large opening through to Lounge / Diner; opening through to Kitchen / Breakfast Room.
LOUNGE / DINER 17' 10" x 14' 8" (5.44m x 4.47m) fireplace with electric fire; French doors with fixed side panels to rear garden; underfloor heating.
KITCHEN / BREAKFAST ROOM 17' 0" x 11' 1" max (5.18m x 3.38m) worktops with a range of base cupboards and drawers; space and plumbing for washing machine and slimline dishwasher; space for fridge and oven; central island with drawers under; one and a half bowl sink with mixer tap; range of wall units; side window and door; two radiators; utility/storage cupboard with space for freezer; tumble dryer, shelving and light.
BEDROOM 1 - DRESSING AREA 9' 10" x 5' 10" plus door recess (3m x 1.78m) including two double wardrobes; plus single wardrobe with drawers under; heated towel rail; large opening through to Bedroom 1; door to En Suite.
BEDROOM 1 14' 8" x 9' 9" (4.47m x 2.97m) French doors with fixed side panels out to rear garden; underfloor heating.
EN SUITE shower cubicle with Triton fittings; vanity unit comprising wash hand basin with mixer tap and double cupboard under; wc with concealed push button cistern; heated towel rail; shaver point; extractor fan.
BEDROOM 2 11' 1" x 10' 10" plus bay (3.38m x 3.3m) including built in double wardrobe; walk in square bay window to front aspect; radiator.
BEDROOM 3 12' 6" x 10' 7" plus bay (3.81m x 3.23m) plus arched recess; bow bay window to front aspect; radiator.
BATHROOM vanity unit comprising wash hand basin with mixer tap and double cupboard under; wc with concealed push button cistern; bath with mains shower fittings; fully tiled walls; frosted window; chrome heated towel rail.
OUTSIDE To the front of the property there is a spacious driveway leading to a garage measuring 23' 1" x 8' 11" with electric up and over door, built in work benches, rear window, personal door, light and power. To the rear there is a good size, low maintenance, garden mainly laid to pave with a raised paved patio, timber summerhouse and greenhouse.
VIEWINGS Strictly by appointment with the selling agents, BYCROFT ESTATE AGENTS, tel: 01493 664000.
COUNCIL TAX This property is currently listed as Band C.
DISCLAIMER While we endeavour to make our sales particulars fair, accurate and reliable, they are only a general guide to the property and, accordingly, if there is any point which is of particular importance to you, please contact the office and we will be pleased to check the position for you, especially if you are contemplating travelling some distance to view the property.
The approximate room sizes are only intended as general guidance. You must verify the dimensions carefully before ordering carpets or any built-in furniture.
Any references to garden sizes are approximate and subject to confirmation by a measured survey. A prospective purchaser is advised to arrange for their own land survey to be carried out.
Please note we have not tested the services or any of the equipment or appliances in this property, accordingly we strongly advise prospective buyers to commission their own survey or service reports before finalizing their offer to purchase.
THESE PARTICULARS ARE ISSUED IN GOOD FAITH BUT DO NOT CONSTITUTE REPRESENTATIONS OF FACT OR FORM PART OF ANY OFFER OR CONTRACT. THE MATTERS REFERRED TO IN THESE PARTICULARS SHOULD BE INDEPENDENTLY VERIFIED BY PROSPECTIVE BUYERS.
Brochures
Energy Performance Certificate
