Description
**GUIDE PRICE £480.000-£490,000** VENDORS HAVE FOUND** Bycroft Estate Agents are delighted to offer this expansive modern detached residence offering an unparalleled blend of luxury, comfort, and contemporary design with a modern fitted kitchen/diner, a separate utility room and two reception rooms downstairs with upstairs providing five bedrooms all off landing two of which benefit from an en-suite. Outside the property benefits from a stunning garden to the rear with further space to the side creating the perfect space to extend with the front offering off road parking for multiple cars by a brick weave driveway and double garage.
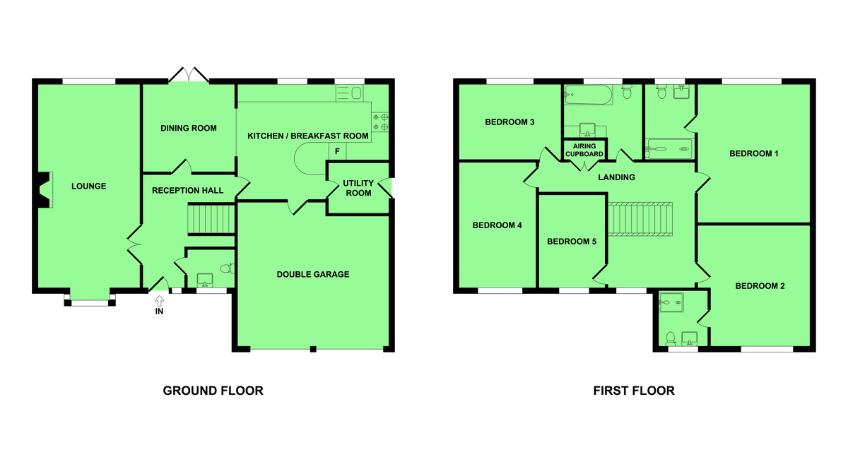
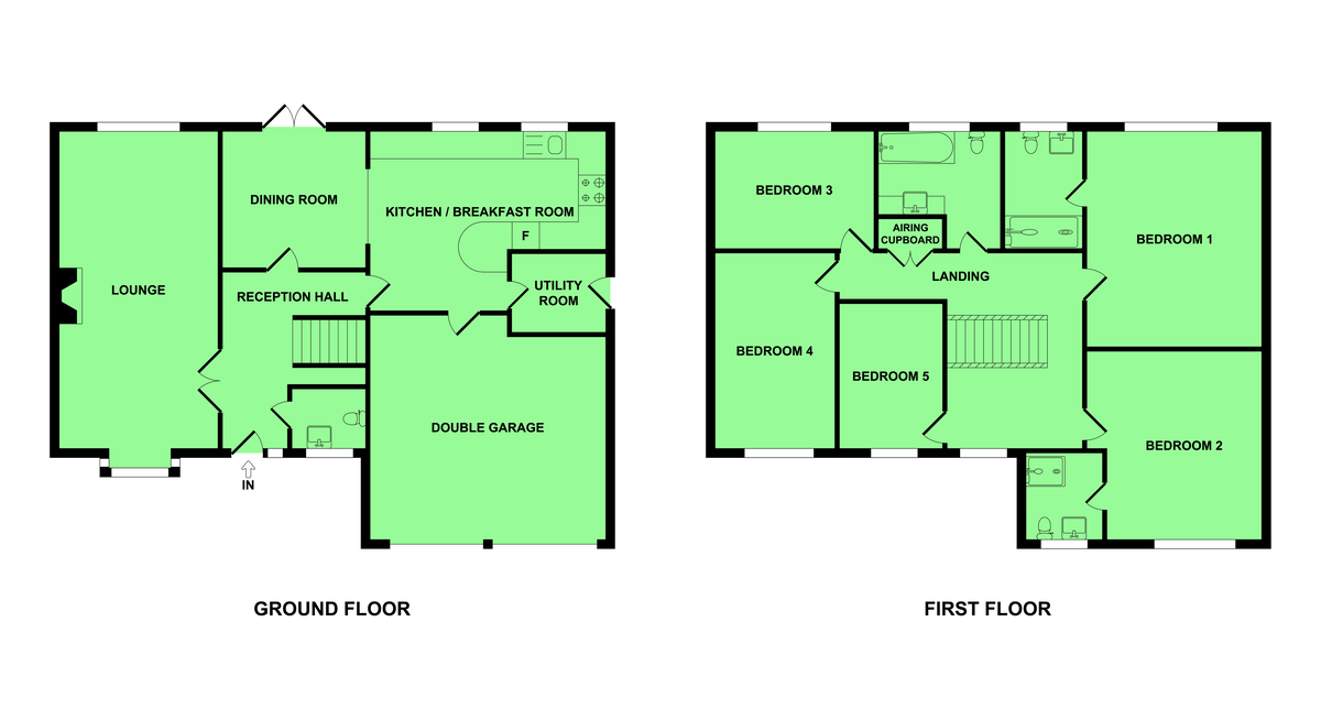
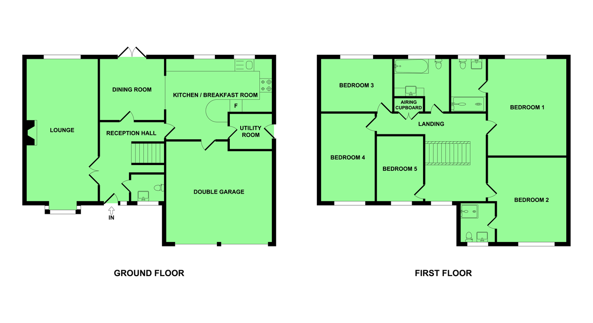
ENTRANCE HALLWAY 13' 5" max x 10' 4" max (4.09m x 3.15m) UPVC double glazed door to front aspect; stairs to first floor.
CLOAKROOM hand wash basin; wc; UPVC double glazed window to front aspect.
KITCHEN / DINER 15' 6" x 14' 2" (4.72m x 4.32m) fitted with modern wall and base units; integrated sink drainer; inset hob with extractor hood over; built in oven; space for dishwasher and fridge freezer; UPVC double glazed window to rear aspect.
SNUG / DINING ROOM 10' 4" x 10' 1" (3.15m x 3.07m) UPVC double glazed double doors to rear aspect leading into the rear garden.
UTILITY ROOM 6' 9" x 6' 9" (2.06m x 2.06m) fitted with wall and base units; integrated sink drainer; space and plumbing for washing machine; UPVC double glazed door to side aspect.
LOUNGE 27' 1" into bay x 11' 8" (8.25m x 3.56m) UPVC double glazed windows to front and rear aspects; multi fuel burner.
FIRST FLOOR LANDING
BEDROOM 1 16' 6" x 12' 2" (5.03m x 3.71m) UPVC double glazed window to rear aspect.
EN SUITE wc; hand wash basin; walk in shower cubicle with wall mounted shower unit; heated towel rail.
BEDROOM 2 14' 8" x 12' 1" (4.47m x 3.68m) UPVC double glazed window to front aspect.
EN SUITE wc; hand wash basin; walk in shower cubicle with wall mounted shower unit.
BEDROOM 3 11' 8" x 8' 10" (3.56m x 2.69m) UPVC double glazed window to rear aspect.
BEDROOM 4 14' 4" x 8' 2" (4.37m x 2.49m) UPVC double glazed window to front aspect.
BEDROOM 5 10' 8" x 8' 0" (3.25m x 2.44m) UPVC double glazed window to front aspect.
FAMILY BATHROOM bath with mixer tap; wc; hand wash basin; heated towel rail; UPVC double glazed window to rear aspect.
OUTSIDE To the front of the property there is a lawned area and a large brickweave driveway providing off road parking for two/three cars together with a double garage measuring 16' 5" x 16' 0" with two up and over doors to front, integral door to property, light, power and central heating boiler. To the side there is further garden space laid to shingle with a large shed. To the rear there is an enclosed garden with patio area, lawned area and raised flower beds.
VIEWINGS Strictly by appointment with the selling agents, BYCROFT ESTATE AGENTS, tel: 01493 844484.
COUNCIL TAX This property is currently listed as Band E.
DISCLAIMER While we endeavour to make our sales particulars fair, accurate and reliable, they are only a general guide to the property and, accordingly, if there is any point which is of particular importance to you, please contact the office and we will be pleased to check the position for you, especially if you are contemplating travelling some distance to view the property.
The approximate room sizes are only intended as general guidance. You must verify the dimensions carefully before ordering carpets or any built-in furniture.
Any references to garden sizes are approximate and subject to confirmation by a measured survey. A pro-spective purchaser is advised to arrange for their own land survey to be carried out.
Please note we have not tested the services or any of the equipment or appliances in this property, accord-ingly we strongly advise prospective buyers to commission their own survey or service reports before finaliz-ing their offer to purchase.
THESE PARTICULARS ARE ISSUED IN GOOD FAITH BUT DO NOT CONSTITUTE REPRESENTATIONS OF FACT OR FORM PART OF ANY OFFER OR CONTRACT. THE MATTERS REFERRED TO IN THESE PARTICULARS SHOULD BE INDEPENDENTLY VERIFIED BY PROSPECTIVE BUYERS.
Brochures
Energy Performance Certificate
