Description
Bycroft Estate Agents are delighted to present this extended and beautifully presented detached bungalow situated in this sought after cul-de-sac position within the popular village of Bradwell within walking distance of shops and amenities as well as schools for all ages. Accommodation comprises kitchen/diner, superb lounge, three double bedrooms, bathroom, low maintenance front and side gardens with driveway and garage, enclosed rear garden, double glazing and gas central heating. Vendors have found a chain free property.
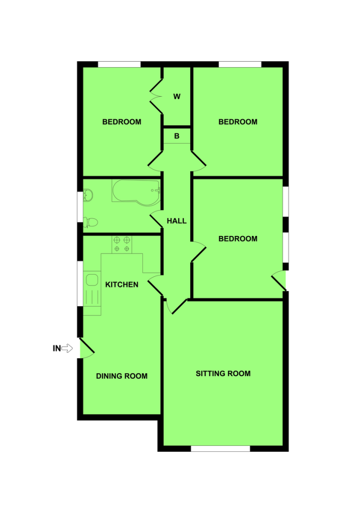
KITCHEN / DINER 19' 3" x 7' 10" (5.87m x 2.41m) side entrance door; fully fitted kitchen with white units comprising u-shaped worktop with a range of base cupboards and drawers; built in oven with four ring gas hob and light and extractor over; space and plumbing for washing machine; stainless steel one bowl sink with mixer tap; range of wall units including space for microwave; further worktop with cupboards and drawers under; shelved larder cupboard; upright fridge freezer; windows to front and side aspects; radiator; downlights.
INNER HALL access to roof space; radiator.
LOUNGE 12' 9" x 15' 8" max (3.89m x 4.78m) window to front aspect; radiator; downlights.
BEDROOM 1 11' 6" x 11' 3" max (3.51m x 3.45m) window to rear aspect; radiator.
BEDROOM 2 13' 1" x 9' 8" (4.01m x 2.95m) two side windows; side door; radiator; downlights.
BEDROOM 3 10' 11" x 7' 10" (3.33m x 2.41m) plus built in triple wardrobe with sliding doors; window to rear aspect; radiator; gas combination boiler.
BATHROOM underfloor heating; vanity unit comprising wc with concealed push button cistern and wash hand basin with mixer tap and storage cupboards under; large bath with curved screen and mains shower fittings; frosted window; chrome heated towel rail; downlights; extractor fan.
OUTSIDE To the front there is low brick walling, shingled areas with shrubs and plants, paved pathways, outside tap and power point and a driveway with space for three cars standing leading to a single garage measuring 16' 2" x 8' 3" with up and over door, light, power, rear window and rear personal door to rear garden. To the side there is a large patio area with shingle borders and access gate to the rear garden. To the rear there is an enclosed, low maintenance, private garden with lawn, paved patio area, raised decked patio and shingle borders.
VIEWINGS Strictly by appointment with the selling agents, BYCROFT ESTATE AGENTS, tel: 01493 664000.
COUNCIL TAX This property is currently listed as Band C.
DISCLAIMER While we endeavour to make our sales particulars fair, accurate and reliable, they are only a general guide to the property and, accordingly, if there is any point which is of particular importance to you, please contact the office and we will be pleased to check the position for you, especially if you are contemplating travelling some distance to view the property.
The approximate room sizes are only intended as general guidance. You must verify the dimensions carefully before ordering carpets or any built-in furniture.
Any references to garden sizes are approximate and subject to confirmation by a measured survey. A prospective purchaser is advised to arrange for their own land survey to be carried out.
Please note we have not tested the services or any of the equipment or appliances in this property, accordingly we strongly advise prospective buyers to commission their own survey or service reports before finalizing their offer to purchase.
THESE PARTICULARS ARE ISSUED IN GOOD FAITH BUT DO NOT CONSTITUTE REPRESENTATIONS OF FACT OR FORM PART OF ANY OFFER OR CONTRACT. THE MATTERS REFERRED TO IN THESE PARTICULARS SHOULD BE INDEPENDENTLY VERIFIED BY PROSPECTIVE BUYERS.
Brochures
Energy Performance Certificate
