Description
**GUIDE PRICE £455,000-£465,000** Bycroft Estate Agents are delighted to present this immaculately presented and beautifully maintained four bedroom detached family residence situated in this sought after Bradwell village location close to shops, amenities and schools for all ages. The property has been regularly updated and modernised to include a new kitchen, bathroom, en suite, good size landscaped rear garden and a superb double garage. Accommodation comprises spacious entrance hall, cloakroom, lounge, conservatory, kitchen, utility room, dining room, first floor landing, four bedrooms with en suite to principal, bathroom, front garden with large driveway and double garage, good size landscaped rear garden, gas central heating and double glazing.
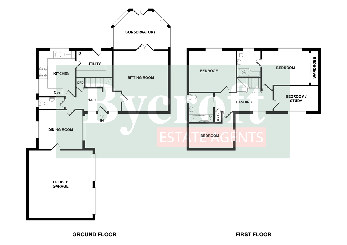
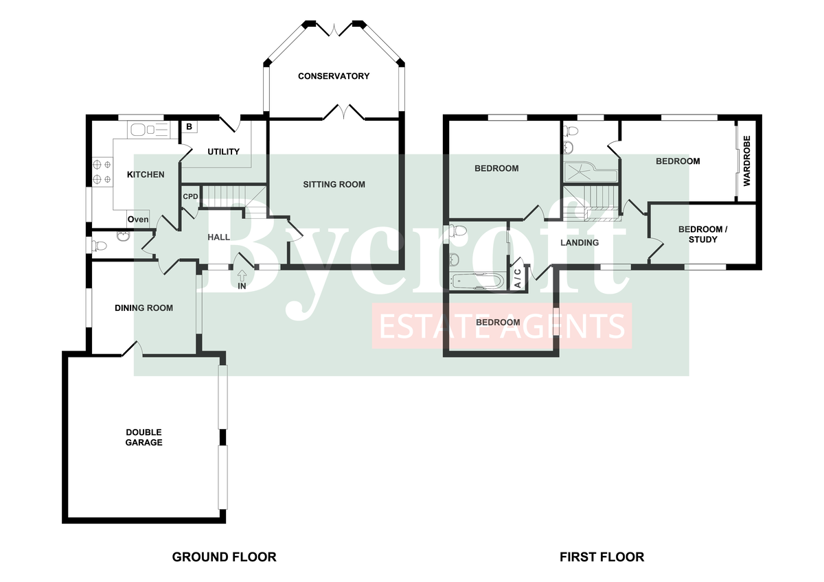
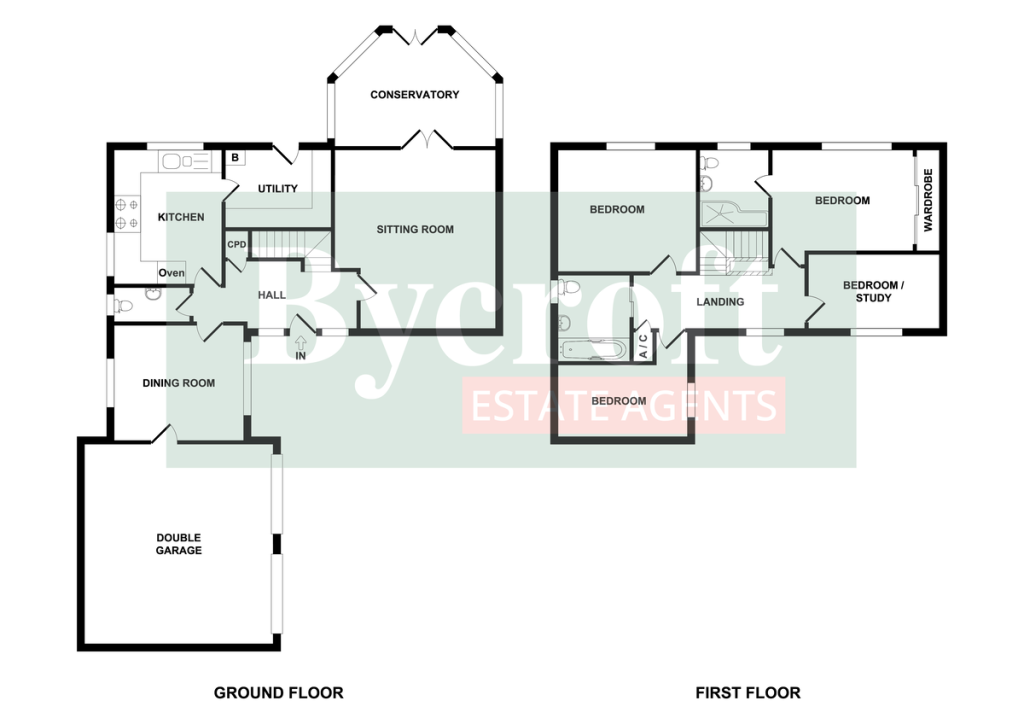
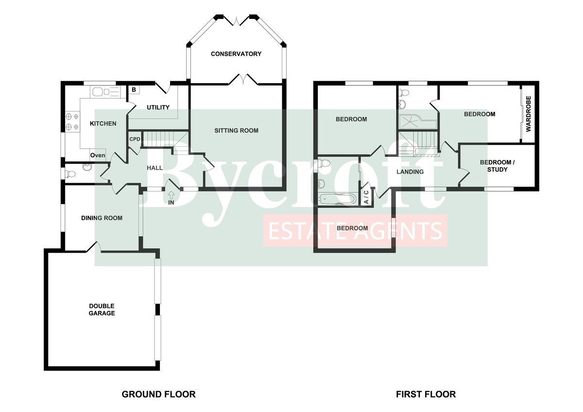
SPACIOUS ENTRANCE HALL UPVC entrance door; stairs to first floor; understairs storage cupboard; radiator; tiled flooring; windows to front aspect;
CLOAKROOM newly fitted with wc and vanity unit comprising wash hand basin with mixer tap and storage cupboard; fully tiled walls and flooring; frosted window.
LOUNGE 15' 6" x 13' 10" max (4.72m x 4.22m) window to front aspect; two radiators; York stone fireplace with raised hearth and living flame gas fire; wall lights; French doors to Conservatory.
CONSERVATORY 11' 9" x 11' 6" (3.58m x 3.51m) brick base with UPVC units overlooking rear garden; French doors out to rear; tiled flooring; ceiling fan light.
KITCHEN 12' 1" x 8' 10" (3.68m x 2.69m) newly fitted comprising large l-shaped worktop with a range of base cupboards and drawers; built in eye level oven and grill; four ring gas hob; one and a half bowl sink with mixer tap; range of wall units; breakfast bar; heated towel rail; windows to side and rear aspects; tiled flooring; under pelmet lighting; spotlights.
UTILITY ROOM 8' 6" x 6' 11" (2.59m x 2.11m) matching units to Kitchen with l-shaped worktop and a range of cupboards including wine fridge, freezer, fridge, washing machine and tumble dryer; tiled splashback; tiled flooring; Baxi gas boiler; door to rear garden.
DINING ROOM 11' 4" x 9' 3" (3.45m x 2.82m) windows to both sides; radiator; door to superb Double Garage.
DOUBLE GARAGE 16' 11" x 16' 5" (5.16m x 5m) two up and over doors; light; power; shelving; cupboards; storage space to the eaves.
SPACIOUS FIRST FLOOR LANDING window to front aspect; radiator; access to roof space; airing cupboard with shelving.
BEDROOM 1 12' 0" x 8' 11" plus door recess (3.66m x 2.72m) plus a range of built in wall-to-wall fitted wardrobes with sliding mirror fronted doors; window to rear aspect; radiator.
EN SUITE newly fitted with walk in shower cubicle with Triton fittings and curved screen; vanity unit comprising wash hand basin with mixer tap and storage cupboard under; wc with concealed push button cistern; fully tiled walls; chrome heated towel rail; frosted window.
BEDROOM 2 9' 11" x 12' 0" (3.02m x 3.66m) window to rear aspect; radiator; spotlights.
BEDROOM 3 11' 4" x 6' 7" plus large door recess (3.45m x 2.01m) window to front aspect; radiator.
BEDROOM 4 11' 1" x 6' 4" (3.38m x 1.93m) window to front aspect; radiator.
BATHROOM newly fitted with vanity unit comprising wash hand basin with mixer tap and storage cupboard; wc with concealed push button cistern; bath with rainfall tap; chrome heated towel rail; fully tiled walls; downlights; frosted window.
OUTSIDE To the front of the property there is wrought iron fencing with shingled areas and opening to a large driveway with space for several cars standing and access to the double garage. To the rear there is an immaculately presented, very good size, fully landscaped garden with crazy paved patio, shaped lawn, shingle borders, raised decked area with pagoda and timber summerhouse with light and power.
VIEWINGS Strictly by appointment with the selling agents, BYCROFT ESTATE AGENTS, tel: 01493 664000.
COUNCIL TAX This property is currently listed as Band D.
DISCLAIMER While we endeavour to make our sales particulars fair, accurate and reliable, they are only a general guide to the property and, accordingly, if there is any point which is of particular importance to you, please contact the office and we will be pleased to check the position for you, especially if you are contemplating travelling some distance to view the property.
The approximate room sizes are only intended as general guidance. You must verify the dimensions carefully before ordering carpets or any built-in furniture.
Any references to garden sizes are approximate and subject to confirmation by a measured survey. A pro-spective purchaser is advised to arrange for their own land survey to be carried out.
Please note we have not tested the services or any of the equipment or appliances in this property, accord-ingly we strongly advise prospective buyers to commission their own survey or service reports before finaliz-ing their offer to purchase.
THESE PARTICULARS ARE ISSUED IN GOOD FAITH BUT DO NOT CONSTITUTE REPRESENTATIONS OF FACT OR FORM PART OF ANY OFFER OR CONTRACT. THE MATTERS REFERRED TO IN THESE PARTICULARS SHOULD BE INDEPENDENTLY VERIFIED BY PROSPECTIVE BUYERS.
Brochures
Energy Performance Certificate
