Description
Bycroft Estate Agents are delighted to present this well presented detached house situated in a quiet and sought after cul-de-sac location within the popular village of Caister-on-Sea close to shops, amenities and schools for all ages. Offering three bedroom accommodation with shower room, entrance hall, kitchen/diner and lounge. The property benefits from gas fired central heating, double glazing and gardens to the front and rear. The front garden is low maintenance and provides off road parking with gated access leading to a car port and detached single garage. To the rear is a good size garden mainly laid to lawn with various shrubs, plants and trees and a patio area to enjoy the sun. An internal inspection is highly recommended to fully appreciate the potential the property has to offer.
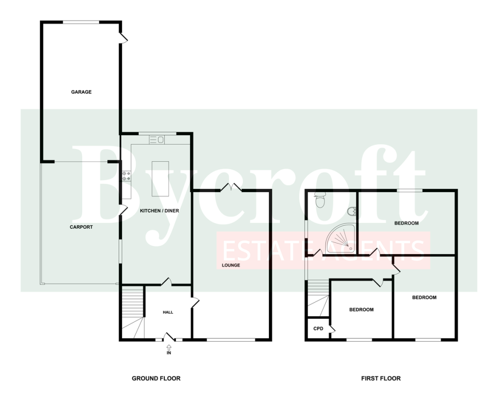
ENTRANCE HALL 6' 11" x 9' 10" max into stairwell (2.11m x 3m) double glazed composite door to front flanked by two full height UPVC double glazed obscure glass windows to front; stairs to first floor; understairs storage cupboard; radiator.
KITCHEN / DINER 20' 8" x 9' 10" max (6.3m x 3m) fitted with a range of wall and base units with square edge worksurface over; tiled splashbacks; built in eye level electric oven with built in microwave over; inset electric hob with cooker hood over; stainless steel one and a half bowl sink with mixer tap; integrated dishwasher; space and plumbing for washing machine; space for undercounter fridge and freezer; island unit with breakfast bar; cupboard housing wall mounted Baxi gas combination boiler; dining area; UPVC double glazed windows to rear and side aspects; UPVC double glazed door to side; radiator.
LOUNGE 20' 5" x 10' 5" (6.22m x 3.18m) UPVC double glazed double doors to rear leading out to the rear garden flanked by two full height UPVC double glazed windows; UPVC double glazed window to front; vertical radiator.
FIRST FLOOR LANDING 10' 0" x 3' 0" (3.05m x 0.91m) UPVC double glazed window to side.
BEDROOM 1 14' 7" x 8' 8" max (4.44m x 2.64m) UPVC double glazed window to rear; loft access (loft part boarded); radiator.
BEDROOM 2 11' 5" x 10' 4" (3.48m x 3.15m) UPVC double glazed window to front; radiator.
BEDROOM 3 8' 0" x 6' 7" (2.44m x 2.01m) UPVC double glazed window to front; radiator; deep overstairs storage cupboard.
SHOWER ROOM 8' 6" max x 5' 7" max (2.59m x 1.7m) fitted with a white suite comprising of a low level wc; vanity circular bowl wash hand basin with mixer tap and two storage drawers; large walk in shower unit with Mira mains connected shower fittings and two showerheads; tiled splashbacks; UPVC double glazed window to side; radiator.
OUTSIDE To the front of the property there is a brickweave driveway providing off road parking with further parking available (if required) via a stone chipped area with shrubs. Gated access to the rear on both sides of the property. Double gates lead to a car port with outside light and a detached single garage with roller door to front, power, light, UPVC double glazed window to rear and UPVC double glazed personal door into the rear garden. To the rear is a generous size, fully enclosed, private garden laid mainly to lawn with borders containing shrubs, plants and climbers, a further area containing a variety of shrubs, plants and trees covered by a pergola with slate chippings, porcelain pathway and a porcelain paved seating area to the rear to enjoy the sunshine and further seating areas to relax with outside light, solar lighting and tap.
VIEWINGS Strictly by appointment with the selling agents, BYCROFT ESTATE AGENTS, tel: 01493 844484.
AGENT'S NOTE It should be noted that one of the Vendors of the property is a member of staff at Bycroft.
COUNCIL TAX This property is currently listed as Band D.
DISCLAIMER While we endeavour to make our sales particulars fair, accurate and reliable, they are only a general guide to the property and, accordingly, if there is any point which is of particular importance to you, please contact the office and we will be pleased to check the position for you, especially if you are contemplating travelling some distance to view the property.
The approximate room sizes are only intended as general guidance. You must verify the dimensions carefully before ordering carpets or any built-in furniture.
Any references to garden sizes are approximate and subject to confirmation by a measured survey. A pro-spective purchaser is advised to arrange for their own land survey to be carried out.
Please note we have not tested the services or any of the equipment or appliances in this property, accord-ingly we strongly advise prospective buyers to commission their own survey or service reports before finaliz-ing their offer to purchase.
THESE PARTICULARS ARE ISSUED IN GOOD FAITH BUT DO NOT CONSTITUTE REPRESENTATIONS OF FACT OR FORM PART OF ANY OFFER OR CONTRACT. THE MATTERS REFERRED TO IN THESE PARTICULARS SHOULD BE INDEPENDENTLY VERIFIED BY PROSPECTIVE BUYERS.
Brochures
Energy Performance Certificate
