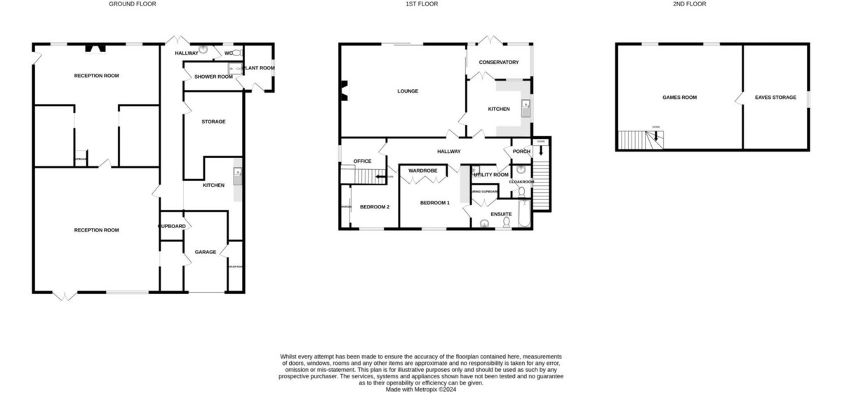
Description
GUIDE PRICE £485,000-£500,000 Bycroft Estate Agents are delighted to present this individual three storey property situated in a delightful coastal position within the sought after village of Winterton on Sea. Offering flexible accommodation over three floors consisting of a two bedroom maisonette style accommodation with entrance hall, utility room, cloakroom, kitchen, conservatory, spacious sitting room, three bedrooms. Stairs leading to a full size snooker room/games room and walk-in attic storage room, en suite to principal bedroom. Useful store area occupying a former shop area with potential for many uses including further accommodation. To the outside of the property is a front garden area laid mainly to pave and shingle for low maintenance with pergoda and driveway providing off road parking. To the side of the property is an enclosed garden laid mainly to pave for low maintenance with swimming pool, raised pond area and a further enclosed area with an array of useful outbuildings.
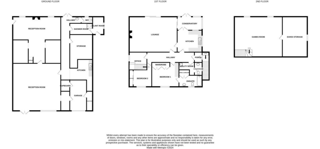
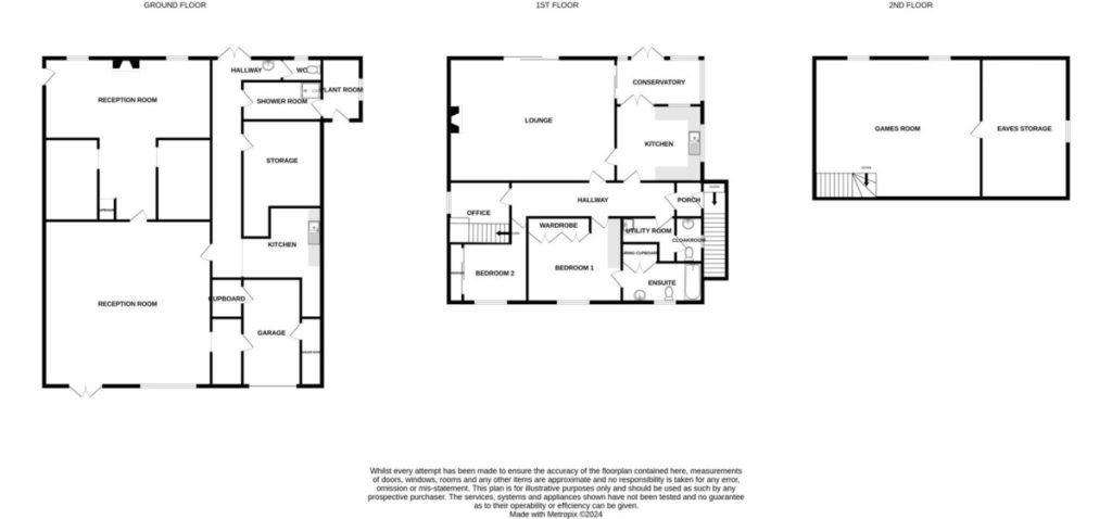
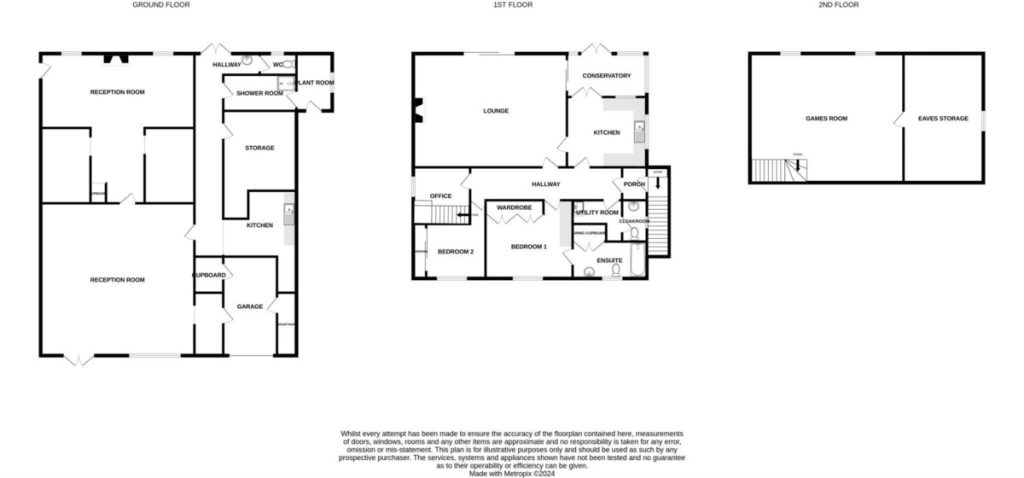
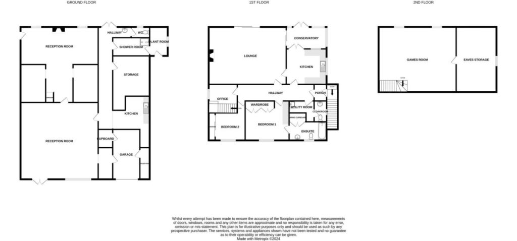
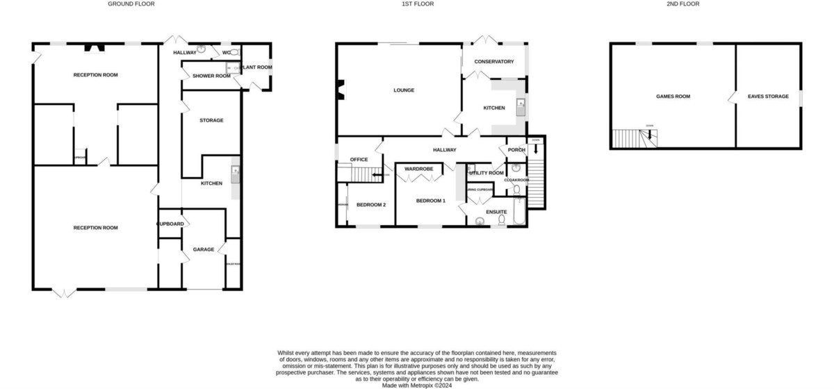
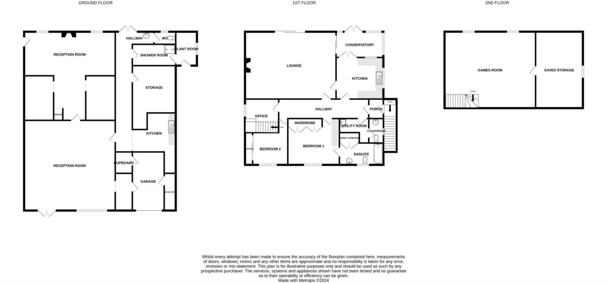
MAISONETTE ACCOMMODATION
ENTRANCE LOBBY 3' 10" x 3' 0" (1.17m x 0.91m) UPVC double glazed door to side flanked by a full height UPVC double glazed window to side.
ENTRANCE HALL 28' 4" x 5' 0" (8.64m x 1.52m)
UTILITY ROOM 8' 4" max x 6' 6" max (2.54m x 1.98m) fitted with a stainless steel single drainer sink with mixer tap; tiled splashbacks.
CLOAKROOM 6' 6" x 4' 0" (1.98m x 1.22m) fitted with a white suite comprising of a vanity wash hand basin with mixer tap and storage cupboards; low level wc; UPVC double glazed window to side.
SITTING ROOM 24' 9" x 18' 7" (7.54m x 5.66m) double glazed sliding patio door to rear; aluminium sliding patio door to Conservatory; feature fireplace with inset wood burning stove and decorative brick surround with tiled hearth.
KITCHEN 15' 5" x 11' 5" (4.7m x 3.48m) fitted with a range of wall and base units with roll edge worksurfaces over; tiled splashbacks; inset stainless steel one and a half bowl sink with mixer tap; space for five ring range cooker with glass splashback and cooker hood over; plumbing for dishwasher; UPVC double glazed window to side; space for fridge freezer; UPVC double glazed French door to Conservatory.
CONSERVATORY 14' 0" x 6' 9" (4.27m x 2.06m) of UPVC construction with UPVC double glazed windows to rear and side aspects; UPVC double glazed French door to rear opening onto an outside balcony area with wrought iron safety fencing, outside lighting providing panoramic sea views.
BEDROOM 1 14' 1" x 12' 11" (4.29m x 3.94m) fitted wardrobes and bedside furniture; UPVC double glazed window to front.
EN SUITE 12' 0" x 6' 0" (3.66m x 1.83m) fitted with a white suite comprising of a vanity wash hand basin with mixer tap and storage cupboards; low level wc; walk in shower with wall mounted electric shower unit; extractor fan; UPVC double glazed window to front; built in double width airing cupboard.
BEDROOM 2 10' 9" plus robe x 13' 0" max into door recess (3.28m x 3.96m) UPVC double glazed window to front; fitted wardrobes.
BEDROOM 3 9' 2" x 9' 2" minus stairwell (2.79m x 2.79m) UPVC double glazed window to side; stairs to second floor.
SNOOKER ROOM 24' 9" max x 21' 0" (7.54m x 6.4m) two UPVC double glazed windows to front.
WALK IN ATTIC SPACE / STORE ROOM electric lighting; UPVC double glazed window to side.
GROUND FLOOR
ENTRANCE LOBBY / POOL MAINTENANCE ROOM 9' 6" x 5' 4" (2.9m x 1.63m) two UPVC double glazed windows to side; aluminium French door to front.
INNER LOBBY / SHOWER ROOM 11' 8" x 5' 10" (3.56m x 1.78m)
HALLWAY UPVC double glazed window to rear.
CLOAKROOM 6' 0" x 2' 9" (1.83m x 0.84m) UPVC double glazed window to front; low level wc.
KITCHEN AREA 16' 11" max x 15' 0" max (5.16m x 4.57m) fitted with a range of wall and base units; inset stainless steel double drainer sink; tiled splashbacks.
RECEPTION ROOM / BAR ROOM 25' 5" x 24' 5" (7.75m x 7.44m) UPVC double glazed French door to front with UPVC double glazed full height windows to front; bar area.
RECEPTION ROOM / FORMER GARAGE 8' 7" x 14' 1" (2.62m x 4.29m) up and over metal door to front.
RECEPTION ROOM 24' 9" max x 24' 11" max (7.54m x 7.59m) UPVC double glazed window to rear; inset wood burning stove with pamment tiled hearth.
STORE ROOM AREA 8' 1" max x 12' 3" (2.46m x 3.73m)
FURTHER STORE ROOM AREA 8' 0" x 12' 3" (2.44m x 3.73m)
OUTSIDE To the outside front of the property is a garden area laid mainly to pave and shingle for low maintenance with pagoda and decorative rockeries. A substantial area of hard standing provides ample off road parking. To the side is an enclosed garden laid mainly to pave for low maintenance with heated swimming pool, raised ponds and rockeries, hot tub area, covered pond area and further enclosed area with brick built outbuildings, bin store area, two further block built outbuildings with a fenced area which could be gated to provide further enclosed off road parking. Outbuildings measure 13' 3" x 7' 10" with UPVC windows and door.
TENURE The property is leasehold with 73 years remaining. Ground Rent £380.40 pa approx. Annual Service Charge £950.47 inclusive of VAT.
VIEWINGS Strictly by appointment with the selling agents, BYCROFT ESTATE AGENTS, tel: 01493 844484.
COUNCIL TAX This property is currently listed as Band C.
DISCLAIMER While we endeavour to make our sales particulars fair, accurate and reliable, they are only a general guide to the property and, accordingly, if there is any point which is of particular importance to you, please contact the office and we will be pleased to check the position for you, especially if you are contemplating travelling some distance to view the property.
The approximate room sizes are only intended as general guidance. You must verify the dimensions carefully before ordering carpets or any built-in furniture.
Any references to garden sizes are approximate and subject to confirmation by a measured survey. A pro-spective purchaser is advised to arrange for their own land survey to be carried out.
Please note we have not tested the services or any of the equipment or appliances in this property, accord-ingly we strongly advise prospective buyers to commission their own survey or service reports before finalis-ing their offer to purchase.
THESE PARTICULARS ARE ISSUED IN GOOD FAITH BUT DO NOT CONSTITUTE REPRESENTATIONS OF FACT OR FORM PART OF ANY OFFER OR CONTRACT. THE MATTERS REFERRED TO IN THESE PARTICULARS SHOULD BE INDEPENDENTLY VERIFIED BY PROSPECTIVE BUYERS.
Brochures
Energy Performance Certificate
