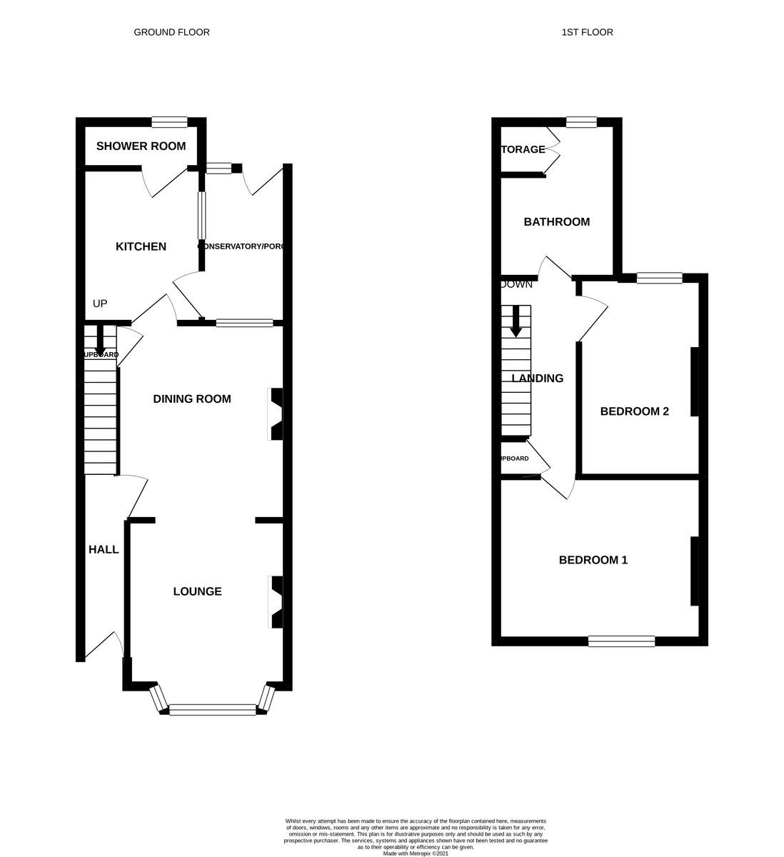
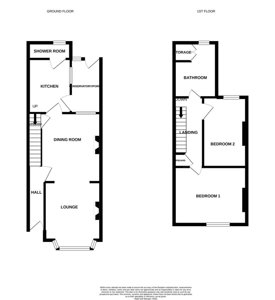
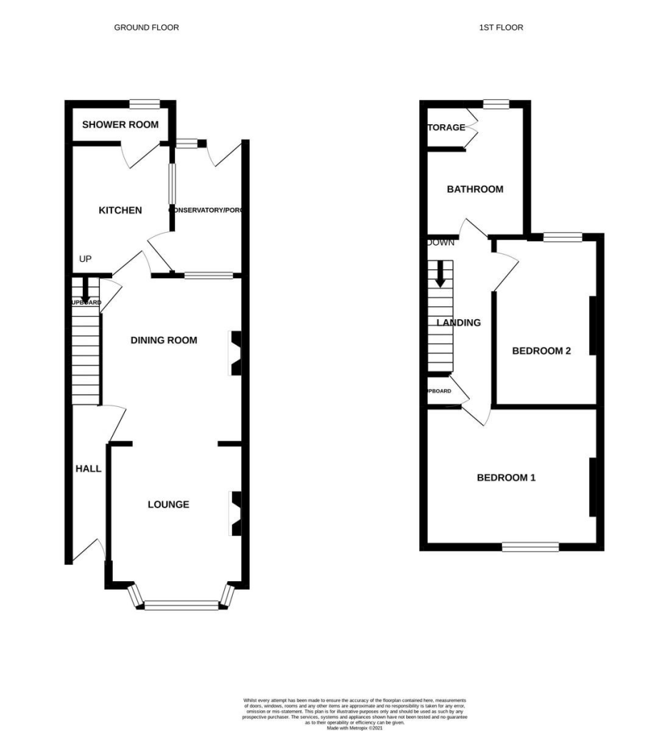
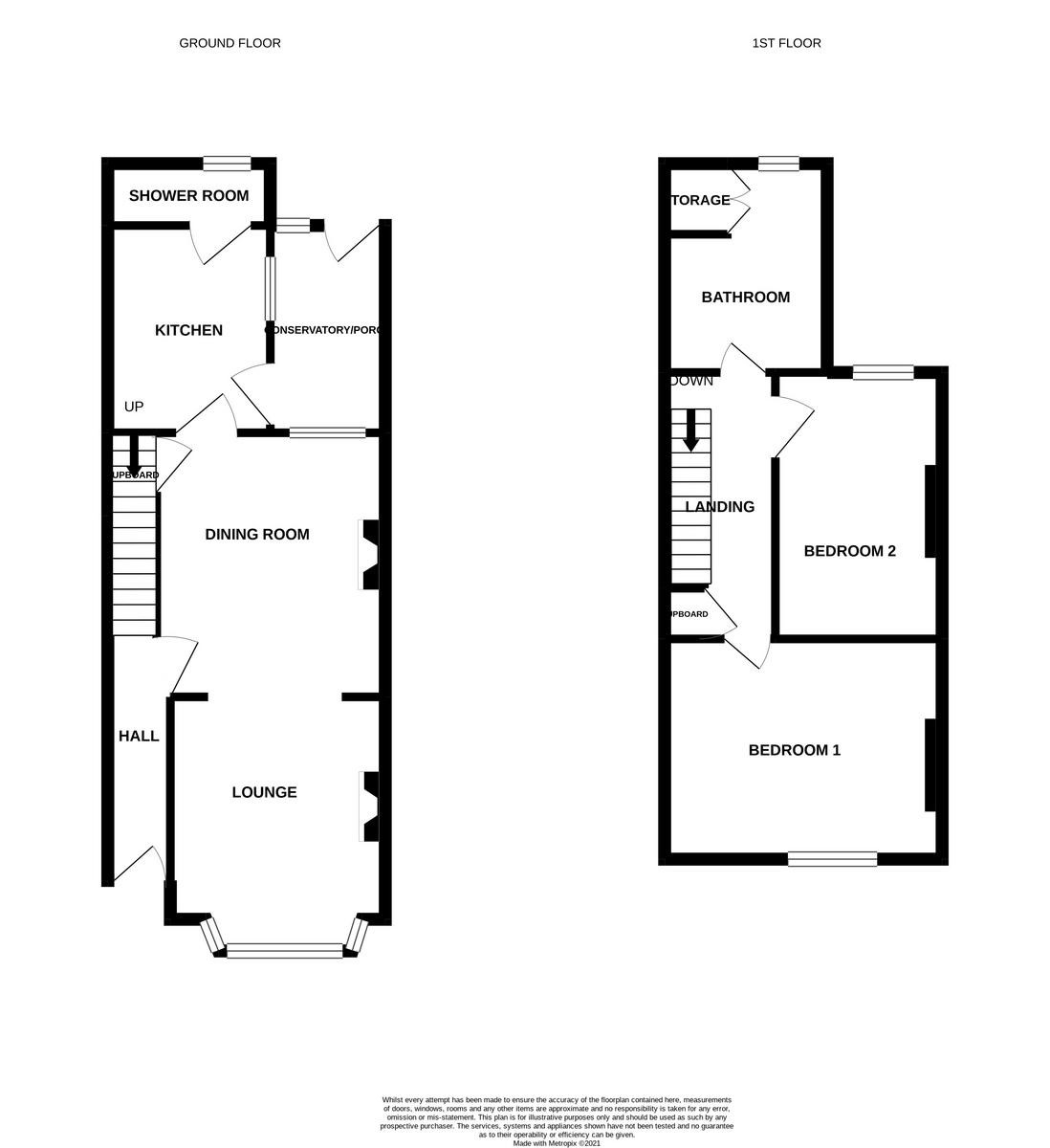
Description
Bycroft Estate Agents are delighted to present this beautifully presented and spacious two bedroom bay fronted mid terraced house together with first floor bathroom and ground floor shower/wet room. The property is situated in this central location within walking distance to Gorleston High Street offering a variety of shops and amenities. Accommodation comprises entrance hall, lounge/diner, kitchen, shower room, utility/rear porch, first floor landing, two bedrooms, bathroom, enclosed low maintenance rear garden, gas central heating and double glazing.
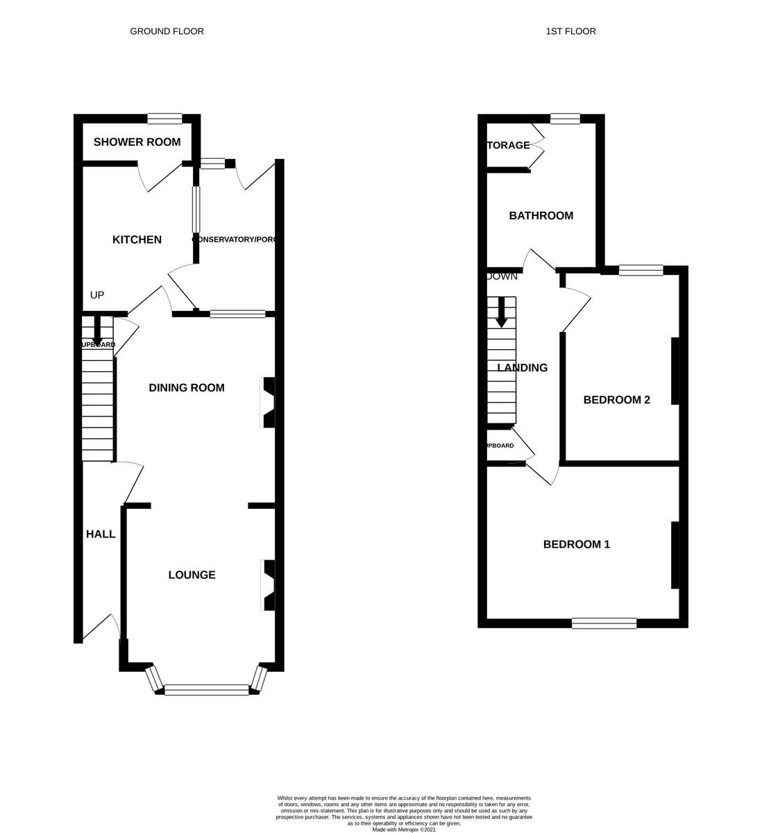
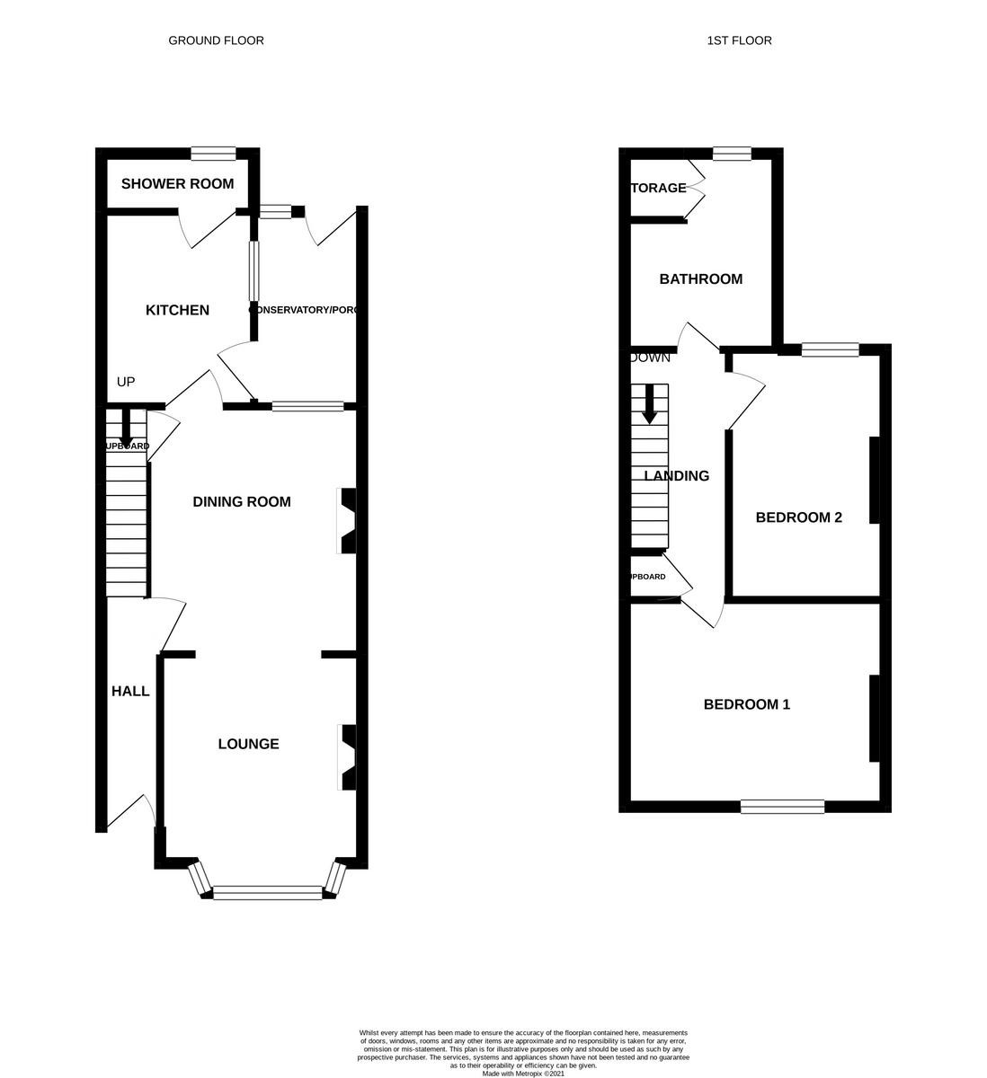
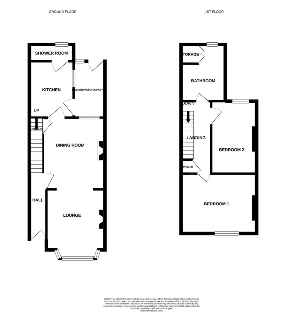
ENTRANCE HALL entrance door; stairs to first floor; radiator.
LOUNGE / DINER 24' 3" into bay x 10' 5" max (7.39m x 3.18m) bay window to front aspect; two radiators; understairs storage cupboard; internal rear window into Utility; opening to Kitchen.
KITCHEN 9' 5" x 7' 5" (2.87m x 2.26m) worktops with a range of base cupboards and drawers; built in oven with four ring hob and light and extractor over; upright cupboard with space for fridge freezer; ceramic butler sink with mixer tap; space and plumbing for washing machine; range of wall units; radiator; downlights; internal side window into Utility; door into Utility.
SHOWER / WET ROOM electric shower with soakaway drainage; wash hand basin with mixer tap; wc; wall boarding; frosted window; downlights; extractor fan.
UTILITY / REAR PORCH 9' 1" x 4' 10" (2.77m x 1.47m) rear door and window.
FIRST FLOOR LANDING downlights; storage cupboard.
BEDROOM 1 13' 2" max x 10' 0" (4.01m x 3.05m) window to front aspect; radiator.
BEDROOM 2 12' 0" x 7' 11" (3.66m x 2.41m) window to rear aspect; radiator.
BATHROOM bath with black matt mixer tap and matching mains shower fittings with two showerheads and screen; wc with concealed push button cistern; vanity wash hand basin with black matt mixer tap and storage cupboard; matt black heated towel rail; storage cupboard housing Ideal gas boiler; frosted window; extractor fan; downlights.
OUTSIDE To the front of the property there is a forecourt area with pathway to the front door. To the rear there is an enclosed low maintenance garden with large decked and paved patio areas.
COUNCIL TAX Strictly by appointment with the selling agents, BYCROFT ESTATE AGENTS, tel: 01493 664000.
COUNCIL TAX This property is currently listed as Band A.
DISCLAIMER While we endeavour to make our sales particulars fair, accurate and reliable, they are only a general guide to the property and, accordingly, if there is any point which is of particular importance to you, please contact the office and we will be pleased to check the position for you, especially if you are contemplating travelling some distance to view the property.
The approximate room sizes are only intended as general guidance. You must verify the dimensions carefully before ordering carpets or any built-in furniture.
Any references to garden sizes are approximate and subject to confirmation by a measured survey. A pro-spective purchaser is advised to arrange for their own land survey to be carried out.
Please note we have not tested the services or any of the equipment or appliances in this property, accord-ingly we strongly advise prospective buyers to commission their own survey or service reports before finalis-ing their offer to purchase.
THESE PARTICULARS ARE ISSUED IN GOOD FAITH BUT DO NOT CONSTITUTE REPRESENTATIONS OF FACT OR FORM PART OF ANY OFFER OR CONTRACT. THE MATTERS REFERRED TO IN THESE PARTICULARS SHOULD BE INDEPENDENTLY VERIFIED BY PROSPECTIVE BUYERS.
Brochures
Energy Performance Certificate
