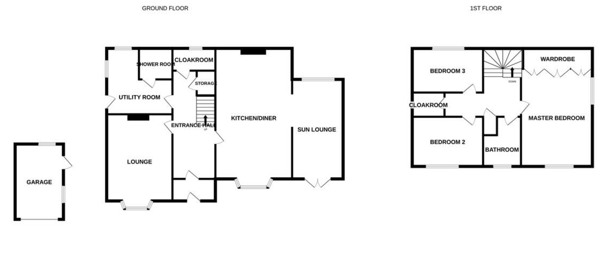
Description
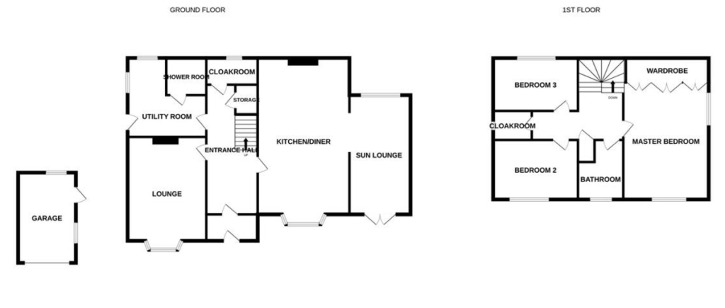
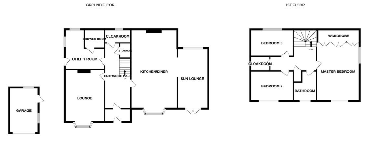
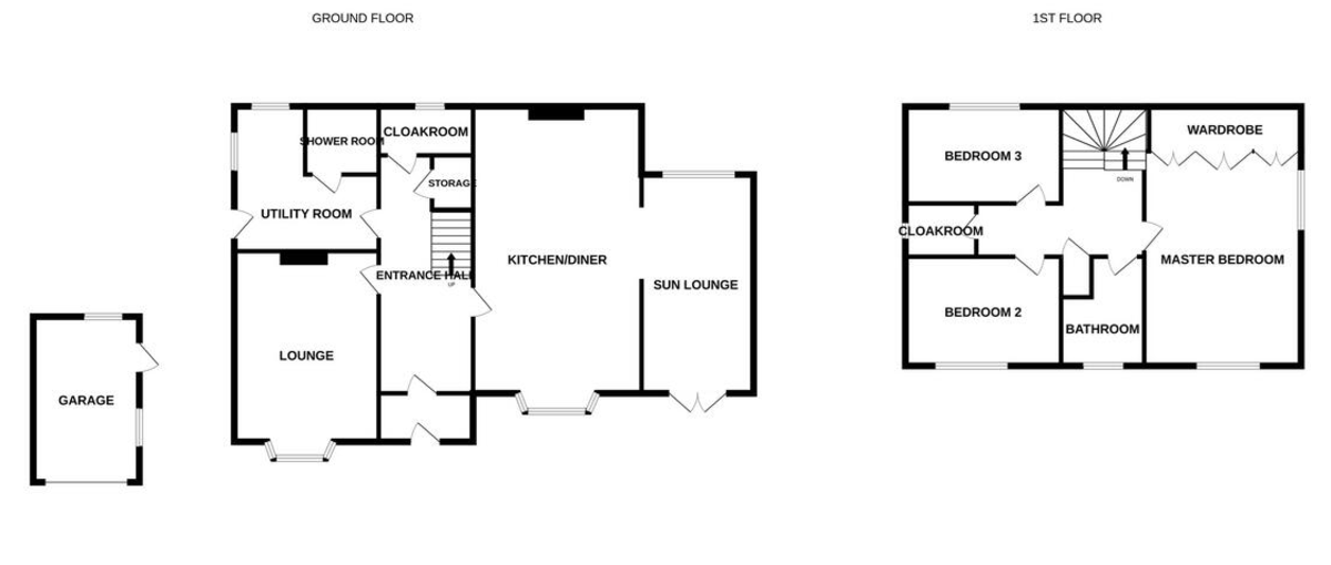
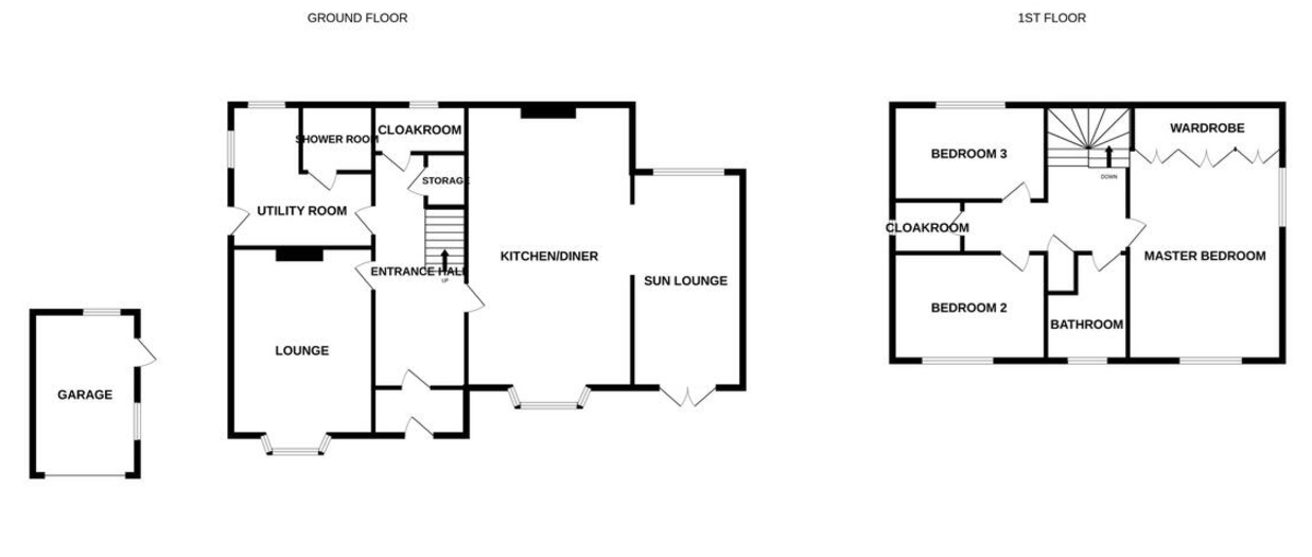
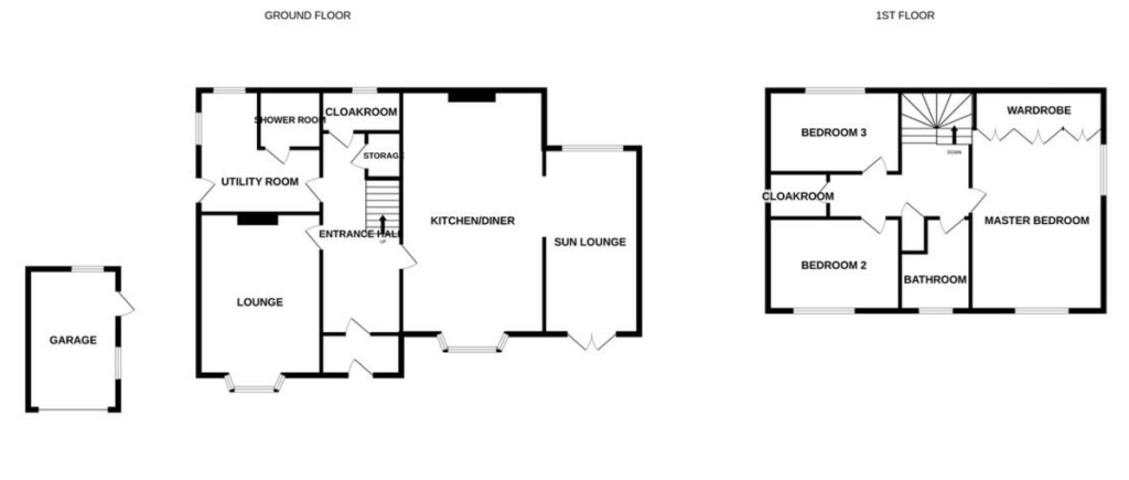
Bycroft Estate Agents are delighted to offer this spacious three bedroom detached family residence situated in this sought location within a couple of minutes walking distance of the award winning beach and sea and a variety of shops and local amenities available nearby as well as schools for all ages. Accommodation comprises entrance porch, entrance hall, lounge, kitchen/diner/family room, conservatory, utility room, shower room, downstairs cloakroom, landing, 3 bedrooms, bathroom, cloakroom, enclosed side courtyard, patio and low maintenance garden, driveway and garage, gas central heating and double glazed windows.
ENTRANCE PORCH composite door with frosted fixed side panel; further side window; wood block flooring; glazed door to:
SPACIOUS ENTRANCE HALL stairs to first floor; understairs storage cupboard.
LOUNGE 11' x 13' max (3.35m x 3.96m) into bay window to front aspect; original wood block flooring; shelved recess; two modern upright radiators.
SUPERB KITCHEN/ DINER/ FAMILY ROOM
KITCHEN AREA 19' 5" into bay window to front aspect x 11' 9" (5.92m x 3.58m) recently fitted kitchen with granite worktops with Butler sink with mixer tap; four ring hob; integrated fridge and freezer; built-in eye level oven and microwave; light and extractor fan; large central island with range of cupboards under; space for upright fridge/freezer; further open fronted display unit with shelving over; modern upright radiator; original wood block flooring. Large opening through to:
CONSERVATORY 14' 4" x 7' 2" (4.37m x 2.18m) French doors to the garden; reflective window film; four year guarantee remaining on the conservatory; modern upright radiator.
UTILITY ROOM 9' 8" plus door recess x 7' 5" (2.95m x 2.26m) l-shaped worktop with range of base cupboards with space and plumbing for washing machine; space for tumble dryer; space for dishwasher; one bowl sink with mixer tap; tiled splashback; Baxi gas boiler; chrome heated towel rail; windows to side and rear; door to rear.
GROUND FLOOR SHOWER large shower cubicle with mains fitting; extractor fan.
DOWNSTAIRS CLOAKROOM wc; vanity wash basin with mixer tap and storage cupboard under; frosted double glazed window.
FIRST FLOOR LANDING window to rear; radiator; access to roof space; shelved storage cupboard.
BEDROOM 1 15' 1" x 11' 10" (4.6m x 3.61m) plus a range of built-in units comprising of three double wardrobes; high level storage cupboard over; windows to front and side aspect; modern upright radiator.
BEDROOM 2 11' x 9' 8" (3.35m x 2.95m) built-in to side aspect; radiator.
BEDROOM 3 11' 1" x 7' 10" (3.38m x 2.39m) window to front aspect; radiator.
BATHROOM bath with mixer tap and mains shower fittings with two shower fittings with two shower heads and shower screen; vanity wash hand basin; double cupboard under; chrome heated towel rail; frosted double glazed window.
SEPARATE CLOAKROOM wc; frosted double glazed window.
OUTSIDE Double gates providing vehicular access into brickweave driveway and to garage. Further low maintenance garden area, paved patio and shrub and flower borders. Outside courtyard patio garden with gate providing rear pedestrian access leading to garage; gate leading to the front of the property. Outside tap.
COUNCIL TAX The property is currently listed as a Band C.
VIEWING Strictly by appointment with the selling agents BYCROFT ESTATE AGENTS. Tel. 01493 664000.
DISCLAIMER While we endeavour to make our sales particulars fair, accurate and reliable, they are only a general guide to the property and, accordingly, if there is any point which is of particular importance to you, please contact the office and we will be pleased to check the position for you, especially if you are contemplating travelling some distance to view the property.
The approximate room sizes are only intended as general guidance. You must verify the dimensions carefully before ordering carpets or any built-in furniture.
Any references to garden sizes are approximate and subject to confirmation by a measured survey. A prospective purchaser is advised to arrange for their own land survey to be carried out.
Please note we have not tested the services or any of the equipment or appliances in this property, accordingly we strongly advise prospective buyers to commission their own survey or service reports before finalizing their offer to purchase.
THESE PARTICULARS ARE ISSUED IN GOOD FAITH BUT DO NOT CONSTITUTE REPRESENTATIONS OF FACT OR FORM PART OF ANY OFFER OR CONTRACT. THE MATTERS REFERRED TO IN THESE PARTICULARS SHOULD BE INDEPENDENTLY VERIFIED BY PROSPECTIVE BUYERS.
Brochures
Energy Performance Certificate
