Description
Bycroft Estate Agents are delighted to offer this exceptional barn conversion set within a private location in the sought-after Broadland village of Martham. The ground floor is predominantly open plan with a stunning kitchen/dining area opening into the amazing lounge which boasts an open fire with tiled surround as well as a bespoke staircase leading to the beautiful gallery landing. Downstairs also provides a large bedroom with its own walk-in wardrobe and en-suite. Upstairs there is a further three bedrooms and two bathrooms one of which is an en-suite to bedroom two. Outside is an attractive courtyard style garden with raised flower beds and patio pathways to the brick built garage. There is also a shingle driveway and carport offering ample off-road parking for all the family.
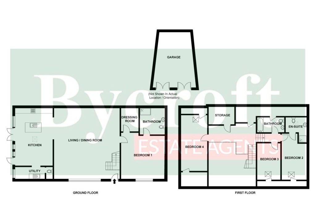
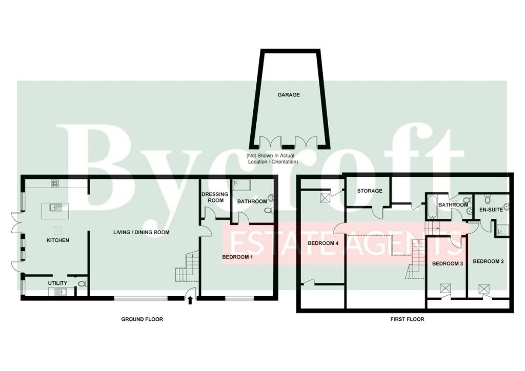
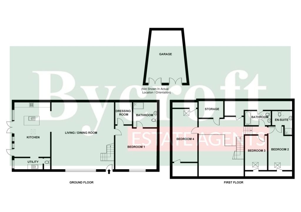
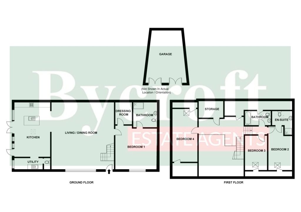
OPEN LOUNGE / LIVING SPACE 28' 6" x 28' 0" (8.69m x 8.53m) door and windows to front aspect; stunning open feature fireplace; stairs to first floor; opens into Kitchen / Dining Area.
KITCHEN / DINING AREA 22' 3" x 15' 4" (6.78m x 4.67m) fitted with a beautiful mixture of wall and base units with granite worksurfaces over; space for range cooker; integrated sink drainer; integrated dishwasher; space for all other white goods; windows and doors to side aspect leading into the rear garden.
UTILITY ROOM / WC 11' 8" x 5' 0" (3.56m x 1.52m) mixture of wall and base units; space for washing machine and tumble dryer; sink drainer; window to side; central heating boiler; wc.
BEDROOM 1 17' 10" x 17' 3" (5.44m x 5.26m) windows to front aspect; walk in wardrobe measuring 9' 0" x 6' 2".
EN SUITE 10' 2" x 9' 8" (3.1m x 2.95m) walk in shower cubicle with wall mounted shower unit and waterfall attachment; wc; hand wash basin; partly tiled walls; tiled flooring.
FIRST FLOOR LANDING balustrading; Velux windows; eaves storage space.
BEDROOM 2 18' 9" into reduced headroom x 9' 1" (5.72m x 2.77m) Velux window; window to side aspect.
BEDROOM 3 15' 5" x 8' 6" (4.7m x 2.59m) Velux window.
EN SUITE wc; hand wash basin; walk in shower cubicle with wall mounted shower unit and waterfall attachment; Velux window.
BEDROOM 4 11' 9" x 7' 11" (3.58m x 2.41m) Velux window.
FAMILY BATHROOM wc; hand wash basin; bath with mixer tap; Velux window; eaves storage space.
OUTSIDE To the front there is a large shingle driveway offering off road parking for multiple cars leading to a garage with electric rollerdoor and a door to rear leading into a further garden area. To the side of the property there is a stunning, low maintenance, enclosed garden laid to shingle with raised flower beds, gated access to car port and a large workshop space with power.
VIEWINGS Strictly by appointment with the selling agents, BYCROFT ESTATE AGENTS, tel: 01493 844484.
COUNCIL TAX This property is currently listed as Band E.
DISCLAIMER While we endeavour to make our sales particulars fair, accurate and reliable, they are only a general guide to the property and, accordingly, if there is any point which is of particular importance to you, please contact the office and we will be pleased to check the position for you, especially if you are contemplating travelling some distance to view the property.
The approximate room sizes are only intended as general guidance. You must verify the dimensions carefully before ordering carpets or any built-in furniture.
Any references to garden sizes are approximate and subject to confirmation by a measured survey. A pro-spective purchaser is advised to arrange for their own land survey to be carried out.
Please note we have not tested the services or any of the equipment or appliances in this property, accord-ingly we strongly advise prospective buyers to commission their own survey or service reports before finalis-ing their offer to purchase.
THESE PARTICULARS ARE ISSUED IN GOOD FAITH BUT DO NOT CONSTITUTE REPRESENTATIONS OF FACT OR FORM PART OF ANY OFFER OR CONTRACT. THE MATTERS REFERRED TO IN THESE PARTICULARS SHOULD BE INDEPENDENTLY VERIFIED BY PROSPECTIVE BUYERS.
Brochures
Energy Performance Certificate
