Description
Bycroft Residential are delighted to offer this stunning contemporary barn. Privately positioned in a countryside location within the sought after village of Lound. Located perfectly for access to the country and coast, the village is close to the nearby towns of Gorleston on Sea and Lowestoft. The property benefits from solid wood flooring, high quality fittings and field views.
A simply stunning conversion of this semi detached barn offering a wealth of original architectural features married with the comfort of modern design. You are welcomed to the property by a covered porch area leading to a spacious hallway with stairs to first floor landing, access to the ground floor shower room, guest bedroom and impressive kitchen/dining/living space. The ground floor accommodation is completed with a snug/home office providing the ideal space for relaxing or working from home. After ascending the stairs you arrive at the first floor landing giving access to the principal bedroom with en suite shower room, second bedroom with balcony and family bathroom. To the outside are garden areas laid mainly to lawn with post and rail fencing and private parking.
* Air Source Under Floor Heating with Joule Samsung Air Source Pump
* Solid Wood Flooring in Ground Floor Hallway and Reception Areas
* CAT 6 Data Points in all Bedrooms and Reception Areas
* High Quality Fittings
* Heated Towel Rails, Tiled Splashbacks and Heated Mirrors in all Bathrooms
* Soaker and Hand Attachment to all Showers
* Stone Pathways and Patios
* Alarmed
* Wood Burner with pamment hearth in lounge/kitchen/diner
* Balcony with field views
* Feature original beams
* Sought after Village Location
* NHBC Guarantee (Approx 7 years remaining)
ENTRANCE HALL 15' 1" x 7' 8" (4.62m x 2.36m) Velux window with reflective heat film; built-in plant room cupboard.
OPEN PLAN KITCHEN/DINING/LIVING 23' 9" x 18' 11" (7.24m x 5.77m) fitted with high quality solid wood kitchen doors, quartz work surfaces; good range of base and wall units with integrated fridge, freezer, dishwasher, washing machine, tumble dryer, double oven and hob with drawdown extractor, large island cupboards and drawers under, Belfast sink, wine cooler, windows to the front and side elevations, wood burner.
SHOWER ROOM 5' 6" x 5' 10" (1.7m x 1.8m) corner shower; electric mirror; wc; hand wash basin.
BEDROOM 3 / GUEST BEDROOM 11' 3" x 9' 1" (3.43m x 2.77m) blinds; black out blind to Velux window; LVT floor.
INNER HALL Large double door airing cupboard and access to good sized roof space with light and boarding.
SNUG/HOME OFFICE 11' 3" x 8' 11" (3.43m x 2.72m) french doors leading to enclosed rear garden.
FIRST FLOOR LANDING 3 Velux windows with reflective heat film; LVT flooring; storage cupboard.
BEDROOM 1 18' 9" x 9' 6" (5.72m x 2.9m) triple wardrobe; black out blind to Velux window and blinds; LVT floor.
EN SUITE quality fittings with large walk-in shower; electric mirror; wc; hand wash basin.
BEDROOM 2 14' 0" x 8' 0" (4.27m x 2.44m) door to balcony terrace 7' x 4' with countryside views with Velux window.
FAMILY BATHROOM Velux window with heat reflective film; bath; electric mirror with shaver point; wc; hand wash basin.
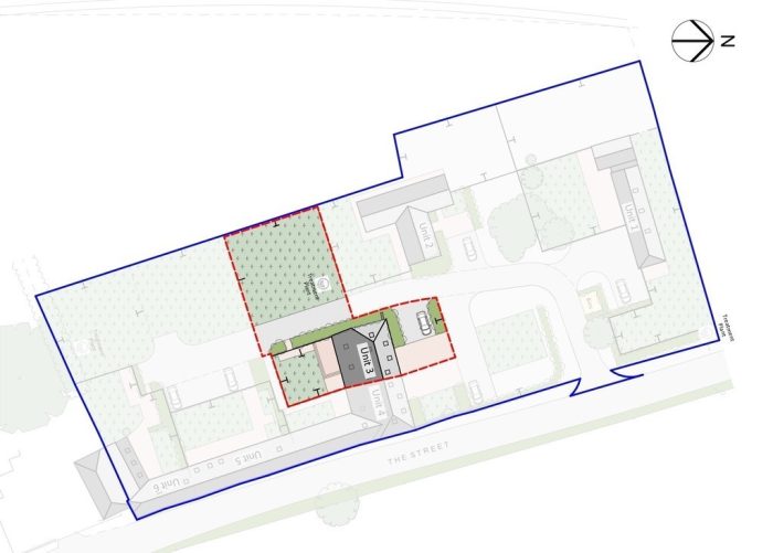
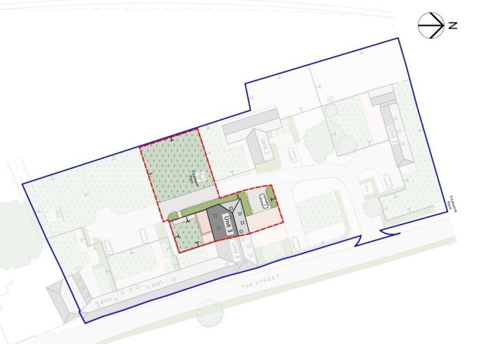
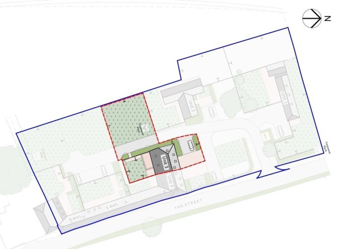
OUTSIDE An enclosed South East facing garden with large L shaped patio, lawn, raised flower beds, shingled pathway, low maintenance side and front areas with membrane and plum slate. Across the way access to large enclosed paddock (approximately 3,750 sf ft), shed with concrete base, 4 x 8ft raised flower beds. To the front and rear double socket power points and outside tap.
VIEWING Strictly by appointment with the sole selling agents BYCROFT RESIDENTIAL. Tel. 01493 664000.
COUNCIL TAX Council Tax Band E.
DISCLAIMER While we endeavour to make our sales particulars fair, accurate and reliable, they are only a general guide to the property and, accordingly, if there is any point which is of particular importance to you, please contact the office and we will be pleased to check the position for you, especially if you are contemplating travelling some distance to view the property.
The approximate room sizes are only intended as general guidance. You must verify the dimensions carefully before ordering carpets or any built-in furniture.
Any references to garden sizes are approximate and subject to confirmation by a measured survey. A prospective purchaser is advised to arrange for their own land survey to be carried out.
Please note we have not tested the services or any of the equipment or appliances in this property, accordingly we strongly advise prospective buyers to commission their own survey or service reports before finalizing their offer to purchase.
Brochures
Energy Performance Certificate
