Description
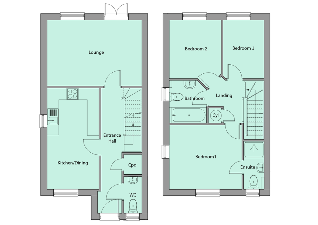
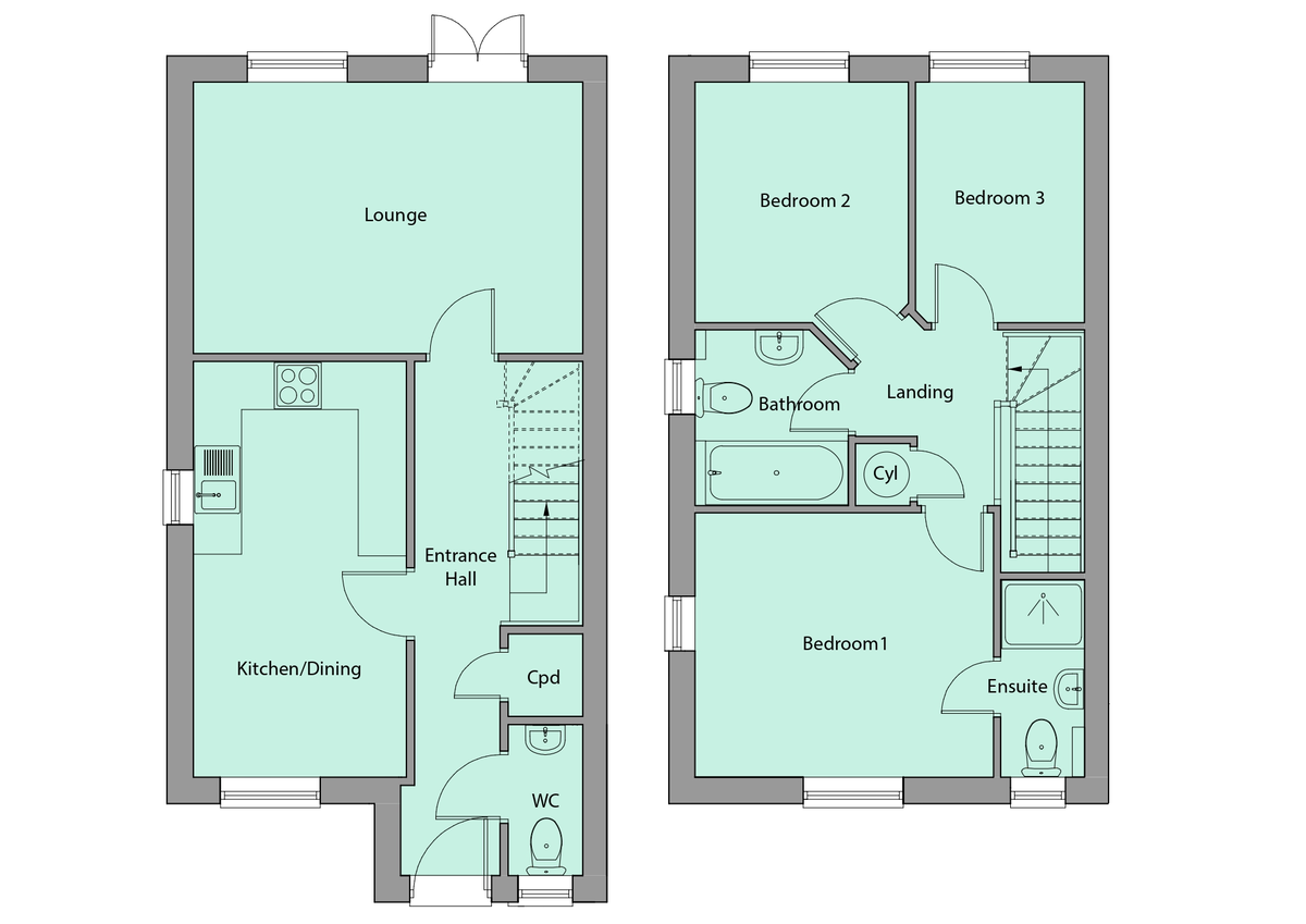
**PLOT 10 'Douglas' 925 SQ FT** Bycroft Residential are delighted to offer this spacious BRAND NEW SEMI-DETACHED THREE BEDROOM house built by the reputable OLDMAN HOMES. The property boasts a modern OPEN PLAN KITCHEN/DINING ROOM and a good size lounge, ground floor wc, Three first floor bedrooms with EN-SUITE to main bedroom and family bathroom. The property also benefits from driveway providing parking for two cars. Choice of kitchen available from HOWDENS. Anthracite UPVC windows. Gas central heating, A Rated "Ideal" Boiler. Solar Panels and car charging point.
Welcome to Woods Meadow, an exceptional new development that harmoniously blends modern living with the breathtaking beauty of Oulton Broad, Suffolk. This stunning community features a diverse selection of beautifully designed 2, 3, and 4-bedroom homes, each crafted with meticulous attention to detail and an emphasis on contemporary comfort.
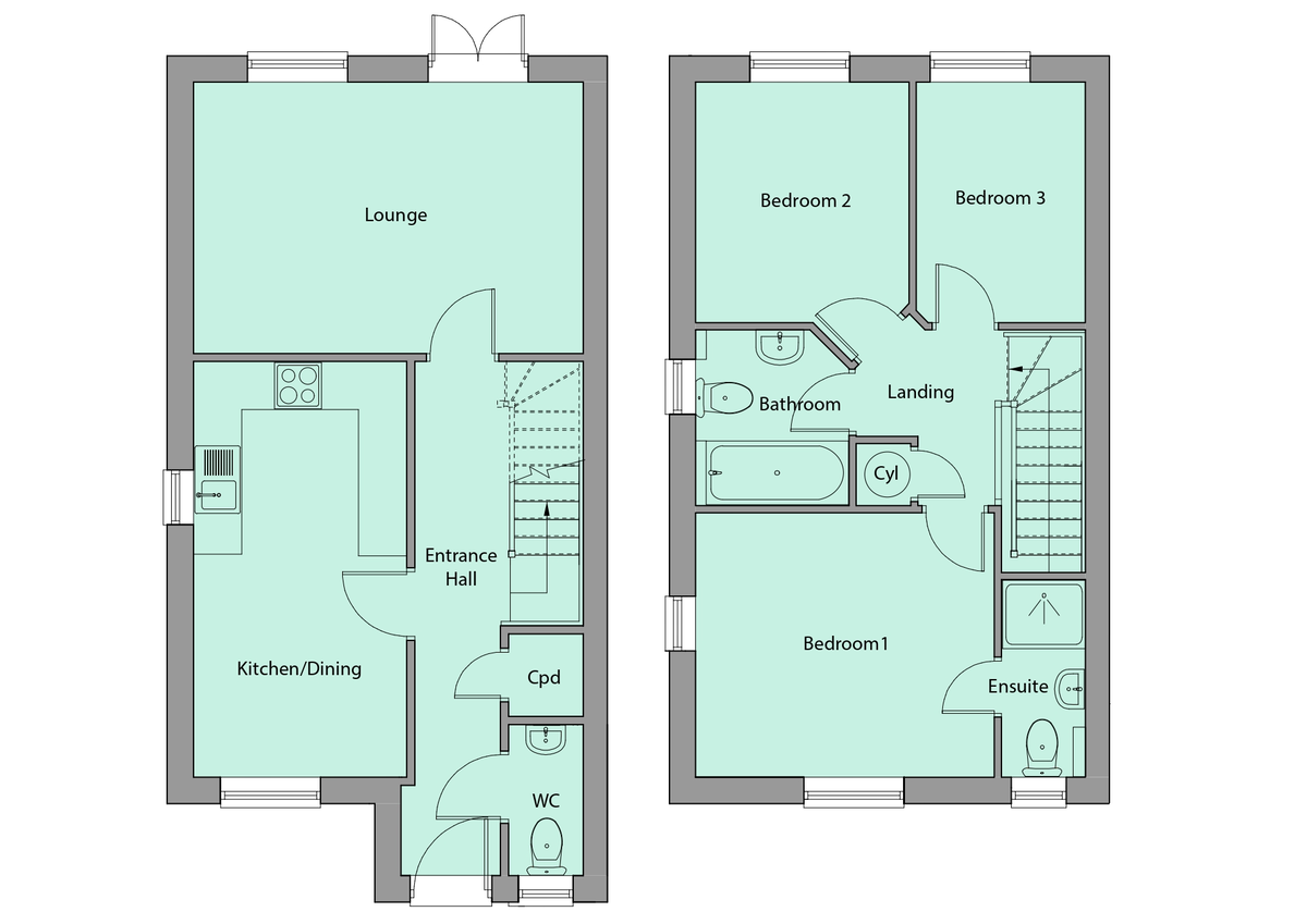
ENTRANCE HALL storage cupboard.
CLOAKROOM wc; hand wash basin; window to front aspect.
LOUNGE 15' 11" x 11' 1" (4.86m x 3.38m) window and door to rear aspect; radiator.
KITCHEN/DINER 17' 0" x 7' 4" (5.19m x 2.26m) Choice of kitchen available, Bosch appliances, single oven, electric hob, extractor fan, 50/50 fridge/freezer, slimline dishwasher. Windows to front & side aspect, radiator; spotlights
BEDROOM 1 12' 2" x 10' 9" (3.73m x 3.30m) windows to front and side aspect. radiator; door to:
EN SUITE vanity unit with wash basin; wc; shower cubicle; aqua board; choice of finish for early reservations.
BEDROOM 2 8' 8" x 9' 10" (2.66m x 3.00m) window to rear aspect; radiator.
BEDROOM 3 6' 11" x 9' 10" (2.11m x 3.00m) window to rear aspect; radiator.
OUTSIDE To the front there is landscaped garden, driveway providing parking for two cars, external lighting, gate providing access to good size enclosed rear garden, patio area, seeded lawn, external lighting, detached single garage. Outside tap.
COUNCIL TAX The council tax is to be confirmed.
VIEWING Strictly by appointment with the selling agents BYCROFT RESIDENTIAL. Tel. 01493 664000.
DISCLAIMER While we endeavour to make our sales particulars fair, accurate and reliable, they are only a general guide to the property and, accordingly, if there is any point which is of particular importance to you, please contact the office and we will be pleased to check the position for you, especially if you are contemplating travelling some distance to view the property.
The approximate room sizes are only intended as general guidance. You must verify the dimensions carefully before ordering carpets or any built-in furniture.
Any references to garden sizes are approximate and subject to confirmation by a measured survey. A prospective purchaser is advised to arrange for their own land survey to be carried out.
Please note we have not tested the services or any of the equipment or appliances in this property, accordingly we strongly advise prospective buyers to commission their own survey or service reports before finalizing their offer to purchase.
THESE PARTICULARS ARE ISSUED IN GOOD FAITH BUT DO NOT CONSTITUTE REPRESENTATIONS OF FACT OR FORM PART OF ANY OFFER OR CONTRACT. THE MATTERS REFERRED TO IN THESE PARTICULARS SHOULD BE INDEPENDENTLY VERIFIED BY PROSPECTIVE BUYERS.
