Description
**PLOT 12 'Matchless' 590 SQ FT** Bycroft Residential are delighted to offer this well-designed BRAND NEW SEMI-DETACHED TWO BEDROOM BUNGALOW built by the reputable OLDMAN HOMES. The property boasts a modern KITCHEN and a good size lounge, Two bedrooms and bathroom. The bungalow also benefits from double width driveway providing parking for two cars. Choice of kitchen available from HOWDENS. Anthracite UPVC windows. Gas central heating, A Rated "Ideal" Boiler. Solar Panels and car charging point.
Welcome to Woods Meadow, an exceptional new development that harmoniously blends modern living with the breathtaking beauty of Oulton Broad, Suffolk. This stunning community features a diverse selection of beautifully designed 2, 3, and 4-bedroom homes, each crafted with meticulous attention to detail and an emphasis on contemporary comfort.
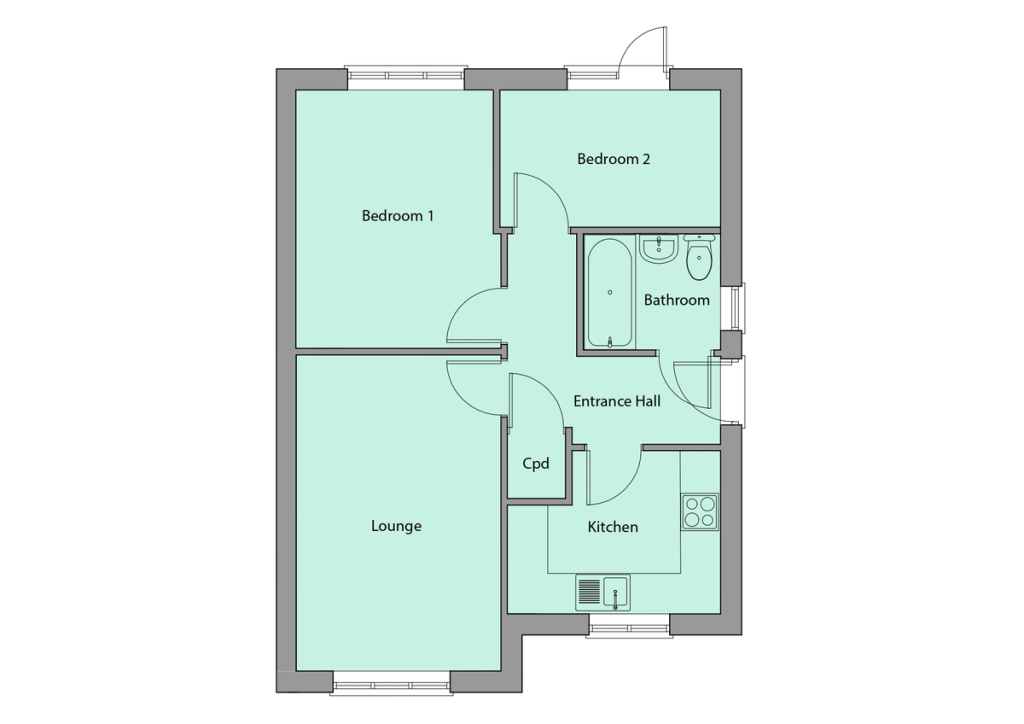
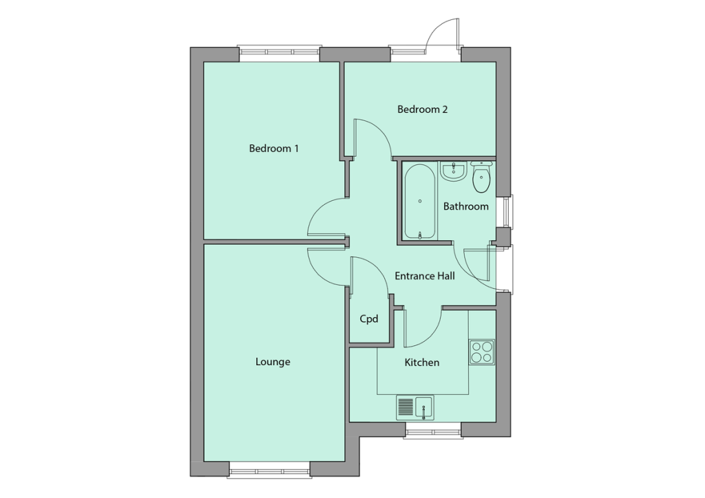
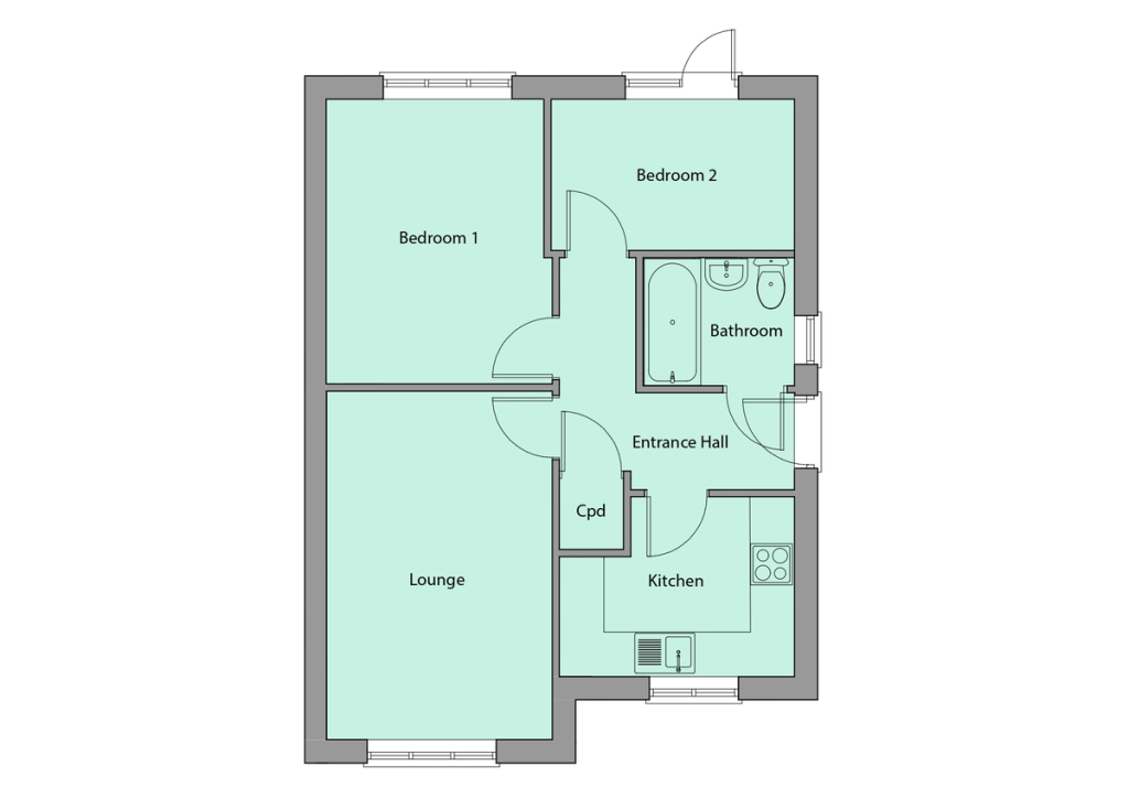
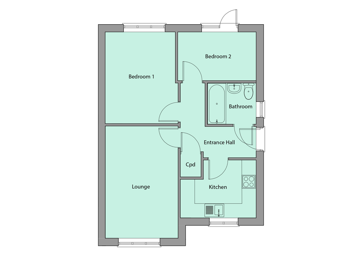
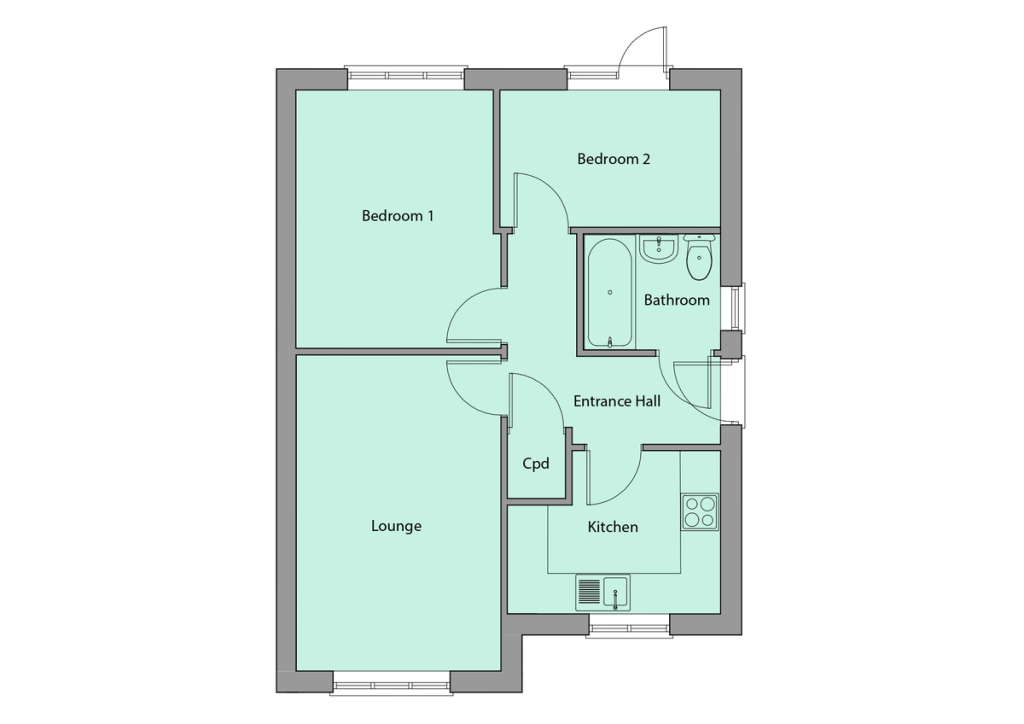
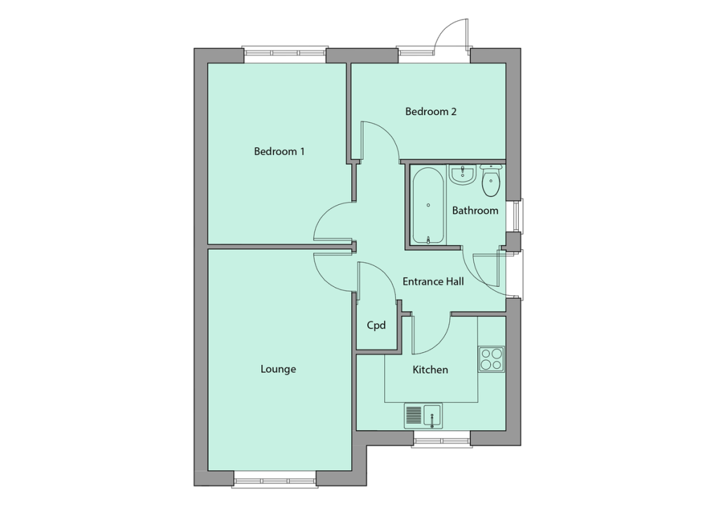
ENTRANCE HALL storage cupboard.
LOUNGE 10' 4" x 16' 0" (3.17m x 4.89m) window to front aspect; radiator.
KITCHEN 10' 0" x 8' 3" (3.07m x 2.52m) Choice of kitchen available, Bosch appliances, single oven, electric hob, extractor fan, 50/50 fridge/freezer, dishwasher. Window to front aspect, radiator; spotlights
BEDROOM 1 13' 1" x 10' 0" (4.00m x 3.07m) window to rear aspect; radiator.
BEDROOM 2 11' 1" x 6' 11" (3.40m x 2.12m) window to rear aspect; radiator.
BATHROOM bath; wash basin; wc; Aqua board; choice of finish for early reservations; side window.
OUTSIDE To the front there is landscaped garden, double width driveway providing parking for two cars, external lighting, gate providing access to enclosed rear garden, patio area, seeded lawn, external lighting. Outside tap.
COUNCIL TAX The council tax is to be confirmed.
VIEWING Strictly by appointment with the selling agents BYCROFT RESIDENTIAL. Tel. 01493 664000.
DISCLAIMER While we endeavour to make our sales particulars fair, accurate and reliable, they are only a general guide to the property and, accordingly, if there is any point which is of particular importance to you, please contact the office and we will be pleased to check the position for you, especially if you are contemplating travelling some distance to view the property.
The approximate room sizes are only intended as general guidance. You must verify the dimensions carefully before ordering carpets or any built-in furniture.
Any references to garden sizes are approximate and subject to confirmation by a measured survey. A prospective purchaser is advised to arrange for their own land survey to be carried out.
Please note we have not tested the services or any of the equipment or appliances in this property, accordingly we strongly advise prospective buyers to commission their own survey or service reports before finalizing their offer to purchase.
THESE PARTICULARS ARE ISSUED IN GOOD FAITH BUT DO NOT CONSTITUTE REPRESENTATIONS OF FACT OR FORM PART OF ANY OFFER OR CONTRACT. THE MATTERS REFERRED TO IN THESE PARTICULARS SHOULD BE INDEPENDENTLY VERIFIED BY PROSPECTIVE BUYERS.
