Description
**Guide Price £175,000-£180,000** *AN EXTENDED MODERN 2 BED END TERRACE HOUSE* conveniently situated in this central location close to shops and amenities as well as walking distance to Gorleston High Street. Accommodation comprises spacious entrance porch, lounge, inner hall, kitchen diner, ground floor bathroom, landing to double bedrooms, front forecourt, enclose low maintenance rear garden, gas central heating, double glazed windows. Ideal for first time buyers or investors.
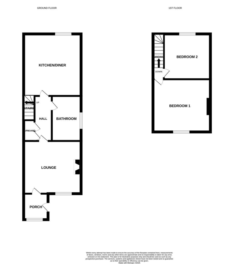
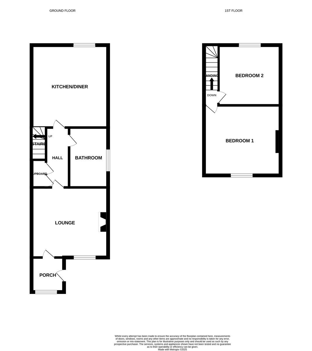
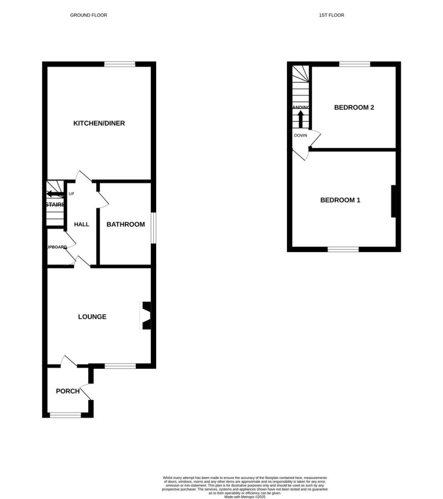
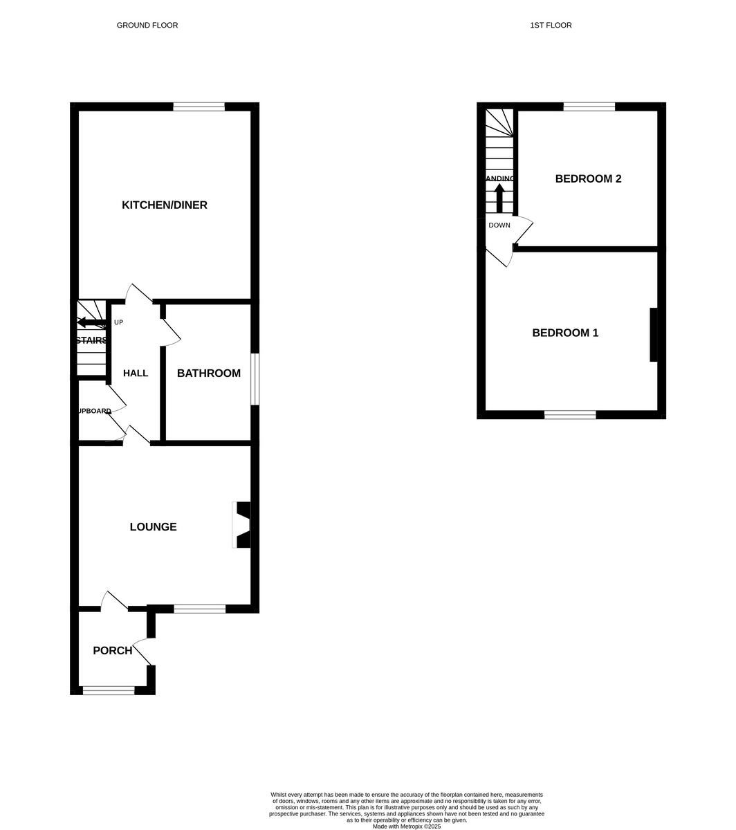
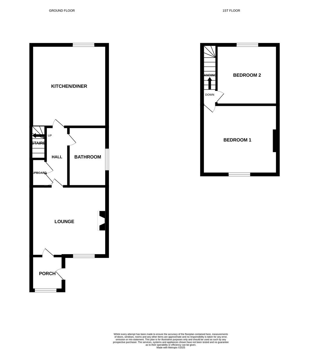
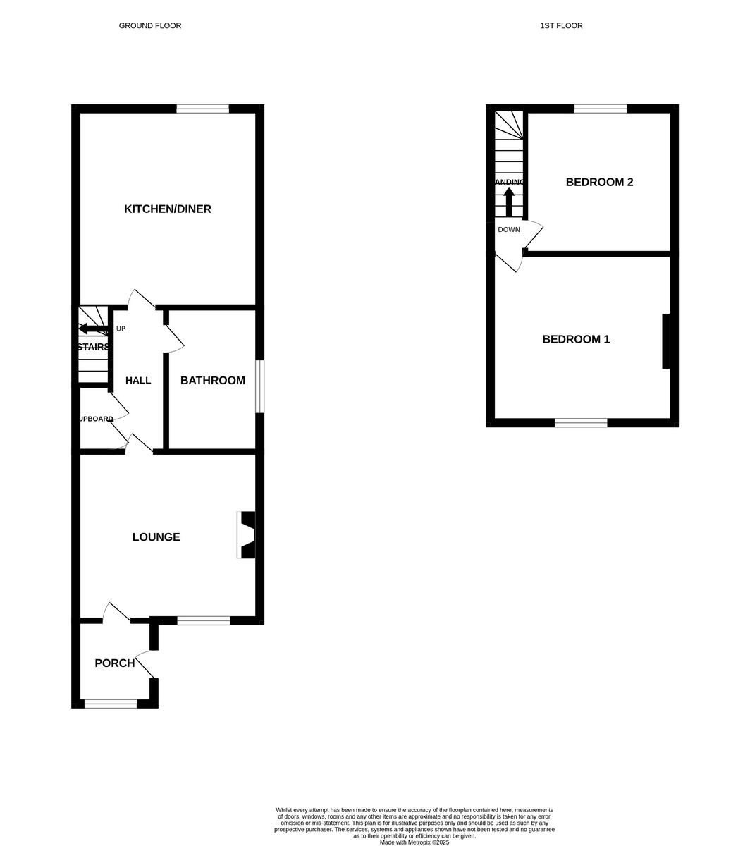
ENTRANCE PORCH uPVC door into spacious entrance porch; window to front aspect; down lights; uPVC door into;
LOUNGE 11' x 11' 11 max" (3.35m x 3.63m) recessed brick fireplace with cast iron wood burner; radiator; window to front aspect; solid oak flooring; door into;
INNER HALLWAY stairs to first floor; 2 storage cupboards; radiator.
KITCHEN DINER 13' 6" x 12' 3" (4.11m x 3.73m) worktops with range of base, cupboards and drawers incl. built-in eye level Hotpoint oven and grill, 4 ring hob; circular 1½ bowl sink, mixer tap; space and plumbing for washing machine; fridge freezer; undercounter fridge; built-in wine rack; range of wall units; lighting, extractor; Glow-Worm gas boiler; radiator; window and door to rear garden; down lights.
BATHROOM pedestal wash hand basin; wc; shower bath with curved shower screen, mains fittings, rain fall shower head; radiator; chrome heated towel rail; double glazed window; down lights; tiled floor.
LANDING access to roof space.
BEDROOM 1 12' 2 max" x 11' (3.71m x 3.35m) window to front aspect; radiator.
BEDROOM 2 9' 4" x 9' 3" (2.84m x 2.82m) window to rear aspect; radiator.
OUTSIDE side pathway and gate into enclosed low maintenance, nicely presented rear garden with paved patio area, timber shed, side wood store and rear storage area.
COUNCIL TAX This property is currently listed as Band A
VIEWINGS Strictly by appointment with the selling agents, BYCROFT ESTATE AGENTS, tel: 01493 664000
DISCLAIMER While we endeavour to make our sales particulars fair, accurate and reliable, they are only a general guide to the property and, accordingly, if there is any point which is of particular importance to you, please contact the office and we will be pleased to check the position for you, especially if you are contemplating travelling some distance to view the property.
The approximate room sizes are only intended as general guidance. You must verify the dimensions carefully before ordering carpets or any built-in furniture.
Any references to garden sizes are approximate and subject to confirmation by a measured survey. A prospective purchaser is advised to arrange for their own land survey to be carried out.
Please note we have not tested the services or any of the equipment or appliances in this property, accordingly we strongly advise prospective buyers to commission their own survey or service reports before finalising their offer to purchase.
THESE PARTICULARS ARE ISSUED IN GOOD FAITH BUT DO NOT CONSTITUTE REPRESENTATIONS OF FACT OR FORM PART OF ANY OFFER OR CONTRACT. THE MATTERS REFERRED TO IN THESE PARTICULARS SHOULD BE INDEPENDENTLY VERIFIED BY PROSPECTIVE BUYERS.
Brochures
Energy Performance Certificate
