Description
*SPACIOUS COASTAL COTTAGE* Bycroft Estate Agents are delighted to present this spacious attached cottage presented to a high modern standard fusing coastal cottage with contemporary feel. The property presented to a high standard and also benefits from an extensive refurbishment by the current owners creating spacious living areas with high quality fixtures and fittings. Benefits further from gas fired central heating and UPVC double-glazing with charming brick and flint fronted property with a well portioned enclosed garden to the outside. An internal inspection is highly recommended to fully appreciate the style and quality of the accommodation on offer.
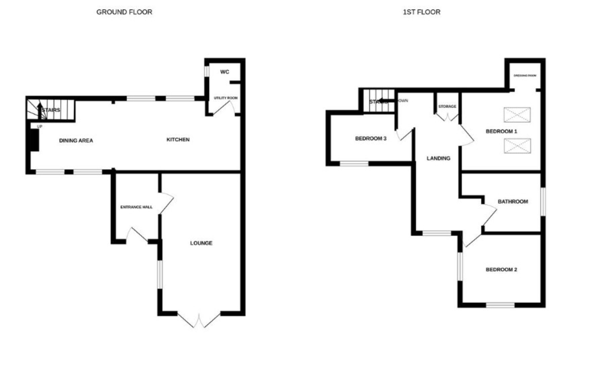
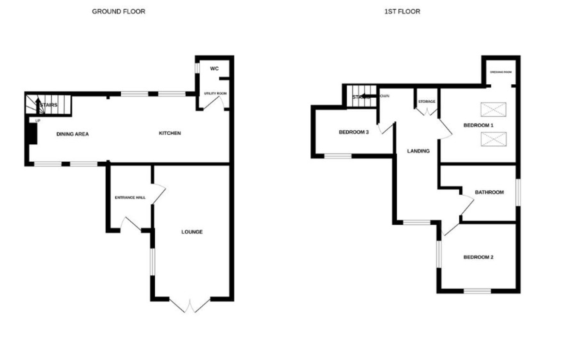
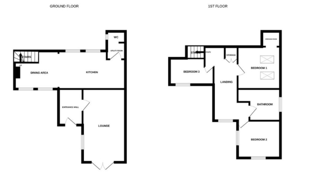
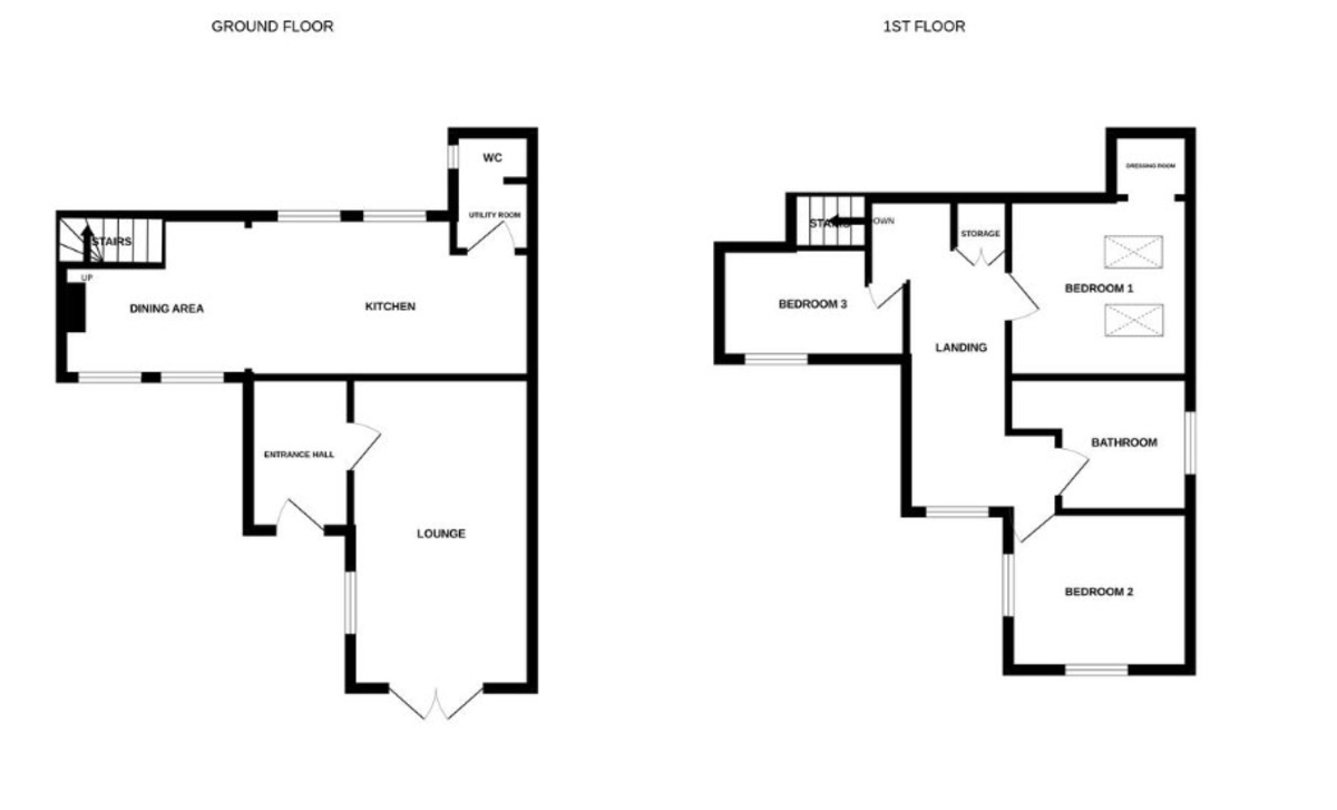
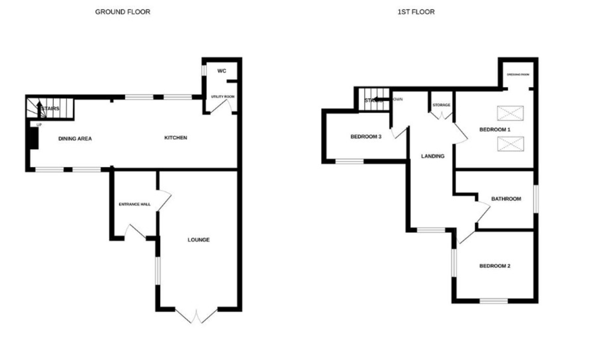
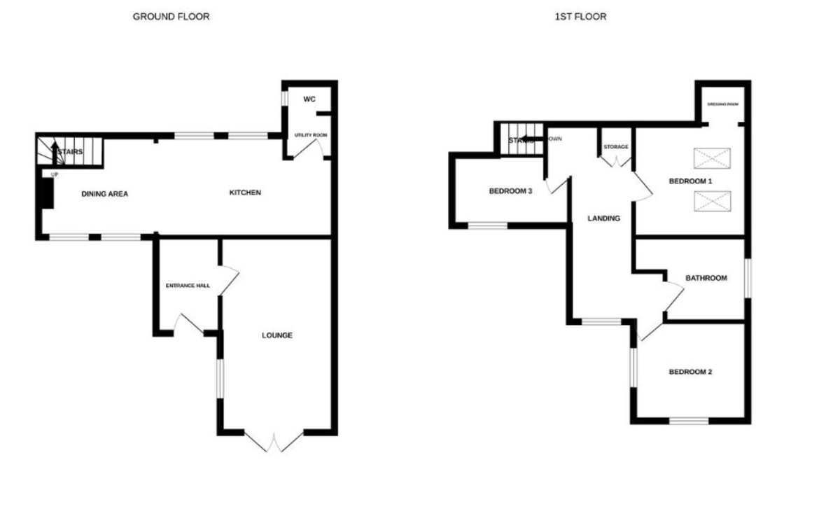
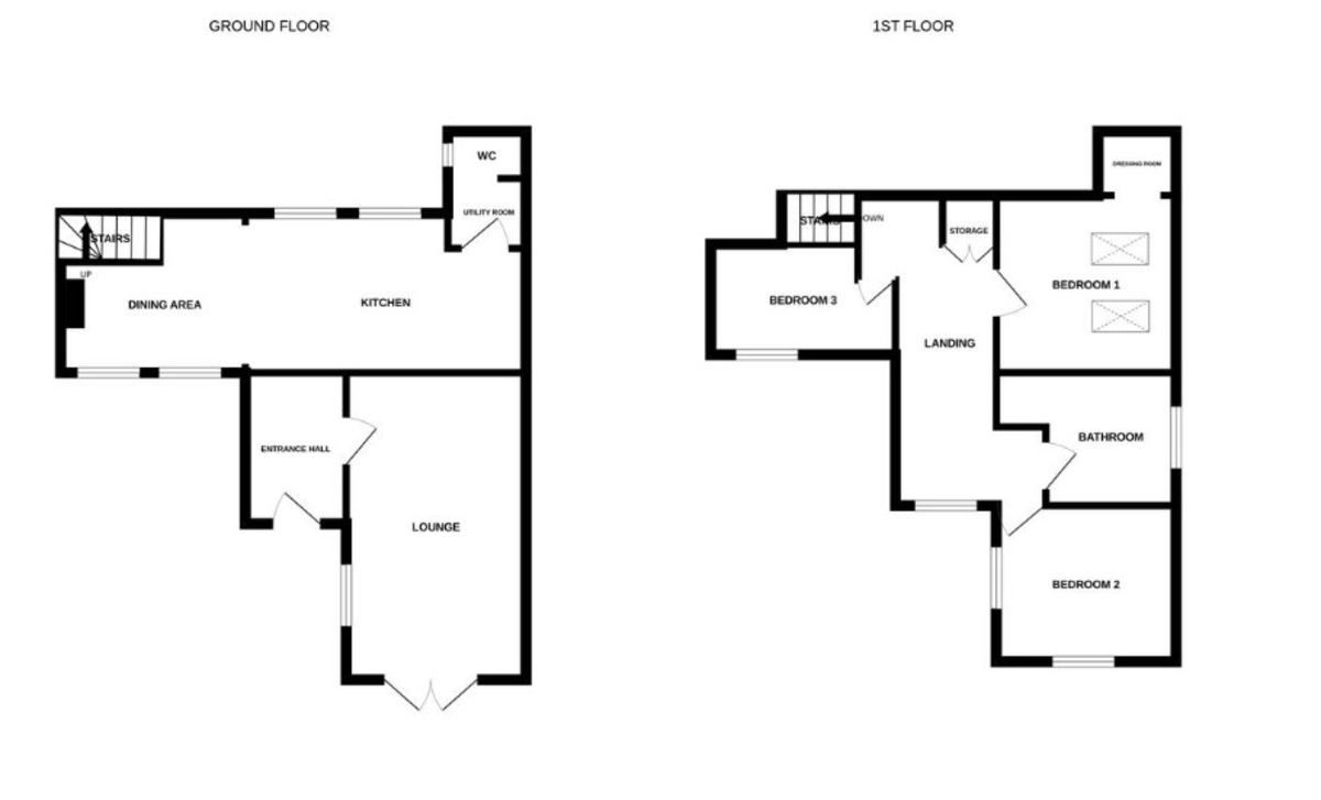
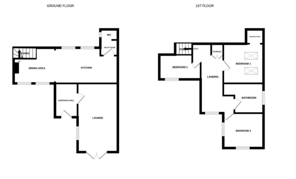
ENTRANCE HALL 6' 4" x 2' (1.93m x 0.61m) UPVC double-glazed door to front.
SITTING ROOM 17' 10" x 11' 10" (5.44m x 3.61m) UPVC double-glazed window to side; UPVC double-glazed French door to the front.
KITCHEN 16' 9 max" x 11 max' (5.11m x 3.35m) fitted with a range of base and wall units with square edge work tops over; inset Belfast style sink with mixer tap over; plumbing for automatic washing machine; space for tumble dryer; integrated bin drawer; built-in double oven in decorative brick housing; inset 4 ring electric hob with cooker hood over; built-in wine fridge; space for American style fridge freezer; modern vertical style radiator; two UPVC double-glazed windows to rear.
UTILITY ROOM 3' 9" x 6' 4" (1.14m x 1.93m) built-in base cupboard with square edge work surface over; tiled splashbacks; space for tumble dryer.
CLOAKROOM 5' 11" x 2' 8" (1.8m x 0.81m) fitted with low level WC, hand wash basin with mixer tap and storage cupboards below; UPVC double-glazed window to side.
DINING ROOM 12' 7 max" x 7' 10" (3.84m x 2.39m) two UPVC double-glazed windows to front; feature fireplace with inset wood burning stove; tiled hearth and decorative timber beam; under stairs storage area.
FIRST FLOOR LANDING 15' 2 max" x 7' 1 max" (4.62m x 2.16m) UPVC double-glazed window to front; built-in central heating boiler cupboard with wall mounted gas fired central heating boiler.
BEDROOM 1 12' 4" x 11' 5 max" (3.76m x 3.48m) two Velux style roof windows to side with fitted blackout blinds. Walk-in wardrobe 6'2" x 3'9" with fitted hanging rails.
BEDROOM 2 12' 1" x 11' 3" (3.68m x 3.43m) UPVC double-glazed window to front and side aspects.
BEDROOM 3 12' 8 max" x 11 max in bulk head over stairs' (3.86m x 3.35m) UPVC double-glazed window to front.
BATHROOM 11' 11 max insto shower cubicle" x 6' 2 max" (3.63m x 1.88m) fitted with a floating vanity hand wash basin with waterfall tap over and storage drawer below; oval shaped free standing bath with waterfall tap and hand shower attachment; low level WC; walk-in shower cubicle with tiled splashbacks, wall mounted shower unit with hand and soak attachments; UPVC double-glazed window to side, heated towel rail radiator.
OUTSIDE An enclosed garden area laid mainly to lawn with a paved patio area providing the ideal space for relaxing or entertaining with raised deck seating area, a further raised deck seating area; feature brick and flint wall, areas of hearth standing ideal for storage or play area.
COUNCIL TAX This property is currently listed as Band C.
VIEWINGS Strictly by appointment with the selling agents, BYCROFT ESTATE AGENTS, tel: 01493 844484.
DISCLAIMER While we endeavour to make our sales particulars fair, accurate and reliable, they are only a general guide to the property and, accordingly, if there is any point which is of particular importance to you, please contact the office and we will be pleased to check the position for you, especially if you are contemplating travelling some distance to view the property.
The approximate room sizes are only intended as general guidance. You must verify the dimensions carefully before ordering carpets or any built-in furniture.
Any references to garden sizes are approximate and subject to confirmation by a measured survey. A prospective purchaser is advised to arrange for their own land survey to be carried out.
Please note we have not tested the services or any of the equipment or appliances in this property, accordingly we strongly advise prospective buyers to commission their own survey or service reports before finalising their offer to purchase.
THESE PARTICULARS ARE ISSUED IN GOOD FAITH BUT DO NOT CONSTITUTE REPRESENTATIONS OF FACT OR FORM PART OF ANY OFFER OR CONTRACT. THE MATTERS REFERRED TO IN THESE PARTICULARS SHOULD BE INDEPENDENTLY VERIFIED BY PROSPECTIVE BUYERS.
Brochures
Energy Performance Certificate
