Description
*FREEHOLD BUNGALOW OPPORTUNITY* Bycroft Estate Agents are delighted to present this modern detached bungalow situated in a popular coastal location within the village of Hemsby. To be sold with the Freehold Tenure and incorporating a 33' static home within the sale with potential for holiday let accommodation. The property offers spacious 2 bedroom accommodation, formally 3 bedrooms with the former 3rd room incorporated into a large open plan kitchen//dining/ living space. Offering a distinct modern feel supported by a fitted family shower bathroom. To the outside of the property are gardens to the front and rear laid mainly to pave and shingle for low maintenance with 2 driveway areas.
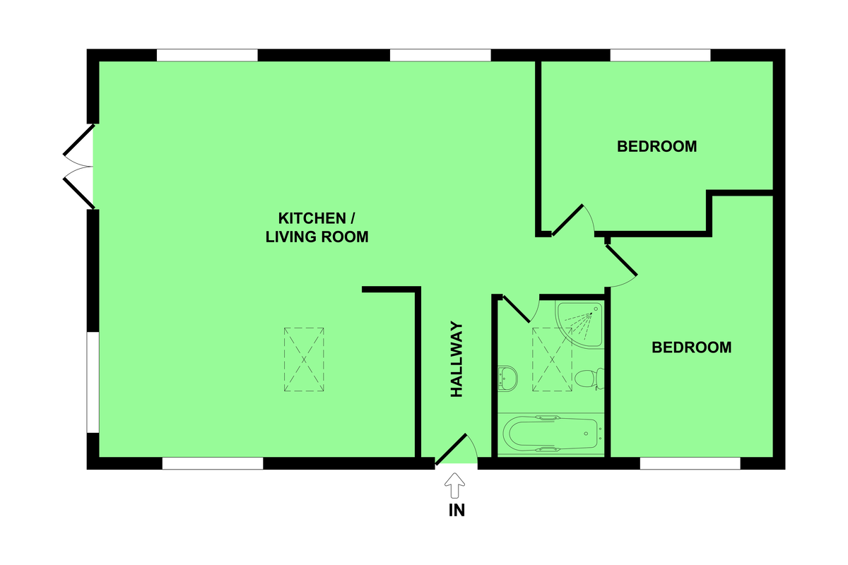
ENTRANCE HALL 12' 6 max" x 13 max' (3.81m x 3.96m) UPVC double-glazed door to front; loft access.
OPEN PLAN KITCHEN DINING LIVING SPACE 21' 9 max" x 21' 8 max" (6.63m x 6.6m) 2 UPVC double-glazed windows to rear; UPVC double-glazed French door to side; UPVC double-glazed window to front and side.
KITCHEN AREA fitted with a range of wall and base units with square edge work surfaces over; inset electric oven and 4 ring electric hob with cooker hood over; inset 1½ bowl sink stainless steel sink with mixer tap over; integrated dishwasher and washing machine; tiled splashbacks; Peninsula breakfast bar; space for fridge freezer and Velux roof light window.
BEDROOM 1 12' 6 max" x 10' 3 max " (3.81m x 3.12m) UPVC double-glazed window to rear.
BEDROOM 2 13 max' x 8' 8 max " (3.96m x 2.64m) UPVC double-glazed window to front.
BATHROOM 7' 7" x 5' 11" (2.31m x 1.8m) fitted with a white suite comprising of a low level wc, panel bath, pedestal hand wash basin with mixer tap over and corner quadrant shower cubicle, wall mounted shower unit, sliding shower screen doors; wall mounted electric heater; Velux roof light window.
OUTSIDE To the front of the property is a low maintenance garden laid mainly to shingle with sloped approach to the front door area, shingle driveway parking area giving access to a timber storage shed with power and light; further driveway parking area with side access to rear garden. To the rear of the property is an enclosed garden area laid mainly to pave and shingle for low maintenance providing an ideal space for relaxing and entertaining.
The side access gates and further accommodation provided by a static home with accommodation consisting of a;
Kitchen -16'11" max x 5'10" max - fitted with a range of wall and base units with roll edge work surfaces over; inset single drainer sink with mixer tap over; inset 4 ring LPG hob with stainless steel splashback with cooker hood over; built-in electric oven; integrated fridge and freezer; UPVC double-glazed door to side.
Lounge and Dining Area - 15'2" max x 12'8" max with UPVC double-glazed window to front and both side aspect.
Bedroom 1 -10' max' x 8' max with fitted wardrobe; UPVC double-glazed window to side.
Bedroom 2 - 7'4" x 6'9" with fitted wall units; UPVC double-glazed window to side.
Shower Room - 7'2" x 4'6" fitted with a white suite comprising of a low level wc, vanity hand wash basin with mixer tap over and storage cupboards below; walk-in shower cubicle with sliding shower screen door and wall mounted shower unit.
The static home benefits from its own LPG gas-fired central heating system.
AGENTS NOTE The vendor plans to sell the property including the Freehold Tenure of the land but would also consider selling as a Leasehold at the figure of £275,000.
COUNCIL TAX This property is currently listed as Band B.
VIEWINGS Strictly by appointment with the selling agents, BYCROFT ESTATE AGENTS, tel: 01493 844484.
DISCLAIMER While we endeavour to make our sales particulars fair, accurate and reliable, they are only a general guide to the property and, accordingly, if there is any point which is of particular importance to you, please contact the office and we will be pleased to check the position for you, especially if you are contemplating travelling some distance to view the property.
The approximate room sizes are only intended as general guidance. You must verify the dimensions carefully before ordering carpets or any built-in furniture.
Any references to garden sizes are approximate and subject to confirmation by a measured survey. A prospective purchaser is advised to arrange for their own land survey to be carried out.
Please note we have not tested the services or any of the equipment or appliances in this property, accordingly we strongly advise prospective buyers to commission their own survey or service reports before finalising their offer to purchase.
THESE PARTICULARS ARE ISSUED IN GOOD FAITH BUT DO NOT CONSTITUTE REPRESENTATIONS OF FACT OR FORM PART OF ANY OFFER OR CONTRACT. THE MATTERS REFERRED TO IN THESE PARTICULARS SHOULD BE INDEPENDENTLY VERIFIED BY PROSPECTIVE BUYERS.
Brochures
Energy Performance Certificate
