Description
GUIDE PRICE £600,000-£625,000 Bycroft Estate Agents are delighted to present this charming detached property situated in this non-estate location within the popular village of Ormesby St Michael. Offering 4 bedroom accommodation with flexible downstairs accommodation consisting of 4 separate reception room areas, fitted kitchen, spacious utility room, swimming pool room and pool room. Occupying a spacious plot the wrap around garden provides a choice of seating areas with panoramic field views to the rear of the property, driveway offers off road parking and gives access to the single garage and carport. Property benefits from UPVC double-glazing and oil-fired central heating. Internal inspection is highly recommended to fully appreciate the style and quality of the accommodation on offer.
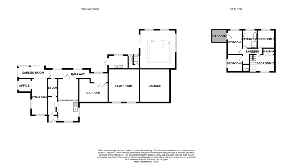
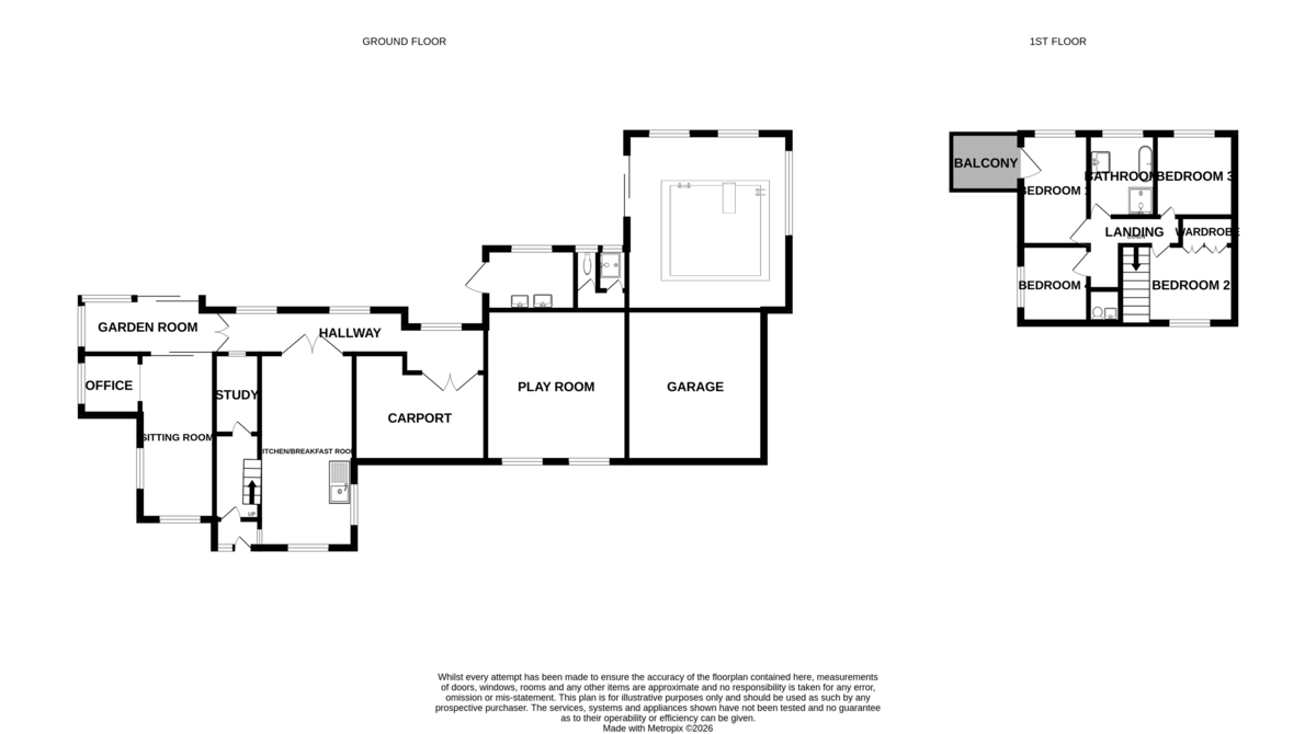
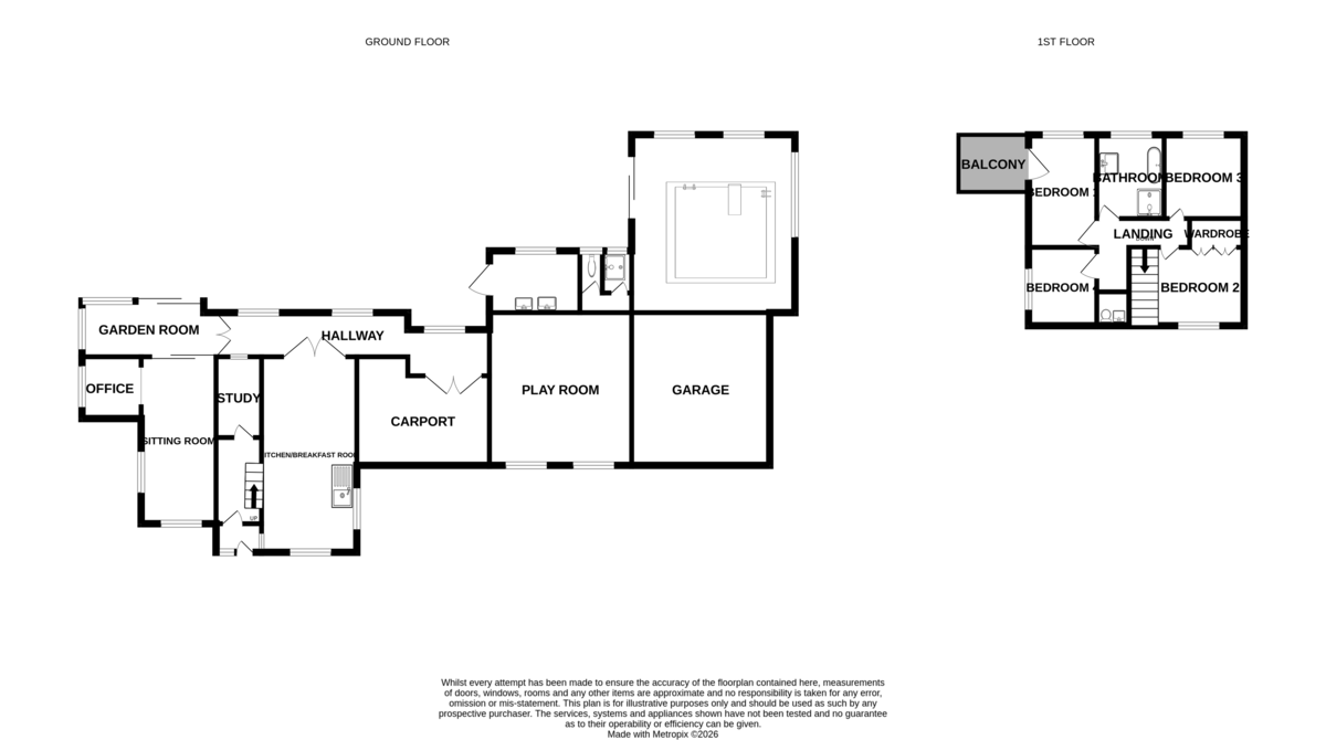
ENTRANCE PORCH 8' 2" x 4' 11 plus door recess" (2.49m x 1.5m) UPVC double-glazed door to side; UPVC double-glazed window to side with secondary glazing; port hole window to front.
HALLWAY 14' 3" x 7' 4 minus stairwell" (4.34m x 2.24m) stairs to first floor landing.
SITTING ROOM 25' 8" x 11' 10 max" (7.82m x 3.61m) UPVC double-glazed window to front and side; sliding patio doors to the garden room.
SNUG 11' 11" x 9' 10" (3.63m x 3m) UPVC double-glazed window to rear.
GARDEN ROOM 24' 1" x 9' 8" (7.34m x 2.95m) vaulted ceiling; UPVC double-glazed window to rear and side; UPVC sliding patio door.
REAR LOBBY 14' 11" x 8' (4.55m x 2.44m) UPVC double-glazed windows to front and rear; UPVC French door to front leading to carport area.
LOUNGE 22' 6" x 20' 5" (6.86m x 6.22m) UPVC double-glazed windows to front and side aspect; parque flooring. Personal door to garage.
KITCHEN 14' 1" x 10' 8" (4.29m x 3.25m) fitted with a range of wall and base units with square edge solid wood work surfaces over; inset 1½ single drainer sink with directional mixer tap over; integrated dishwasher; pull out larder cupboard; corner carousal storage unit; built-in combination ovens; integrated fridge; induction hob with cooker hood over; tiled splashbacks; UPVC double-glazed window to front and side.
UTILITY ROOM 12' 10" x 9' 9" (3.91m x 2.97m) fitted with a range of wall and base units with roll edge work surfaces over; twin bowl sink with mixer tap over; UPVC double-glazed door to rear; UPVC double-glazed window to rear and side; floor mounted oil-fired central heating boiler; built-in oven; plumbing for automatic washing machine.
INNER LOBBY 7' 3" x 2' 8" (2.21m x 0.81m)
CLOAKROOM 6' 8" x 2' 11" (2.03m x 0.89m) fitted with a white suite comprising of a vanity wash hand basin with mixer tap over and storage cupboard below; low level wc; tiled splashbacks; UPVC double-glazed window to rear.
SHOWER ROOM 6' 7" x 3' 10" (2.01m x 1.17m) walk-in shower cubicle with shower screen door and wall mounted shower unit with hand and soaker attachments; tiled shower enclosure; UPVC double-glazed window to rear.
SWIMMING POOL ROOM 27' 11" x 32' 9" (8.51m x 9.98m) with a shaped heated swimming pool; tiled flooring with hot tub area; UPVC windows to the front and side aspects; UPVC double-glazed sliding patio doors to rear.
DINING ROOM 11' 1" x 10' 9" (3.38m x 3.28m) UPVC double-glazed window to side.
STUDY 10' 9" x 7' 6" (3.28m x 2.29m) window to rear lobby.
FIRST FLOOR LANDING 11 max' x 7' 10 max minus stairwell" (3.35m x 2.39m) loft access.
BEDROOM 1 14' 9" x 11' 11" (4.5m x 3.63m) UPVC double-glazed window to rear; French doors leading onto a roof terrace with field views.
BEDROOM 2 12' 2" x 10' 8" (3.71m x 3.25m) UPVC double-glazed window to front; built-in wardrobes.
BEDROOM 3 11' 4" x 10' 10" (3.45m x 3.3m) UPVC double-glazed window to front and side aspects.
BEDROOM 4 11' 2" x 10' 11" (3.4m x 3.33m) UPVC double-glazed window to rear.
BATHROOM 10' 10" x 7' 4" (3.3m x 2.24m) fitted with a suite comprising of vanity wash hand basin with mixer tap over and storage cupboards below; double ended bath with mixer tap over; walk-in shower cubicle with sliding shower screen door and wall mounted electric shower unit; fully tiled walls; UPVC double-glazed window to rear.
SEPARATE WC 6 max' x 4' 2 max " (1.83m x 1.27m) fitted with a white suite comprising of vanity wash hand basin with mixer tap over and storage cupboards below; low level wc; tiled splashbacks; UPVC double-glazed window to front.
GARAGE 24' 8" x 22' 2" (7.52m x 6.76m) doors are currently covered over; UPVC double glazed window to front; personal door; power and light.
OUTSIDE To the front of the property is a driveway area providing ample off road parking for the property giving access to the double garage and car port areas, mainly laid to lawn with established tree and shrub borders. The garden wraps around to the side area providing field views of the adjacent farm land, side access gate. Rear enclosed garden laid mainly to lawn with 3 separate paved patio areas and raised deck seating area giving a choice of areas for relaxing and entertaining, well stocked shrub borders and low maintenance shingle pathways.
COUNCIL TAX This property is currently listed as Band D.
VIEWINGS Strictly by appointment with the selling agents, BYCROFT ESTATE AGENTS, tel: 01493 844484.
DISCLAIMER While we endeavour to make our sales particulars fair, accurate and reliable, they are only a general guide to the property and, accordingly, if there is any point which is of particular importance to you, please contact the office and we will be pleased to check the position for you, especially if you are contemplating travelling some distance to view the property.
The approximate room sizes are only intended as general guidance. You must verify the dimensions carefully before ordering carpets or any built-in furniture.
Any references to garden sizes are approximate and subject to confirmation by a measured survey. A prospective purchaser is advised to arrange for their own land survey to be carried out.
Please note we have not tested the services or any of the equipment or appliances in this property, accordingly we strongly advise prospective buyers to commission their own survey or service reports before finalising their offer to purchase.
THESE PARTICULARS ARE ISSUED IN GOOD FAITH BUT DO NOT CONSTITUTE REPRESENTATIONS OF FACT OR FORM PART OF ANY OFFER OR CONTRACT. THE MATTERS REFERRED TO IN THESE PARTICULARS SHOULD BE INDEPENDENTLY VERIFIED BY PROSPECTIVE BUYERS.
Brochures
Energy Performance Certificate
