Description
*IMMACUTELY PRESENTED 2 BEDROOM MID TERRACE* Bycroft Estate Agents are delighted to present this 2 bedroom mid terrace just off the High Street in Caister. Accommodation comprising entrance porch; two reception rooms; kitchen; utility room; downstairs bathroom; two bedrooms, small courtyard garden..If you are looking for your first home this could be the perfect home, within walking distance to the local shops, supermarkets, pubs and the beach!
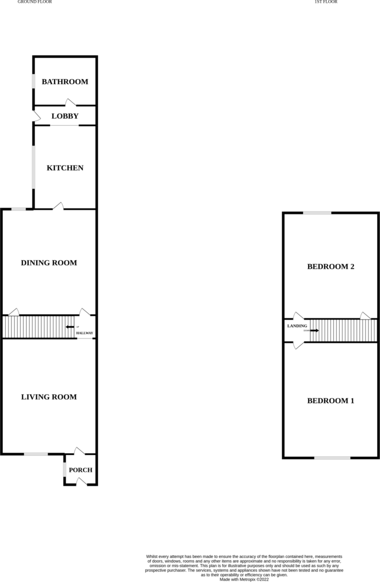
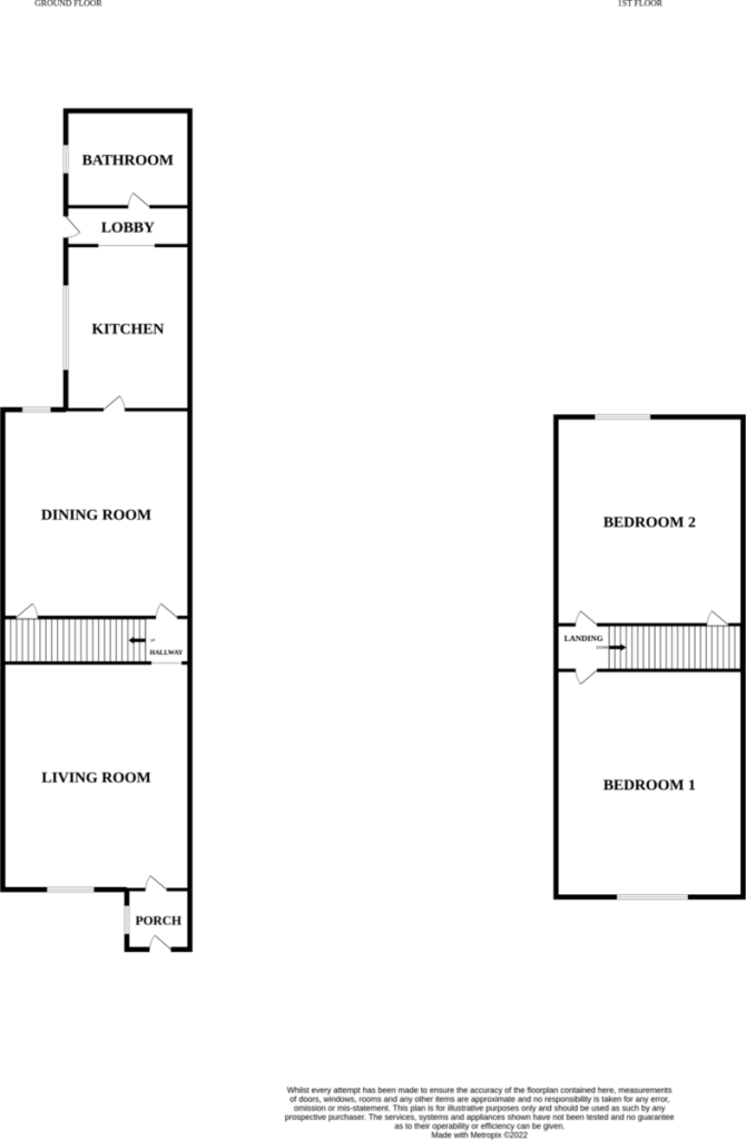
PORCH ENTRANCE leading into reception room 1.
RECEPTION 11' x 10' (3.35m x 3.05m) stairs access;
RECEPTION ROOM 2 11' x 11' (3.35m x 3.35m) understairs cupboard; UPVC window to the rear; radiator; cupboard housing boiler; access to rear. Access to:
KITCHEN 9' 0" x 5' 5" (2.74m x 1.65m) fitted floor and wall units; space for freestanding cooker, slim line dishwasher; UPVC window; radiator.
UTILITY space for under counter fridge; wall unit above with countertop; UPVC door to rear garden.
FAMILY BATHROOM 6' 0" x 5' 0" (1.83m x 1.52m) off utility space; UPVC window to side; towel radiator; shower over bath; wc; wash basin; space and plumbing for washing machine.
FIRST FLOOR
BEDROOM 1 12' x 11' (3.66m x 3.35m) currently divided by a stud wall into 2 rooms; UPVC window to front; radiator.
BEDROOM 2 12' x 11' (3.66m x 3.35m) UPVC window to rear; radiator; fitted wardrobes.
OUTSIDE To the rear of the property is a decked area leading to artificial grass area; rear gate to rear path.
COUNCIL TAX This property is currently listed as Band A.
VIEWINGS Strictly by appointment with the selling agents, BYCROFT ESTATE AGENTS, tel: 01493 844484.
DISCLAIMER While we endeavour to make our sales particulars fair, accurate and reliable, they are only a general guide to the property and, accordingly, if there is any point which is of particular importance to you, please contact the office and we will be pleased to check the position for you, especially if you are contemplating travelling some distance to view the property.
The approximate room sizes are only intended as general guidance. You must verify the dimensions carefully before ordering carpets or any built-in furniture.
Any references to garden sizes are approximate and subject to confirmation by a measured survey. A prospective purchaser is advised to arrange for their own land survey to be carried out.
Please note we have not tested the services or any of the equipment or appliances in this property, accordingly we strongly advise prospective buyers to commission their own survey or service reports before finalising their offer to purchase.
THESE PARTICULARS ARE ISSUED IN GOOD FAITH BUT DO NOT CONSTITUTE REPRESENTATIONS OF FACT OR FORM PART OF ANY OFFER OR CONTRACT. THE MATTERS REFERRED TO IN THESE PARTICULARS SHOULD BE INDEPENDENTLY VERIFIED BY PROSPECTIVE BUYERS.
Brochures
Energy Performance Certificate
