Description
*SPACIOUS FAMILY HOME* Bycroft Estate Agents are delighted to present this charming, detached property situated in a non-estate location within the popular coastal village of Hemsby. Offering 4 bedroom accommodation with family bathroom, a welcoming entrance hallway, spacious sitting room, kitchen, utility room, dining room and further entrance area. To the outside of the property are gardens to the front and rear, the front laid mainly to lawn and driveway area providing ample parking for the property and giving access to the single garage. To the rear is an enclosed garden providing the ideal space for relaxing or entertaining. Internal inspection is highly recommended to fully appreciate the style and quality of the accommodation on offer.
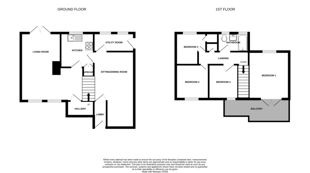
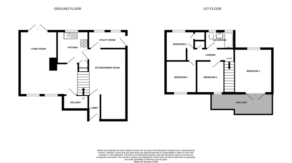
ENTRANCE HALLWAY 6' 1" x 4 max' (1.85m x 1.22m) UPVC double-glazed window to front; UPVC double-glazed door to side with stained glass window.
SITTING ROOM 17' 3 max" x 16' 10 max" (5.26m x 5.13m) L-shaped room with 2 UPVC double-glazed windows to the front aspect; UPVC French door to rear.
KITCHEN 8' 10" x 8' 6" (2.69m x 2.59m) fitted with a range of base and wall units with square edge work surfaces over; inset 1½ bowl single drainer sink with mixer tap over; electric cooker point with space for electric cooker; space for fridge freezer; tiled splash backs; UPVC double-glazed window to rear; built-in under stairs cupboard.
UTILITY ROOM 11' 2" x 4' 9" (3.4m x 1.45m) plumbing for automatic washing machine; floor mounted oil-fired central heating boiler; 2 UPVC double-glazed windows to rear and side.
DINING ROOM 17' 8 max" x 11' 2" (5.38m x 3.4m) UPVC double-glazed window to front and side.
2ND ENTRANCE HALLWAY UPVC double-glazed window to front.
FIRST FLOOR LANDING 14' 6" x 2' 8" (4.42m x 0.81m) loft access; built-in airing cupboard.
BEDROOM 1 11' 8" x 11' 1" (3.56m x 3.38m) UPVC double-glazed window to rear; UPVC double-glazed French door to front leading onto a roof terrace balcony.
BEDROOM 2 8' 7 max" x 8' 2 max" (2.62m x 2.49m) built-in cupboard; UPVC double-glazed window to rear.
BEDROOM 3 8' 2" x 8' (2.49m x 2.44m) UPVC double-glazed window to front.
BEDROOM 4 8' 10 max" x 8 ' (2.69m x 2.44m) UPVC double-glazed window to front.
BATHROOM 8' 8 max" x 5' 5" (2.64m x 1.65m) fitted with a white suite comprising of a low level wc, vanity hand wash basin with mixer tap over and storage cupboards below, panel bath with mixer tap and wall mounted shower unit over; shower screen; fully tiled walls; electric bathroom mirror; 2 UPVC double-glazed windows to rear; heated towel rail radiator.
OUTSIDE To the front of the property is a garden area laid mainly to lawn with established shrubs and hedging, a driveway area provides ample off road parking for the property and gives access to the single garage, side access gate, low maintenance shingled borders and further area of hard standing with gates access to front. To the rear of the property is an enclosed garden laid mainly to lawn with a paved patio seating area providing the ideal space for relaxing or entertaining, personal door to single garage, covered walkway to side, further side access gate, outside tap, green house and timber shed.
COUNCIL TAX This property is currently listed as Band D.
VIEWINGS Strictly by appointment with the selling agents, BYCROFT ESTATE AGENTS, tel: 01493 844484.
DISCLAIMER While we endeavour to make our sales particulars fair, accurate and reliable, they are only a general guide to the property and, accordingly, if there is any point which is of particular importance to you, please contact the office and we will be pleased to check the position for you, especially if you are contemplating travelling some distance to view the property.
The approximate room sizes are only intended as general guidance. You must verify the dimensions carefully before ordering carpets or any built-in furniture.
Any references to garden sizes are approximate and subject to confirmation by a measured survey. A prospective purchaser is advised to arrange for their own land survey to be carried out.
Please note we have not tested the services or any of the equipment or appliances in this property, accordingly we strongly advise prospective buyers to commission their own survey or service reports before finalising their offer to purchase.
THESE PARTICULARS ARE ISSUED IN GOOD FAITH BUT DO NOT CONSTITUTE REPRESENTATIONS OF FACT OR FORM PART OF ANY OFFER OR CONTRACT. THE MATTERS REFERRED TO IN THESE PARTICULARS SHOULD BE INDEPENDENTLY VERIFIED BY PROSPECTIVE BUYERS.
Brochures
Energy Performance Certificate
