Description
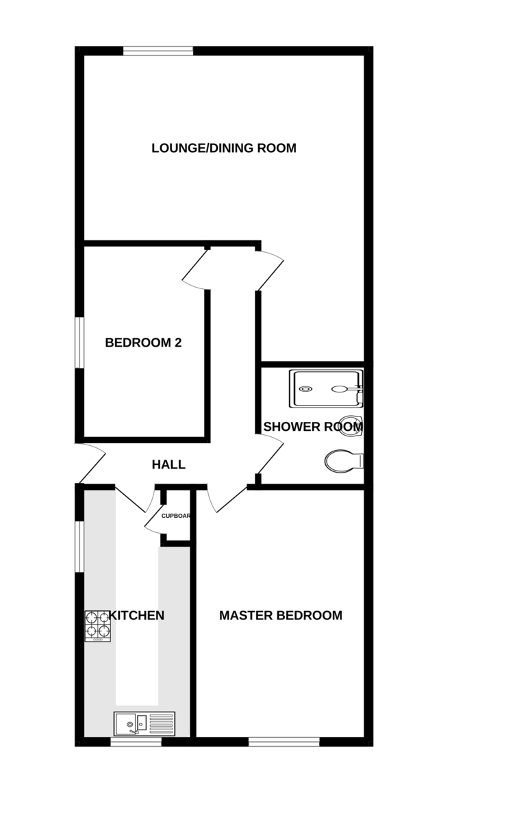
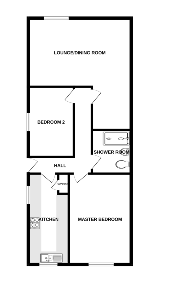
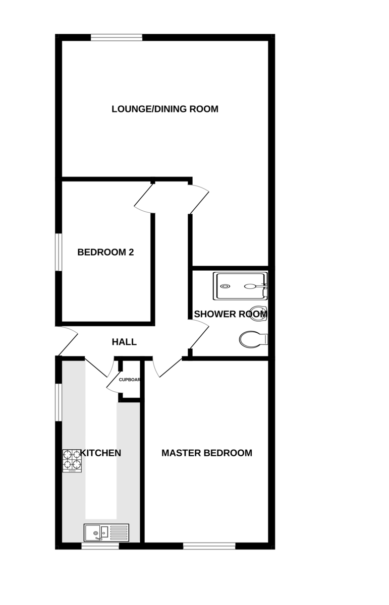
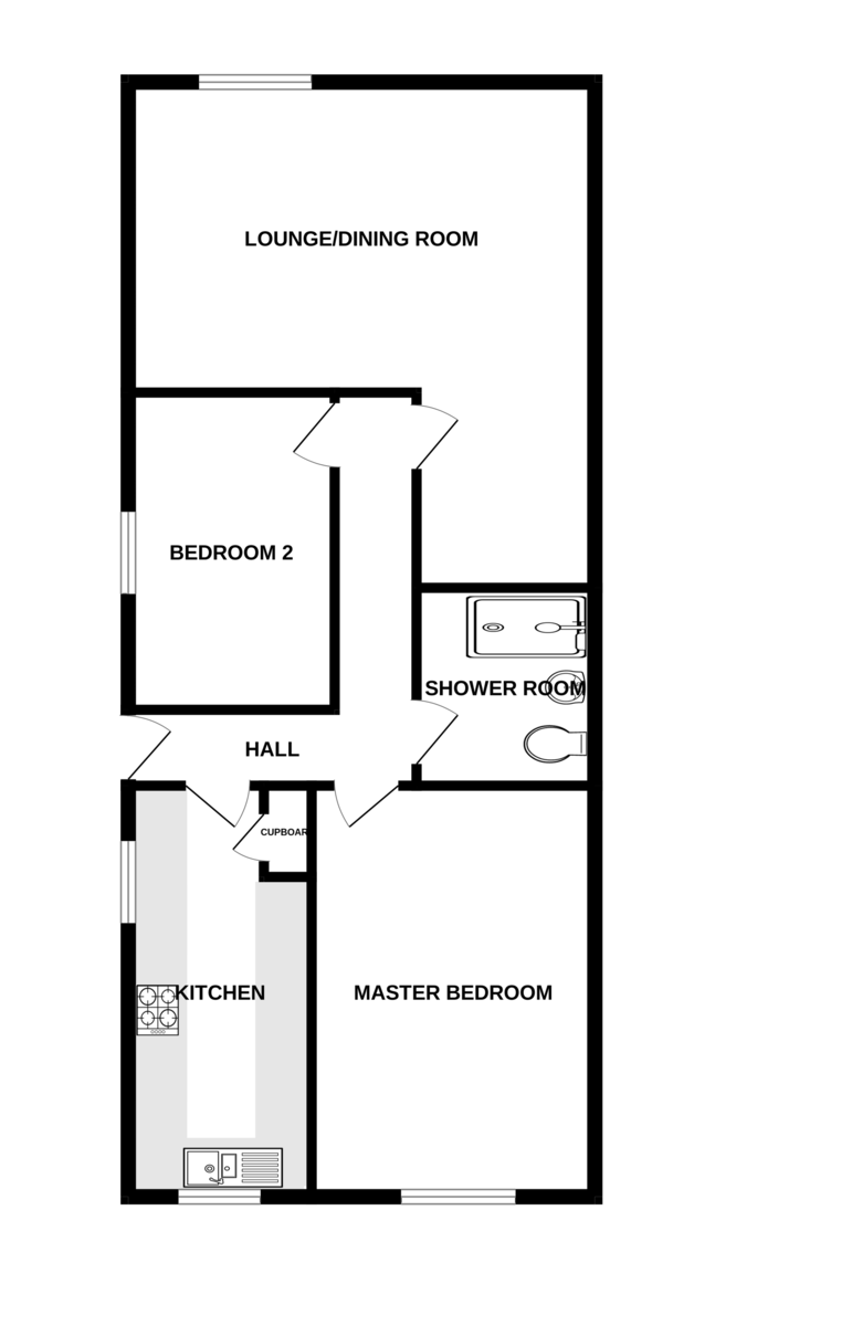
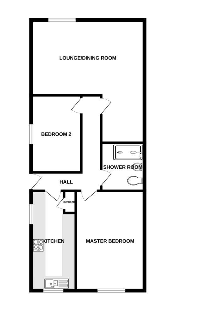
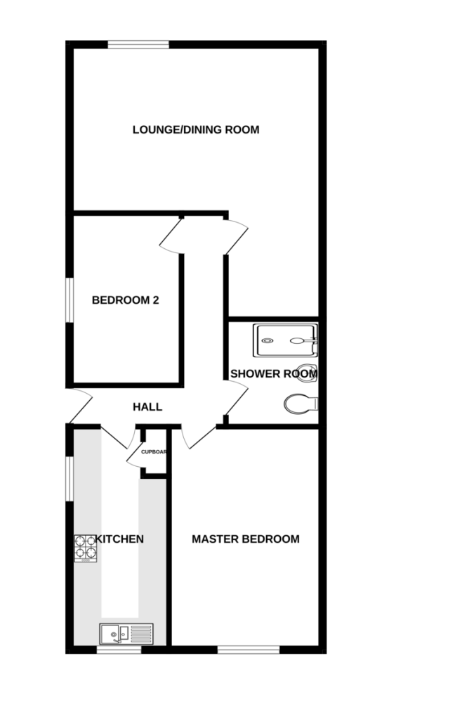
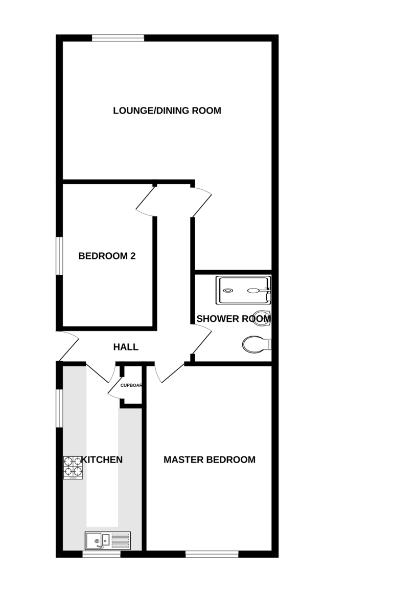
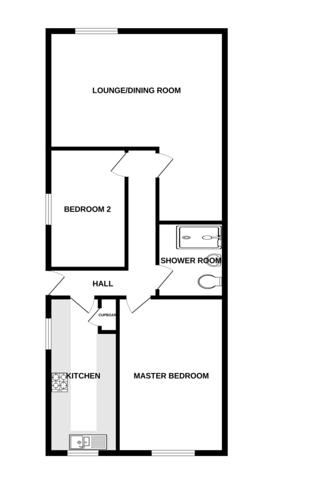
Bycroft Estate Agents are delighted to offer this extended, very well presented CHAIN FREE two bedroom semi detached bungalow situated in this quiet cul de sac position in the popular village of Hopton. The accommodation comprises L-shaped entrance hall, kitchen, lounge/diner, two double bedrooms, shower room, brick weaved front and side driveway, enclosed rear garden, garage, summer house, gas central heating and double glazed windows.
ENTRANCE HALL upvc side door; access to roof space; radiator.
KITCHEN 15' 11" x 7' 0" (4.85m x 2.13m) large u-shaped solid wood worktop with a good range of base cupboards and drawers under; including Eco free standing oven and four ring gas hob; ceramic butler sink with mixer tap; space and plumbing for washing machine and tumble dryer; space for upright fridge freezer; light and extractor; windows to front and side aspect; shelved pantry cupboard; further cupboard housing the recently installed (2025) Ideal gas boiler; down lights.
DINING ROOM 7' 6" x 6' 9" (2.29m x 2.06m) modern upright radiator; large opening through to:
LOUNGE 17' 8" x 11' 10" (5.38m x 3.61m) French doors and window to rear aspect; radiator.
BEDROOM 1 15' 10" x 10' 10" (4.83m x 3.3m) window to front aspect; radiator; wall lights.
BEDROOM 2 12' 3" x 8' 1" (3.73m x 2.46m) side window; radiator.
SHOWER ROOM walk in shower with mains fittings and two shower heads; pedestal wash hand basin with mixer tap; wc with push button cistern; chrome heated towel rail; down lights; extractor fan.
OUTSIDE To the front and side of the property is a good sized brick weaved driveway, space for several cars standing. To the rear there is an enclosed good sized rear garden, large paved patio, low brick walling, lawn, raised decked patio with hot tub, steel storage shed, outside lighting and canopy area.
SINGLE DETACHED GARAGE 19' 1" x 7' 11" (5.82m x 2.41m) roller door; side personal door; light and power; window looking into summer house.
SUMMER HOUSE 10' 3" x 7' 4" (3.12m x 2.24m) stable door; access from the garden; windows overlooking the garden.
COUNCIL TAX This property is currently listed as Band B.
VIEWINGS Strictly by appointment with the selling agents BYCROFT ESTATE AGENTS. Tel. 01493 664000.
DISCLAIMER While we endeavour to make our sales particulars fair, accurate and reliable, they are only a general guide to the property and, accordingly, if there is any point which is of particular importance to you, please contact the office and we will be pleased to check the position for you, especially if you are contemplating travelling some distance to view the property.
The approximate room sizes are only intended as general guidance. You must verify the dimensions carefully before ordering carpets or any built-in furniture.
Any references to garden sizes are approximate and subject to confirmation by a measured survey. A prospective purchaser is advised to arrange for their own land survey to be carried out.
Please note we have not tested the services or any of the equipment or appliances in this property, accordingly we strongly advise prospective buyers to commission their own survey or service reports before finalizing their offer to purchase.
THESE PARTICULARS ARE ISSUED IN GOOD FAITH BUT DO NOT CONSTITUTE REPRESENTATIONS OF FACT OR FORM PART OF ANY OFFER OR CONTRACT. THE MATTERS REFERRED TO IN THESE PARTICULARS SHOULD BE INDEPENDENTLY VERIFIED BY PROSPECTIVE BUYERS.
Brochures
Energy Performance Certificate
