Description
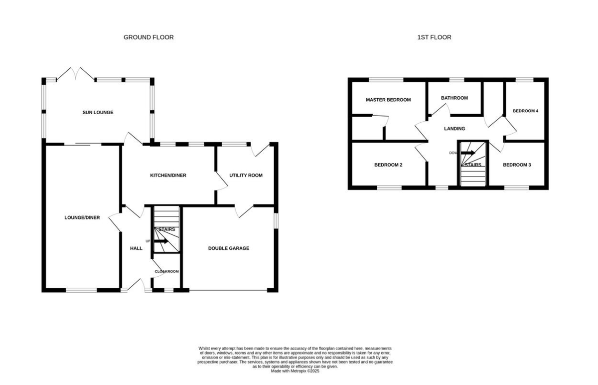
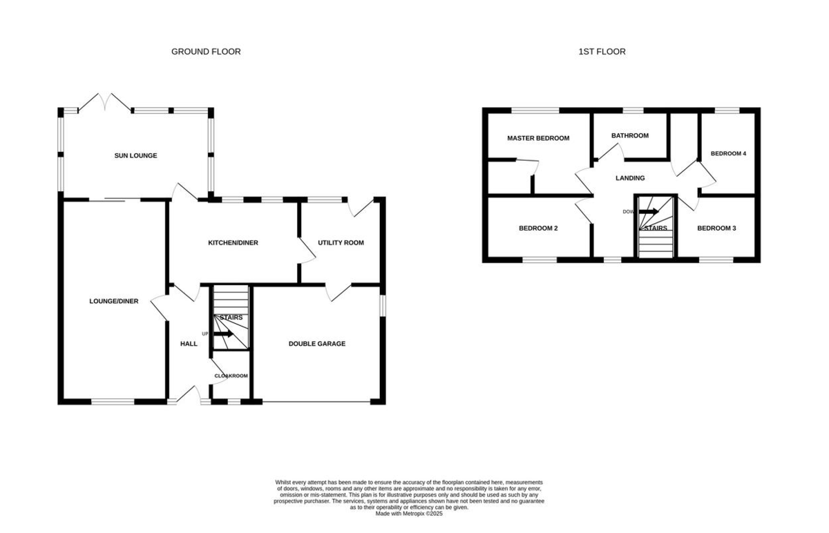
GUIDE PRICE £400,000-£425,000 Bycroft Estate Agents are delighted to present this spacious, well-presented 4 bedroom, detached family residence. Situated in this popular, non-estate village location in Burgh Castle. The accommodation comprises of spacious entrance hall, cloakroom, lounge, conservatory, kitchen-diner, utility room, landing, 4 bedrooms and potential en-suite/dressing room, family bathroom. The property benefits from driveway, front garden, good size mature rear garden and double-glazed windows.
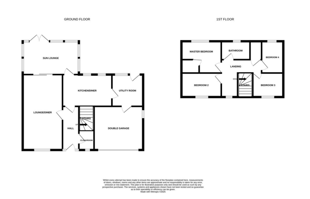
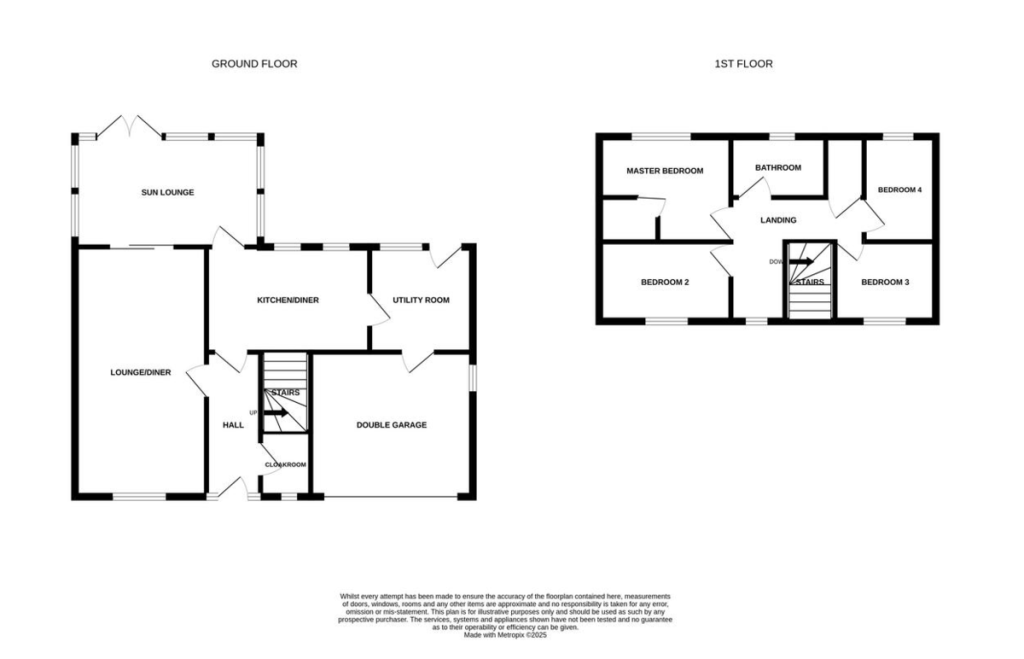
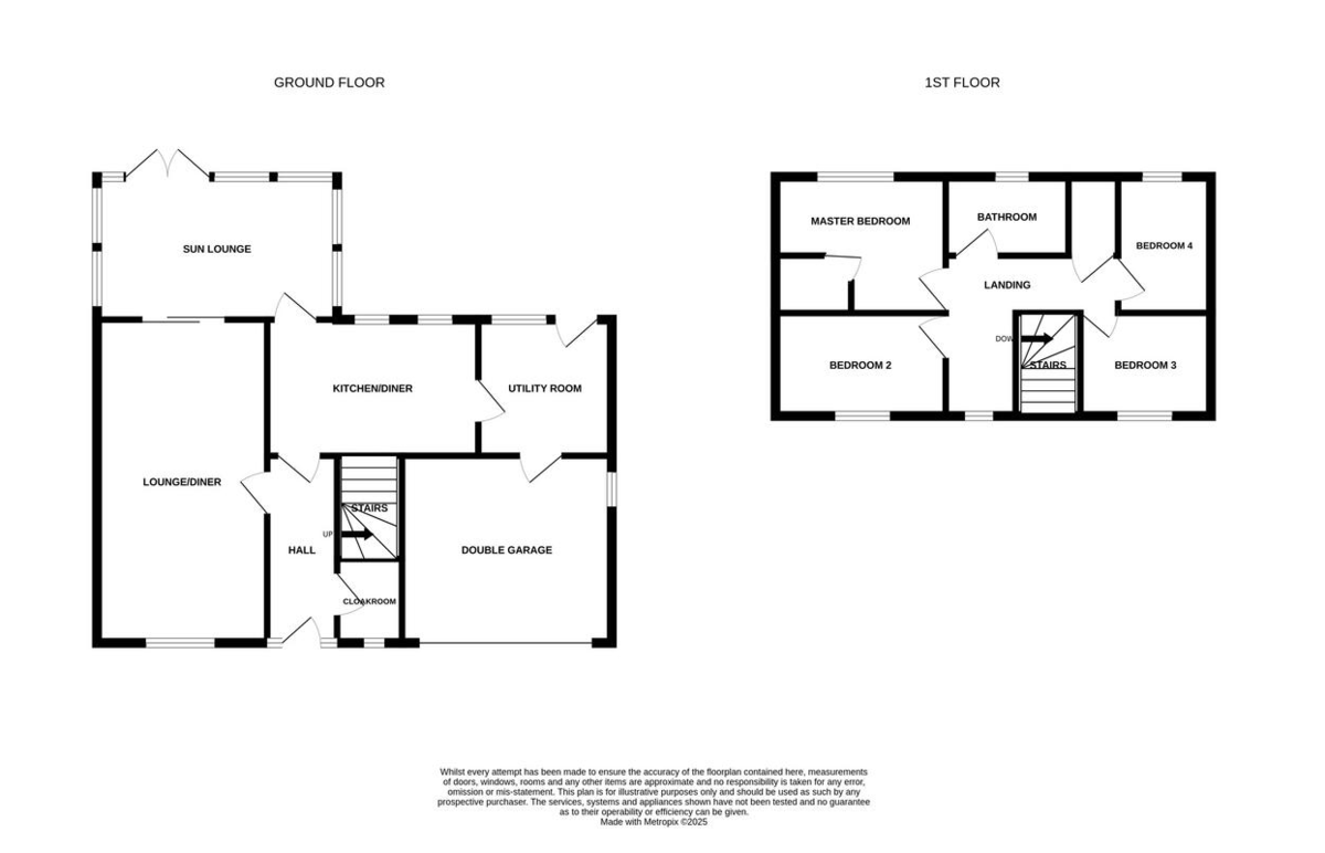
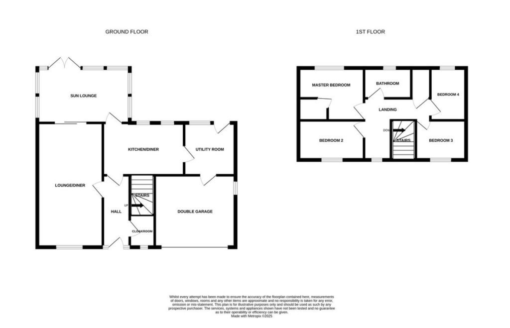
ENTRANCE UPVC double-glazed front door flanked by side panels; spacious entrance hall; stairs to first floor; radiator.
CLOAKROOM wc; wash hand basin with mixer tap and cupboard under; frosted double-glazed window; radiator.
LOUNGE 27' 4" x 11' 10" (8.33m x 3.61m) window to front aspect; gas fireplace; 2 radiators; sliding double-glazed patio doors to Conservatory.
KITCHEN DINER 16' 3" x 10' (4.95m x 3.05m) fitted with worktops, base, cupboards and drawers; built-in Whirlpool oven; 4 ring hob;1 bowl sink with mixer tap; space and plumbing for dishwasher; wall lights; 2 windows to rear aspect; downlights; radiator. Doors into;
CONSERVATORY 15' 9" x 11' (4.8m x 3.35m) brick base; double-glazed units overlooking the rear garden; radiator; wall light; door into rear.
UTILITY ROOM 10' x 8' 4" (3.05m x 2.54m) base cupboards with worktops; wall units; space and plumbing for washing machine and tumble dryer; Butler sink; window and door to rear garden.
FIRST FLOOR LANDING access to roof space; radiator; window to front aspect; large walk-in airing cupboard.
BEDROOM 1 16 max' 0" x 11' 11 incl potential en-suite" (4.88m x 3.63m) plumbing for shower, wc and wash hand basin; window to rear aspect; radiator.
BEDROOM 2 11' 11" x 10' 8" (3.63m x 3.25m) window to front aspect; radiator.
BEDROOM 3 11' 6" x 9' 3" (3.51m x 2.82m) window to front aspect; radiator; access to eaves storage space.
BEDROOM 4 10' 6" x 11' 2" (3.2m x 3.4m) part sloping ceiling; window to rear aspect; radiator.
BATHROOM large bath, mixer tap; pedestal wash hand basin; wc; shower cubicle with electric shower fittings; 2 frosted double-glazed windows; tiled walls; radiator.
OUTSIDE To the front of the property is a driveway leading to integral garage, Conifer screen with lawn area, shrubs and plants. To the rear is a good sized, enclosed garden with lawn, borders with shrubs, plants and patio areas.
DOUBLE GARAGE 17' 4" x 14' 4" (5.28m x 4.37m) up and over door; light and power; side window.
COUNCIL TAX This property is currently listed as Band E.
VIEWINGS Strictly by appointment with the selling agents, BYCROFT ESTATE AGENTS, tel: 01493 664000.
DISCLAIMER While we endeavour to make our sales particulars fair, accurate and reliable, they are only a general guide to the property and, accordingly, if there is any point which is of particular importance to you, please contact the office and we will be pleased to check the position for you, especially if you are contemplating travelling some distance to view the property.
The approximate room sizes are only intended as general guidance. You must verify the dimensions carefully before ordering carpets or any built-in furniture.
Any references to garden sizes are approximate and subject to confirmation by a measured survey. A prospective purchaser is advised to arrange for their own land survey to be carried out.
Please note we have not tested the services or any of the equipment or appliances in this property, accordingly we strongly advise prospective buyers to commission their own survey or service reports before finalising their offer to purchase.
THESE PARTICULARS ARE ISSUED IN GOOD FAITH BUT DO NOT CONSTITUTE REPRESENTATIONS OF FACT OR FORM PART OF ANY OFFER OR CONTRACT. THE MATTERS REFERRED TO IN THESE PARTICULARS SHOULD BE INDEPENDENTLY VERIFIED BY PROSPECTIVE BUYERS.
Brochures
Energy Performance Certificate
