Description
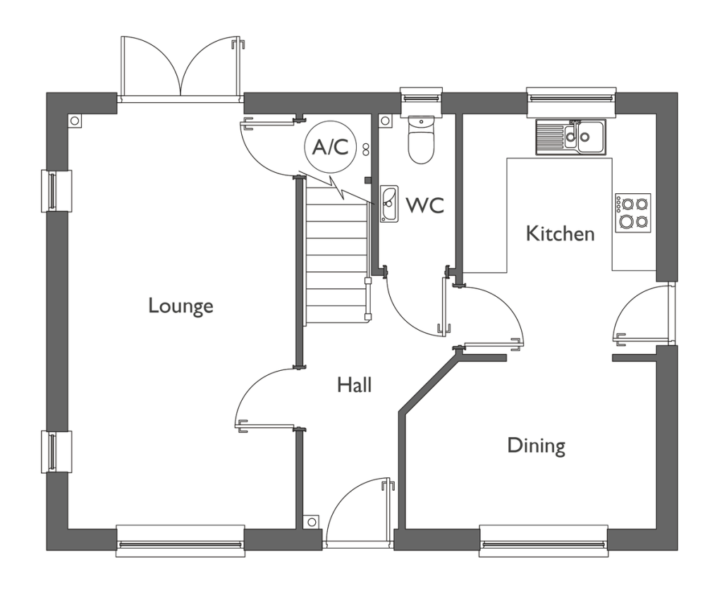
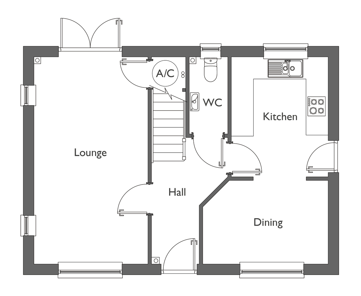
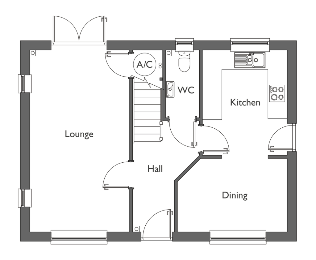
VIEWINGS AVAILABLE NOW- Plot 7 at ORCHARD MEADOW is the ideal next step up the property ladder, this three bedroom detached house offers 1060 sq ft of accommodation comprising of a large living room which runs the full length of the home creating natural light from the front, side and rear double French doors leading to a west facing garden. A spacious hallway with access to the living room, downstairs WC and the kitchen which flows into the separate dining area. Upstairs is the master bedroom with en suite shower room, family bathroom and a further two double bedrooms. A great home for a growing family with driveway and single garage with power and EV charger unit.
Scratby is a small village on the East coast of Norfolk and is most well known for its sandy beach and low cliffs. The village has its own convenience shop, garden centre, several tea shops and seasonal cafes. The Norfolk broads are also closeby with easy access to Great Yarmouth (6 miles) and Norwich (20 miles).
ENTRANCE HALL
CLOAKROOM
LOUNGE 19' 4" x 10' 8" (5.89m x 3.25m)
KITCHEN 11' 2" x 9' (3.4m x 2.74m)
DINING AREA 11' 8" x 7' 9" (3.56m x 2.36m)
FIRST FLOOR LANDING
BEDROOM 1 15' 1" x 10' 9" (4.6m x 3.28m)
EN SUITE
BEDROOM 2 9' 10" x 9' 8" (3m x 2.95m)
BEDROOM 3 9' 5" x 8' 10" (2.87m x 2.69m)
BATHROOM
OUTSIDE Gardens to front and West facing garden to rear. Garage. EV Charging Unit.
COUNCIL TAX The council tax banding is to be confirmed.
AGENTS NOTE The photographs used are for indicative purposes only and have been taken from a previous plot on a different site.
VIEWING Strictly by appointment with the selling agents BYCROFT RESIDENTIAL. Tel. 01493 844484.
DISCLAIMER While we endeavour to make our sales particulars fair, accurate and reliable, they are only a general guide to the property and, accordingly, if there is any point which is of particular importance to you, please contact the office and we will be pleased to check the position for you, especially if you are contemplating travelling some distance to view the property.
The approximate room sizes are only intended as general guidance. You must verify the dimensions carefully before ordering carpets or any built-in furniture.
Any references to garden sizes are approximate and subject to confirmation by a measured survey. A prospective purchaser is advised to arrange for their own land survey to be carried out.
Please note we have not tested the services or any of the equipment or appliances in this property, accordingly we strongly advise prospective buyers to commission their own survey or service reports before finalizing their offer to purchase.
THESE PARTICULARS ARE ISSUED IN GOOD FAITH BUT DO NOT CONSTITUTE REPRESENTATIONS OF FACT OR FORM PART OF ANY OFFER OR CONTRACT. THE MATTERS REFERRED TO IN THESE PARTICULARS SHOULD BE INDEPENDENTLY VERIFIED BY PROSPECTIVE BUYERS.
