Description
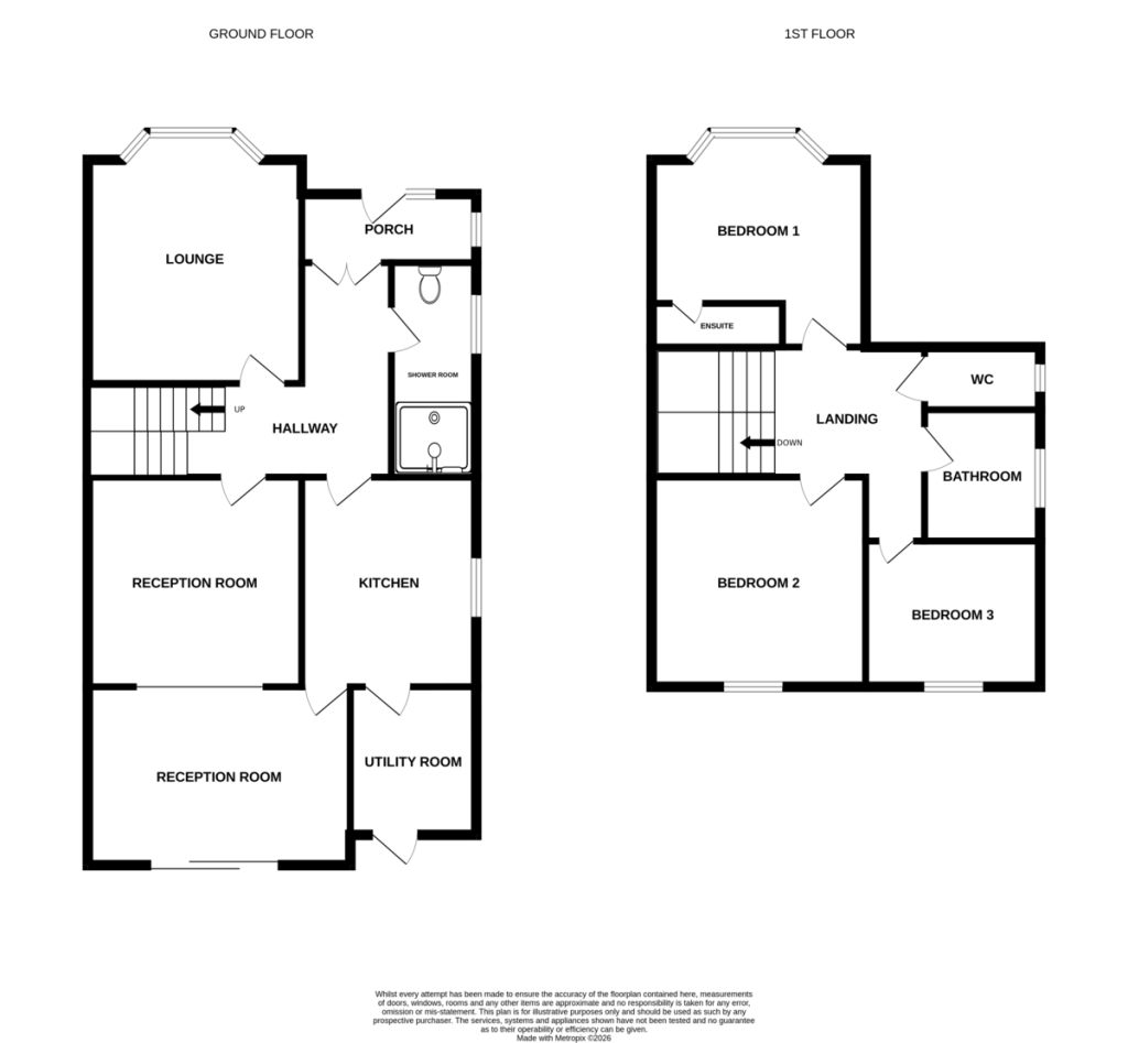
*IMMACUTELY PRESENTED FAMILY HOME* Bycroft Estate Agents are delighted to present this 3 bedroom, semi-detached house located on a very popular street in North Great Yarmouth. The property offers 3 separate reception rooms, downstairs shower room, modern kitchen, separate utility room and upstairs offers 3 double-bedrooms, separate bathroom, separate wc and en-suite shower. The property benefits from a single garage and driveway for at least 2 vehicles, enclosed low maintenance, west-facing rear garden.
PORCH UPVC front door and side panel; UPVC window to side with double internal doors into hallway.
DOWNSTAIRS SHOWER ROOM low level wc; wash basin; walk-in electric shower, UPVC window; radiator.
KITCHEN 12' x 10' (3.66m x 3.05m) range of white gloss base units; pantry style cupboard; integrated double oven; electric hob; large UPVC window to side aspect; radiator.
UTILITY ROOM houses the gas central heating boiler; UPVC window to side; UPVC double door to rear; space for washing machine, tumble dryer and a slim line dishwasher (still to install).
RECEPTION ROOM 1 12' x 12' (3.66m x 3.66m) UPVC bay window to front aspect; radiator; feature fireplace.
RECEPTION ROOM 2 12' x 11' (3.66m x 3.35m) feature fireplace; opens to Reception room 3.
RECEPTION ROOM 3 14' x 10' (4.27m x 3.05m) large sliding UPVC patio doors to rear garden; radiator.
FIRST FLOOR
BEDROOM 1 12' 0" x 11' 0" (3.66m x 3.35m) spacious double-bedroom; bay UPVC window to front aspect; radiator; en-suite.
BEDROOM 2 12' x 11' (3.66m x 3.35m) large UPVC window to rear aspect; radiator.
BEDROOM 3 10' x 8' (3.05m x 2.44m) UPVC window to rear aspect overlooking the garden; radiator.
BATHROOM comprising of a jacuzzi bath with hand held shower; wash basin; UPVC window; fully tiled.
SEPARATE WC UPVC window; radiator.
GARAGE brick built; up and over door; power.
OUTSIDE To the rear is a low maintenance large brick weaved area ideal for outside dining, summer house
COUNCIL TAX This property is currently listed as Band D.
VIEWINGS Strictly by appointment with the selling agents, BYCROFT ESTATE AGENTS, tel: 01493 844484.
DISCLAIMER While we endeavour to make our sales particulars fair, accurate and reliable, they are only a general guide to the property and, accordingly, if there is any point which is of particular importance to you, please contact the office and we will be pleased to check the position for you, especially if you are contemplating travelling some distance to view the property.
The approximate room sizes are only intended as general guidance. You must verify the dimensions carefully before ordering carpets or any built-in furniture.
Any references to garden sizes are approximate and subject to confirmation by a measured survey. A prospective purchaser is advised to arrange for their own land survey to be carried out.
Please note we have not tested the services or any of the equipment or appliances in this property, accordingly we strongly advise prospective buyers to commission their own survey or service reports before finalising their offer to purchase.
THESE PARTICULARS ARE ISSUED IN GOOD FAITH BUT DO NOT CONSTITUTE REPRESENTATIONS OF FACT OR FORM PART OF ANY OFFER OR CONTRACT. THE MATTERS REFERRED TO IN THESE PARTICULARS SHOULD BE INDEPENDENTLY VERIFIED BY PROSPECTIVE BUYERS
Brochures
Energy Performance Certificate
