Description
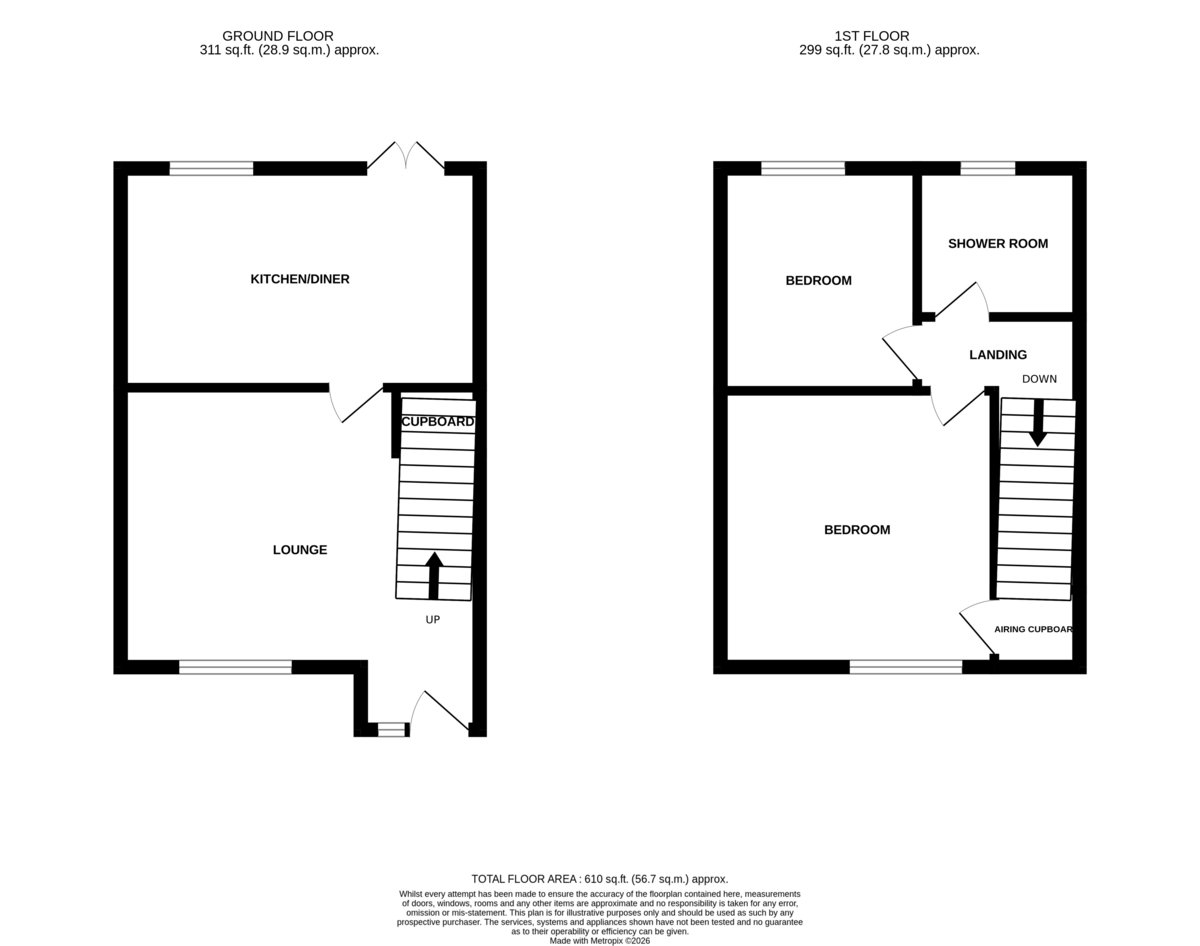
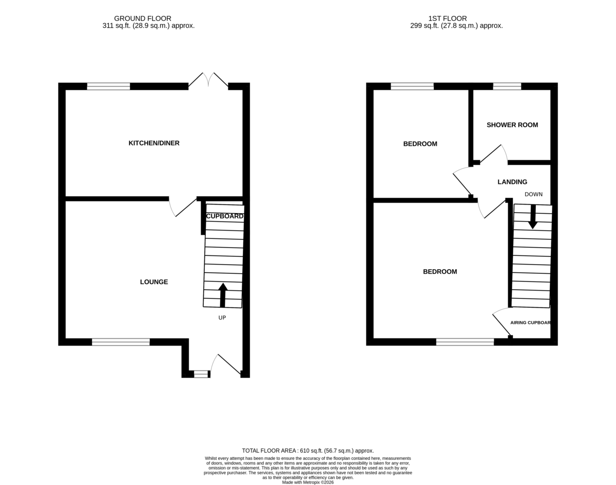
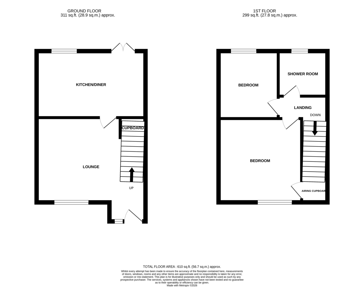
GUIDE PRICE £200,000-£220,000 Bycroft Estate Agents are delighted to present this beautifully presented, two-bedroom, semi-detached house situated in this quiet cul-de-sac location in the popular Cornfields Development close to shops, amenities as well as schools for all ages. Accommodation comprises of lounge, kitchen/diner, landing, two bedrooms, shower room, low maintenance front garden, enclosed south facing rear garden, side driveway with place for two cars standing. CHAIN FREE!
ENTRANCE UPVC front door.
LOUNGE 14' 8" x 11' 6 plus entrance area" (4.47m x 3.51m) including stairs to first floor; window to front aspect; radiator. Door to;
KITCHEN DINER 14' 8" x 8' 11 plus understairs storage" (4.47m x 2.72m) large U-shaped worktop with range of base, cupboards and drawers; built-in oven; space and plumbing for washing machine, dishwasher and upright fridge freezer; stainless steel bowl 1½ with mixer tap; range of wall units; 4 ring gas hob; window to rear aspect; French doors to rear; radiator.
LANDING access to roof space.
BEDROOM 1 11' 4" x 11' 5 plus storage cupboard" (3.45m x 3.48m) window to front aspect; radiator.
BEDROOM 2 9' 1" x 8' 1" (2.77m x 2.46m) window to rear aspect; radiator.
SHOWER ROOM wc with concealed push button cistern; wall hung vanity unit with wash hand basin, matt-black mixer tap; storage cupboard; large walk-in shower with Triton electric shower fittings; matt-black heated towel rail; frosted double-glazed window; extractor fan.
OUTSIDE To the front of the property is a low maintenance garden , pathway to front door. To the rear of the property is an enclosed south facing garden with paved patio, lawn and further raised decked patio, timber storage shed. Side driveway with place for two cars standing.
COUNCIL TAX This property is currently listed as Band B.
VIEWINGS Strictly by appointment with the selling agents, BYCROFT ESTATE AGENTS, tel: 01493 664000.
DISCLAIMER While we endeavour to make our sales particulars fair, accurate and reliable, they are only a general guide to the property and, accordingly, if there is any point which is of particular importance to you, please contact the office and we will be pleased to check the position for you, especially if you are contemplating travelling some distance to view the property.
The approximate room sizes are only intended as general guidance. You must verify the dimensions carefully before ordering carpets or any built-in furniture.
Any references to garden sizes are approximate and subject to confirmation by a measured survey. A prospective purchaser is advised to arrange for their own land survey to be carried out.
Please note we have not tested the services or any of the equipment or appliances in this property, accordingly we strongly advise prospective buyers to commission their own survey or service reports before finalising their offer to purchase.
THESE PARTICULARS ARE ISSUED IN GOOD FAITH BUT DO NOT CONSTITUTE REPRESENTATIONS OF FACT OR FORM PART OF ANY OFFER OR CONTRACT. THE MATTERS REFERRED TO IN THESE PARTICULARS SHOULD BE INDEPENDENTLY VERIFIED BY PROSPECTIVE BUYERS.
Brochures
Energy Performance Certificate
