Description
*MOVE-IN FAMILY HOME* Bycroft Estate Agents are delighted to present this well-presented, modern family home situated in a popular residential location within the village of Ormesby. Offering 4 bedroom accommodation with en-suite to the principal bedroom and family bathroom, welcoming entrance hallway, spacious sitting room, fully fitted kitchen/diner, utility room and cloakroom. To the outside of the property are gardens to the front and rear, the front laid mainly to block pave providing ample off-road parking for the property and access to the single garage, the rear garden is in enclosed and laid mainly to lawn with two functional outbuildings. The property benefits from gas-central heating and UPVC double-glazing. Internal inspection is highly recommended to fully appreciate the style and quality of the accommodation on offer.
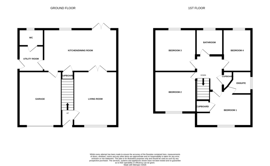
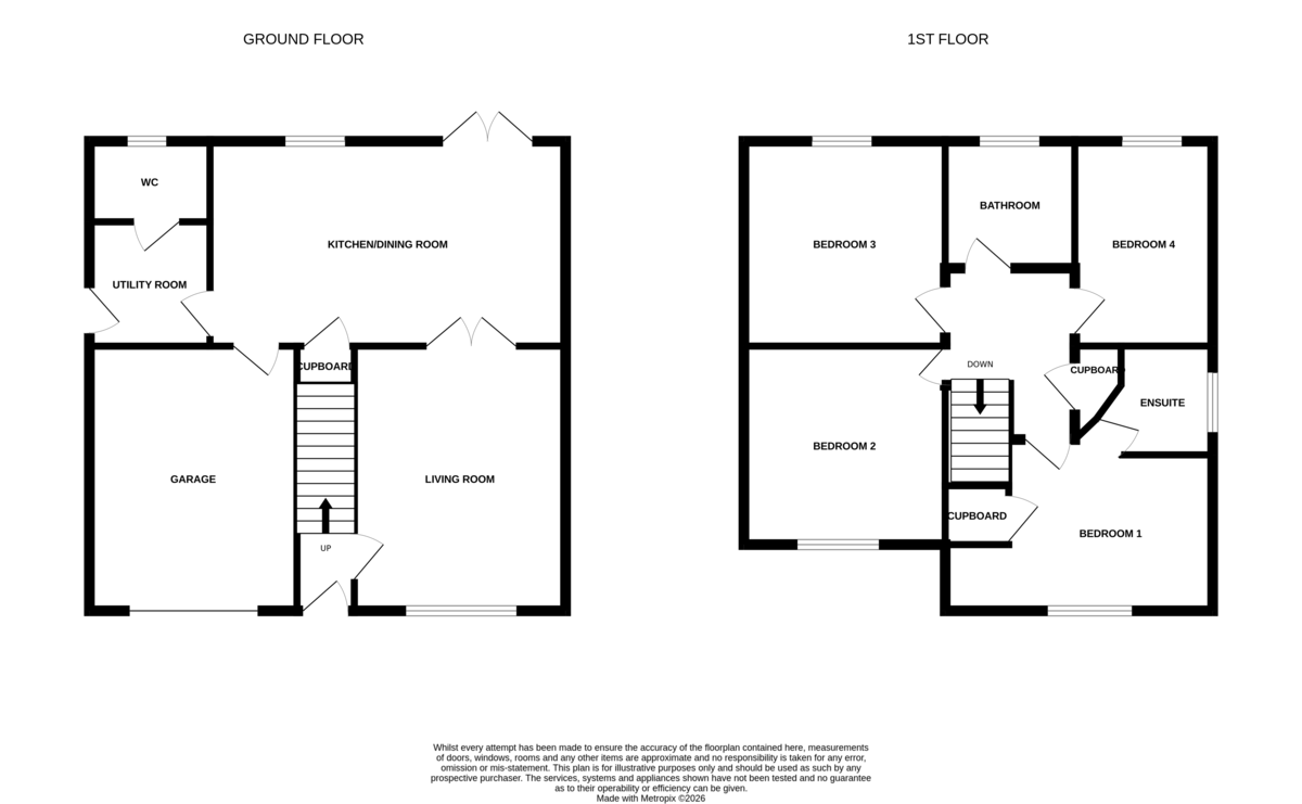
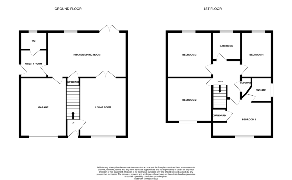
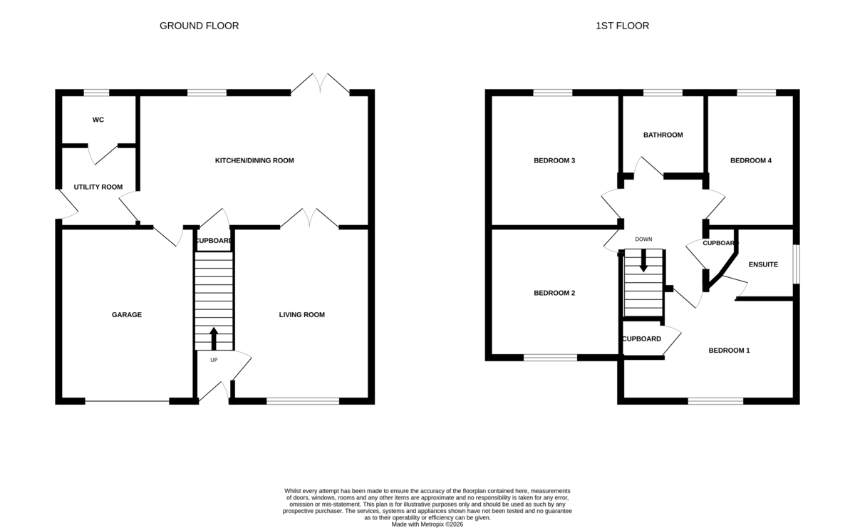
ENTRANCE HALL 5' 2 max" x 4' 9 max" (1.57m x 1.45m) double-glazed composite door to front; stairs to first floor landing.
SITTING ROOM 15' 9 max" x 11 max' (4.8m x 3.35m) UPVC double-glazed window to front; feature panelled wall. Double doors leading to;
KITCHEN DINER 18' 5" x 10' 3" (5.61m x 3.12m) fitted with a range of wall and base units with roll edge work surfaces over; built-in electric oven; inset 4 ring induction hob with cooker hood over; inset 1½ bowl stainless steel sink with mixer tap over; integrated dishwasher; space for beer fridge and bin store; UPVC double-glazed window to rear. Dining area with UPVC double-glazed French door to rear; understairs storage cupboard; personal door to garage.
UTILITY ROOM 7' x 5' 3" (2.13m x 1.6m) double-glazed composite door to side; fitted with a range of base units; plumbing for automatic washing machine; wall mounted gas-fired boiler.
CLOAKROOM 5' 3" x 2' 10" (1.6m x 0.86m) fitted with a white suite comprising of a low level wc, wall mounted hand wash basin, tiled splashback and mixer tap over; UPVC double-glazed window to rear.
GARAGE 15' 11" x 8' 11" (4.85m x 2.72m) up and over metal door; power and light.
FIRST FLOOR LANDING 6' 10" x 6' 5" (2.08m x 1.96m) loft access; built-in storage cupboard.
BEDROOM 1 14' 4 max into alcove" x 13' 3 max" (4.37m x 4.04m) built-in storage cupboard; UPVC double-glazed window to front.
EN-SUITE SHOWER ROOM 6' 11 max" x 6 max' (2.11m x 1.83m) fitted with a white suite comprising of a pedestal hand wash basin with mixer tap over, low level wc, corner quadrant shower cubicle; wall mounted shower unit with hand and soaker attachments; tiled splashbacks; extractor fan; UPVC double-glazed window to side; heated towel rail radiator.
BEDROOM 2 12' 2" x 9' 4" (3.71m x 2.84m) UPVC double-glazed window to front.
BEDROOM 3 9' x 9' 4" (2.74m x 2.84m) UPVC double-glazed window to rear.
BEDROOM 4 9' 7" x 7' 2" (2.92m x 2.18m) UPVC double-glazed window to rear.
FAMILY BATHROOM 6' 11" x 6' 3" (2.11m x 1.91m) fitted with a white suite comprising a low level wc, pedestal wash hand basin, panel bath; UPVC double-glazed window to rear; extractor fan; heated towel rail radiator.
OUTSIDE To the front of the property is a garden area laid mainly to block pave providing ample off-road parking for the property and gives access to the single garage, bordered by two areas laid to lawn with paved side pathway and side access gate. To the rear of the property is an enclosed garden laid mainly to lawn with paved area providing the ideal space for relaxing or entertaining, side storage area with timber shed, OUTDOOR CABIN 14'1" x 7' 6" (4.29m x 2.31m) currently used as a fully functional office and SUMMER HOUSE/ GARDEN LOUNGE/ GYM / GAMES ROOM 17' 5" x 11' 4" (5.31m x 3.46m) all connected to mains electricity.
COUNCIL TAX This property is currently listed as Band D.
AGENTS NOTE There is a annual service charge of £180 payable.
VIEWINGS Strictly by appointment with the selling agents, BYCROFT ESTATE AGENTS, tel: 01493 844484.
DISCLAIMER While we endeavour to make our sales particulars fair, accurate and reliable, they are only a general guide to the property and, accordingly, if there is any point which is of particular importance to you, please contact the office and we will be pleased to check the position for you, especially if you are contemplating travelling some distance to view the property.
The approximate room sizes are only intended as general guidance. You must verify the dimensions carefully before ordering carpets or any built-in furniture.
Any references to garden sizes are approximate and subject to confirmation by a measured survey. A prospective purchaser is advised to arrange for their own land survey to be carried out.
Please note we have not tested the services or any of the equipment or appliances in this property, accordingly we strongly advise prospective buyers to commission their own survey or service reports before finalising their offer to purchase.
THESE PARTICULARS ARE ISSUED IN GOOD FAITH BUT DO NOT CONSTITUTE REPRESENTATIONS OF FACT OR FORM PART OF ANY OFFER OR CONTRACT. THE MATTERS REFERRED TO IN THESE PARTICULARS SHOULD BE INDEPENDENTLY VERIFIED BY PROSPECTIVE BUYERS.
Brochures
Energy Performance Certificate
