Description
Bycroft Estate Agents are delighted to present this well presented, three bedroom, detached family residence situated in this sought after village location of Hopton-on-Sea, close to shops and amenities as well as Hopton beach. Accommodation comprises spacious entrance hall, cloakroom, lounge, dining room, kitchen, utility room, first floor landing, three bedrooms with en suite to principal, spacious bathroom, front driveway with garage and garden area, beautifully presented enclosed rear garden with decked patio and bar, recently installed gas combination boiler for central heating and double glazing.
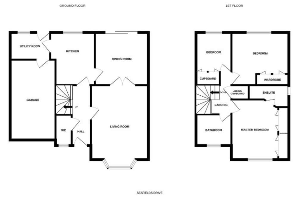
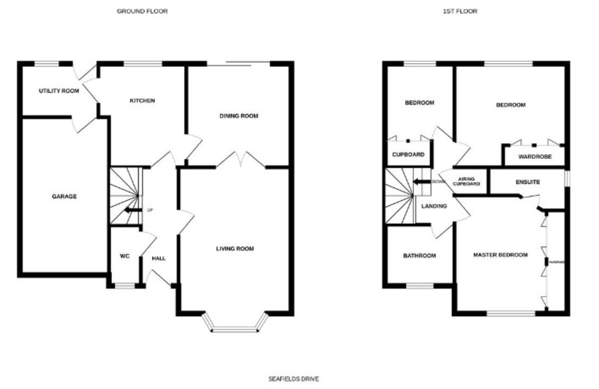
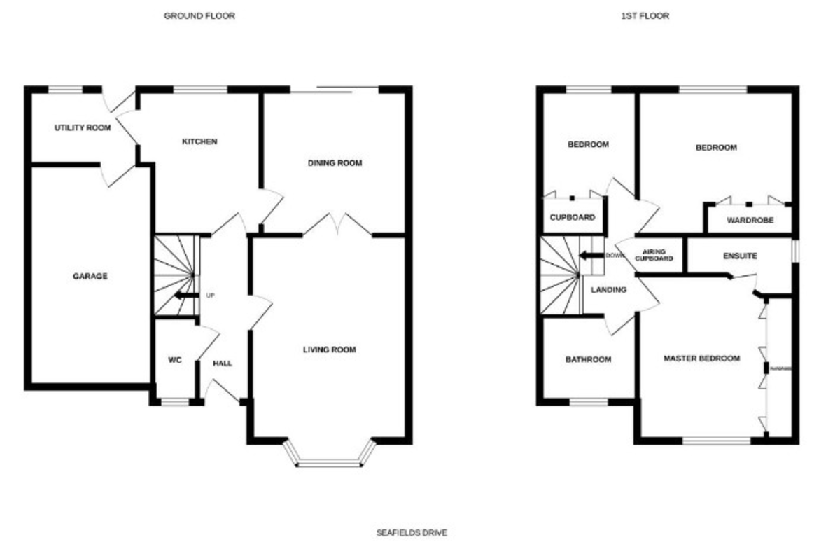
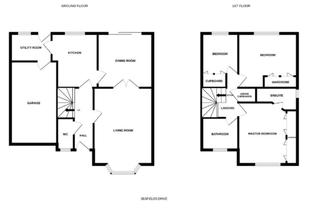
SPACIOUS ENTRANCE HALL entrance door; stairs to first floor; understairs storage cupboard; radiator.
CLOAKROOM wc; pedestal wash hand basin; frosted window; radiator.
LOUNGE 17' 11 max into bay" x 11' 10" (5.46m x 3.61m) bay window to front aspect; two radiators; double doors to Dining Room.
DINING ROOM 10' 2" x 10' 2" (3.1m x 3.1m) sliding patio doors to rear garden; radiator.
KITCHEN 9' 3" x 10' 2" (2.82m x 3.1m) large l-shaped worktop with a range of base cupboards and drawers; built in Hotpoint oven and grill; space and plumbing for dishwasher; bowl and a half sink with mixer tap; four ring Zanussi hob; further worktop with cupboard and drawer under; space for upright fridge freezer; range of wall units including canopied light and extractor; radiator; window to rear aspect; door to Utility.
UTILITY ROOM 8' 3" x 5' 7" (2.51m x 1.7m) l-shaped worktop with base cupboards and drawers; space and plumbing for washing machine; one bowl sink; radiator; recently installed Ideal gas combination boiler; window to rear aspect; door to rear; door into Garage.
GARAGE 16' 7" x 8' 10" (5.05m x 2.69m) rollerdoor to front; light; power; eaves storage space.
FIRST FLOOR LANDING storage cupboard.
BEDROOM 1 12' 5" x 9' 10" (3.78m x 3m) plus two built in double wardrobes; window to front aspect; radiator.
EN SUITE shower cubicle with mains shower fittings; wc; pedestal wash hand basin with mixer tap; radiator; extractor fan; frosted window.
BEDROOM 2 11' 10" x 11' 4 max" (3.61m x 3.45m) including two built in double wardrobes; window to rear aspect; radiator.
BEDROOM 3 8' 2" x 7' 8" (2.49m x 2.34m) plus two built in double wardrobes; window to rear aspect; radiator.
SPACIOUS BATHROOM bath with mixer tap; wc; pedestal wash hand basin with mixer tap; radiator; frosted window; extractor fan.
OUTSIDE To the front of the property there is a garden area with lawn, brickweave driveway leading to a garage and pathway to the canopied front entrance. Side access gate and pathway to the beautifully presented, enclosed, rear garden with full width paved patio, side pathway leading to shed, lawned area, raised decked patio with built in timber bar, borders with shrubs and plants, outside wall lights and cold tap.
VIEWINGS Strictly by appointment with the selling agents, BYCROFT ESTATE AGENTS, tel: 01493 664000.
COUNCIL TAX This property is currently listed as Band D.
DISCLAIMER While we endeavour to make our sales particulars fair, accurate and reliable, they are only a general guide to the property and, accordingly, if there is any point which is of particular importance to you, please contact the office and we will be pleased to check the position for you, especially if you are contemplating travelling some distance to view the property.
The approximate room sizes are only intended as general guidance. You must verify the dimensions carefully before ordering carpets or any built-in furniture.
Any references to garden sizes are approximate and subject to confirmation by a measured survey. A prospective purchaser is advised to arrange for their own land survey to be carried out.
Please note we have not tested the services or any of the equipment or appliances in this property, accordingly we strongly advise prospective buyers to commission their own survey or service reports before finalising their offer to purchase.
THESE PARTICULARS ARE ISSUED IN GOOD FAITH BUT DO NOT CONSTITUTE REPRESENTATIONS OF FACT OR FORM PART OF ANY OFFER OR CONTRACT. THE MATTERS REFERRED TO IN THESE PARTICULARS SHOULD BE INDEPENDENTLY VERIFIED BY PROSPECTIVE BUYERS.
Brochures
Click to download BrochureEnergy Performance Certificate
